Добавить в корзинуПозвонить
Найти в Дзене
G-Art Studio

Гармоничная квартира в стиле ар-деко

Сегодня мы расскажем вам про один из наших проектов в ЖК NEVA Haus.
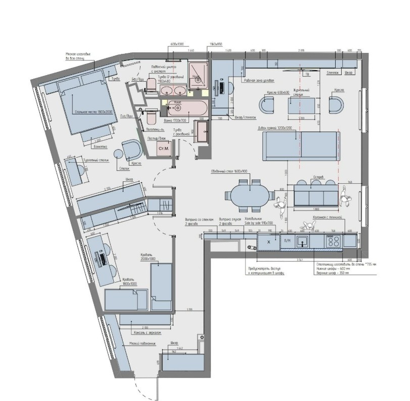
Площадь квартиры - 112. кв.м. Дизайн-проект выполнен в современном стиле с гармоничным сочетанием элементов неоклассики и арт-деко. Такая тематика создает элегантную и уютную атмосферу для семьи из четырех человек с двумя маленькими детьми. Основны требованием заказчиков было  — просторные и функциональные помещения кухни-гостиной и спальни, обеспечивающие комфорт и удобство для всей семьи. Мы понимали, что здесь нужно уделить особое внимание эргономике и зонированию, чтобы создать удобные места для отдыха, работы и игр детей. Здесь для заказчика было важно максимально открытое пространство. Тут два окна, и нужно было, чтобы они были в свободном доступе. Здесь необходимо было организовать гардеробный шкаф больших размеров, зону спальни, зону для отдыха и небольшой туалетный столик. Здесь спокойные, темные оттенки и черный потолок. Это как бы продолжение спальни. Зона душевой выделена интересным объемным блоком,
Оглавление

Сегодня мы расскажем вам про один из наших проектов в ЖК NEVA Haus.
Площадь квартиры - 112. кв.м.

Дизайн-проект выполнен в современном стиле с гармоничным сочетанием элементов неоклассики и арт-деко. Такая тематика создает элегантную и уютную атмосферу для семьи из четырех человек с двумя маленькими детьми.

фото и проект автора
фото и проект автора

Основны требованием заказчиков было  — просторные и функциональные помещения кухни-гостиной и спальни, обеспечивающие комфорт и удобство для всей семьи. Мы понимали, что здесь нужно уделить особое внимание эргономике и зонированию, чтобы создать удобные места для отдыха, работы и игр детей.

фото и проект автора
фото и проект автора
фото и проект автора
фото и проект автора

Мастер спальня

Здесь для заказчика было важно максимально открытое пространство. Тут два окна, и нужно было, чтобы они были в свободном доступе.

фото и проект автора
фото и проект автора

Здесь необходимо было организовать гардеробный шкаф больших размеров, зону спальни, зону для отдыха и небольшой туалетный столик. Здесь спокойные, темные оттенки и черный потолок.

фото и проект автора
фото и проект автора

Мастер-санузел

Это как бы продолжение спальни. Зона душевой выделена интересным объемным блоком, потолок и рельефная панель выкрашены в черный цвет. Душевая отделана матовым темным керамогранитом.

фото и проект автора
фото и проект автора
фото и проект автора
фото и проект автора

Детская

Эта комната принадлежит сыну и дочке семейной пары. Дети разновозрастные. Цветовая палитра нейтральная. Все зонирование продумано до мелочей. И рабочая зона, и игровая, и зона сна. Здесь также имеется мебельная стена, которая играет роль хранения игрушек и вещей.

фото и проект автора
фото и проект автора
фото и проект автора
фото и проект автора

Мы показали вам еще один наш проект. Поделитесь в комментариях, как вам? Давайте обсудим!

=============================================

Благодарим вас за то, что читаете наш блог, не забывайте на него подписываться!

Получить нашу консультацию можно здесь.

Рассчитать стоимость вашего дизайн-проекта здесь.

Поддержать автора донатами можно по ссылке.