Найти в Дзене

Просторная трешка с тремя гардеробными ванной и душевой!

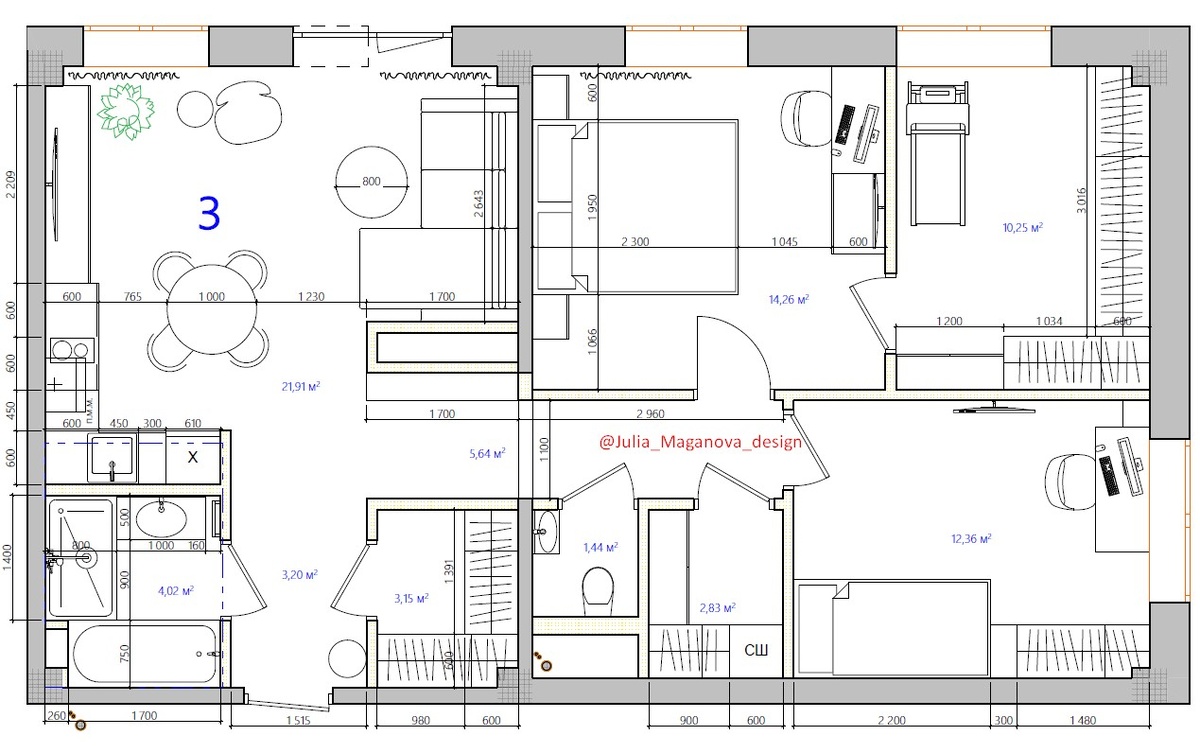
Что-то давно наших любимых планировок не показывала 🤗 Поделюсь одним из свежих проектов: квартира 82 квадратных метра для молодой красивой мамы и сына. Квартира угловая, с окнами на две стороны. Два санузла, лоджия, несущая стена поперек делит квартиру на две части. Задача сделать: 🔸гостиная совмещенную с кухней, 🔸спальню с гардеробной, зонами для работы и спорта, 🔸детскую с учебным местом для правши 🔸два санузла, предусмотреть в них установку и ванны и душевой кабины 🔸разместить установку стиральной и сушильной машины 🔸хранение лыж, туристического снаряжения, велосипедов Что делали: 💐 Общую зону (гостиная + кухня) разместили однозначно в той части квартиры, которая ближе ко входу и есть выход на лоджию. Да, хотелось бы просторнее, но именно здесь выход к мокрой точке и легальное размещение кухни (я писала об этом в предыдущем посте о планировках в ипотеке )) Мы проверили два варианта: 1️⃣ кухня слева - подключение к инженерным сетям санузла. Здесь организовано логично: кухню с

Что-то давно наших любимых планировок не показывала 🤗

Поделюсь одним из свежих проектов: квартира 82 квадратных метра для молодой красивой мамы и сына.

Квартира угловая, с окнами на две стороны. Два санузла, лоджия, несущая стена поперек делит квартиру на две части.

Задача сделать:

🔸гостиная совмещенную с кухней,

🔸спальню с гардеробной, зонами для работы и спорта,

🔸детскую с учебным местом для правши

🔸два санузла, предусмотреть в них установку и ванны и душевой кабины

🔸разместить установку стиральной и сушильной машины

🔸хранение лыж, туристического снаряжения, велосипедов

Что делали:

💐 Общую зону (гостиная + кухня) разместили однозначно в той части квартиры, которая ближе ко входу и есть выход на лоджию. Да, хотелось бы просторнее, но именно здесь выход к мокрой точке и легальное размещение кухни (я писала об этом в предыдущем посте о планировках в ипотеке ))

Мы проверили два варианта:

1️⃣ кухня слева - подключение к инженерным сетям санузла. Здесь организовано логично: кухню стараемся всегда разместить ближе ко входу в дом (чтобы зайти с пакетами и сразу поставить в нужном месте).

К тому же именно кухонный гарнитур можно отнести подальше от окон, освещение на нем все равно всегда есть дополнительное, а окна лучше отдать местам, где вы "напитываетесь": обеденная и мягкая зона.

Заметьте: кухня слева в квартире запроектирована для правши (идем последовательно холодильник→мойка→плита)) А хозяйка левша.

Здесь получался большой плюс: большой обзор с мягкой зоны (стена с ТВ дальше от дивана), но зато обеденный стол остался посередине комнаты.

-2

2️⃣ кухня справа, ближе к лоджии. Этот вариант изначально заложен проектировщиком, но очень компактно. Мы расширили зону (увеличили стену вент.шахты, за ней спрятали шкаф)

Плюсы: кухня для левши спрятана за стеночкой, с дивана не видно, обеденный стол у окна. Минус: стена с ТВ близко к дивану.

✔️ В итоге остановились на втором варианте размещения кухни. Гарнитур здесь для левши - как нам лучше, спрятан за стеночкой, в итоге комната будет более парадной, красивой.

Ну и от входа в квартиру сразу открывается вид на обеденную зону, что задает уютный тон гостеприимства сразу для всей квартиры. Пусть даже и гостей здесь может не бывать, но и хозяевам такая встреча каждый раз в радость.

-3

👢Прихожую рассматривали с открытыми шкафами и закрытой гардеробной. Победила гардеробная 👌🏻 На входе, если небольшая семья, достаточно 1,2 метра, чтобы снять уличную обувь и поставить сумку – это есть. А вот хранить верхнюю одежду, сезонные вещи, снаряжение для туризма, лыжи – удобнее всего именно в гардеробной.

Я люблю эти комнаты, потому что там можно дать свободу хранения вещам - это часто выглядит не совсем эстетично, но зато удобно. И при этом это необходимое визуальное хулиганство будет скрыто в своем царстве-государстве)) никак не повлияет на красоту остальных комнат. Недавно вышел объемный пост о том, как сделать ВАУ-гардеробную

-4

🛁 Санузла у нас два. Но второй (с дальней части квартиры), запланирован застройщиком небольшой, и при всем желании, нам не получилось разместить там ничего, кроме унитаза и раковины. Вернее, разместить мы могли бы но узаконить нет, а квартира в ипотеке – поэтому точно нет.

Поэтому 👆🏻: ближе к спальным только туалет.

В большом санузле рассмотрели все возможные варианты размещения сантехники. ✔️ Мы расширили его за счет прихожей, в итоге вместилось все!: ванна, душевая, раковина, унитаз и даже небольшой шкаф)

✔️ Но мы в итоге немного схитрили и сделали отдельную прачечную ближе к спальным. При подаче документов в БТИ назовем ее "гардеробная", никакие коммуникации туда выносить не будем (все подключение сделаем из стены туалета).

🛌 Спальню с гардеробной, зонами для работы и спорта - рассматривали вдоль и поперек квартиры.

-5

✔️ В итоге выбрали вариант, где спорт размещается в гардеробной, а не в основной части спальни. Чтобы отдыхая на кровати, не видеть все эти тренажеры, коврики, гирьки и прочее) При этом на дверках шкафов гардеробной можно сделать зеркала и тогда спорт будет еще более эффективным.

🧸 В детской особо не было вопросов. Там нужны кровать, шкаф и рабочее место для правши (желательно, чтобы рука при письме не закрывала свет от окна, но если окно на всю длину стола, то без разницы))

Планировка – это не просто расставить мебель так, чтобы все вошло. Это продумать сценарии вашей будущей жизни.

Уже здесь заложить атмосферу, дизайн – того, что влияет на качество восприятия, что добавляет вкус к жизни 🥰

Приходите к нам за своими вкусными планировками🍓 пишите

© Студия дизайна интерьеров Юлии Магановой