Найти в Дзене
Марина Степанова

Дизайн-проект в новостройке: сколько заплатили и чего не учли

Обычно я пишу про путешествия....про отпуск на море, события в городе, но эта история совсем другая, она про путешествие в мир ремонта, где вместо пальм - пыль, вместо вида на море - 50 оттенков синей краски, а вместо релакса - Excel-таблицы (хотя Excel я тоже люблю 😁) Мы с мужем взяли ипотеку на квартиру в новостройке и после получения ключей решили сделать всё «по-взрослому»: дизайн-проект, хорошие материалы, договор с бригадой. Казалось бы — что может пойти не так? 😅 Если вы совсем не представляете, как из пустой коробки сделать уют, дизайн-проект — ваш спасательный круг. Он подскажет, где будет диван, какого цвета стены и куда деть картину с прошлой квартиры. Если вы, наоборот, слишком творческая личность и хотите и кирпич, и золото, и розовую кухню — проект не даст интерьеру превратиться во «всё лучшее сразу». А если вы боитесь забыть розетку у дивана или не знаете, сколько метров плитки нужно на ванную — не переживайте, дизайнер всё посчитает. И сделает это до того, как вы успе
Оглавление

Обычно я пишу про путешествия....про отпуск на море, события в городе, но эта история совсем другая, она про путешествие в мир ремонта, где вместо пальм - пыль, вместо вида на море - 50 оттенков синей краски, а вместо релакса - Excel-таблицы (хотя Excel я тоже люблю 😁)

Наша будущая кухня - надеюсь
Наша будущая кухня - надеюсь

Мы с мужем взяли ипотеку на квартиру в новостройке и после получения ключей решили сделать всё «по-взрослому»: дизайн-проект, хорошие материалы, договор с бригадой. Казалось бы — что может пойти не так? 😅

🎨 Зачем вообще дизайн-проект квартиры?

Если вы совсем не представляете, как из пустой коробки сделать уют, дизайн-проект — ваш спасательный круг. Он подскажет, где будет диван, какого цвета стены и куда деть картину с прошлой квартиры.

Если вы, наоборот, слишком творческая личность и хотите и кирпич, и золото, и розовую кухню — проект не даст интерьеру превратиться во «всё лучшее сразу».

А если вы боитесь забыть розетку у дивана или не знаете, сколько метров плитки нужно на ванную — не переживайте, дизайнер всё посчитает. И сделает это до того, как вы успеете заклеить весь ремонт обоями с бабочками.

А еще дизайн проект нужен, чтобы сэкономить — серьёзно!

Он помогает избежать самых дорогих ошибок — переделок, возвратов, лишних доставок и материалов, которые потом будете продавать на Авито со словами «не подошло». Когда на руках есть чёткий план, список покупок и визуализации, стресса становится меньше.

Мы тоже поначалу сомневались. Но понимали, что хотим не просто «как у всех», а своё пространство — уютное, сбалансированное, без хаоса и скуки. И начали искать «того самого» дизайнера. Вдохновились работами одного специалиста — всё было сдержанно, гармонично, с акцентом на натуральные материалы и ощущение спокойствия.

Она быстро включилась: выслала анкету, в которой мы прошлись по всем пунктам — цвета, текстуры, фишки, потом приехала на квартиру, всё тщательно измерила, задала десятки уточняющих вопросов — и мы ушли работать онлайн.

Там началась уже вторая серия: правки, обсуждения, утверждение каждого шкафа, розетки, прохода и даже того, как открывается дверца.

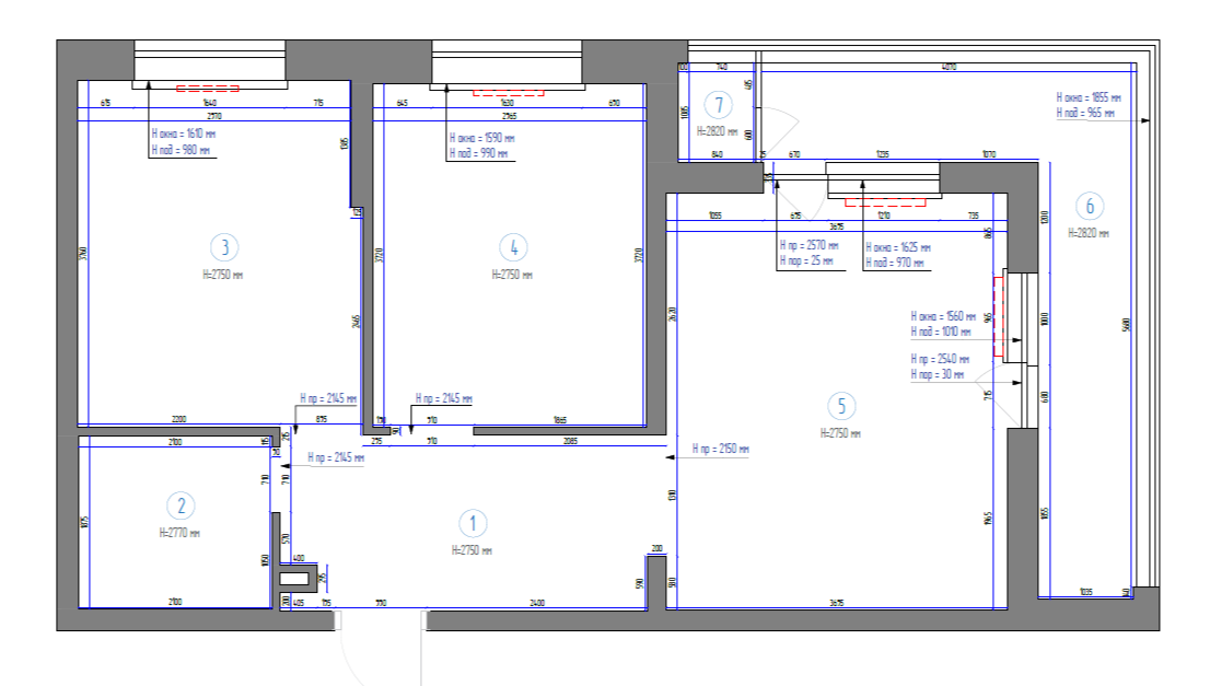
Вот такой план получился после обмеров
Вот такой план получился после обмеров

Особенно сложно было расставить мебель на техническом плане. Ведь ты не видишь ничего вживую — только линии, размеры и фантазия. Мы советовались друг с другом, рисовали мебель прямо на полу, чтобы ощутить её в пространстве. Смеялись, спорили, передвигали «фантомные» диваны.

На кухне помогали подруги: как впихнуть встроенные шкафы с техникой, но при этом обыграть неудачно расположенный стояк. Он стоял прямо посреди стены, где должна быть кухня. Мы долго думали, как его обойти, где сделать фальшпанель, а где выдвижной ящик. И всё это — на этапе дизайн-проекта.

Расстановку мебели утвердили такую
Расстановку мебели утвердили такую

💸 Сколько стоит дизайн-проект для квартиры 55 м²?

Стоил он нам 100 000 ₽. Красиво, удобно, как в Pinterest. Но потом пришли строители — и понеслось...»

🔧 «Скрытый плинтус? Это как?»

🧱 «Плитка 2,7 метра? Вы серьёзно?»

💡 «А эти светильники хоть существуют в реальности?»

Честно говоря, часть ошибок — на нас. Мы увидели визуализации, влюбились и махнули рукой: «Да всё понятно, красиво же!» А то, что не всё проверили по материалам, ценам, срокам — уже потом всплыло. Хотелось быстрее приступить к ремонту.

Когда дизайн-проект был готов, мы его утвердили — и всё, дальше менять уже нельзя: по договору у нас было ограниченное количество правок. Логично, дизайнер ведь не может жить с нами вечно. Авторский надзор (то есть её помощь во время стройки) мы брать не стали — решили сэкономить.

Но мы всё равно не жалеем. Квартира будет уютной и продуманной, а визуализации до сих пор вызывают радость и восторг!

📸Интерьеры мечты - что получилось на визуализациях

А вот и наш пример — наша будущая квартира глазами дизайнера. Интерьеры, визуализации, мечты на картинке - вот тут будущая кухня. Нам очень хотелось, чтобы всё выглядело цельно, оттенки нейтральные, но с характером. Мягкий диван с бархатистыми подушками, обеденный стол на ребристой ножке, светильники-гвоздики и люстра над столом — будто отель в Стамбуле.

Санузел
Санузел

А вот и ванная — та самая, где планировался крупноформатный керамогранит. На визуализации он выглядит эффектно: натуральная текстура камня, в реальности мы от него отказались, потому что монтаж стоил как недорогой отпуск.

Спальня — уютное гнёздышко. Оттенки синих, бежевых и древесных тонов говорят: «Здесь будет покой», но кошелёк кричит: «Пожалуйста, хватит!»

Гостинная - лаконичная, светлая....вечером включаем подсветку, наливаем чай и делаем вид, что у нас всё под контролем.

🫰Стоит ли тратиться на дизайн-проект?

Если коротко: да, дизайн-проект — это нужная вещь. Он даёт структуру, понимание пространства и помогает избежать хаоса. Но! Только при условии, что вы готовы включаться в процесс, перепроверять и не слепо верить каждому слову дизайнера. Мы набили много шишек, чтобы это понять — и теперь делимся опытом.

Эта история была про дизайн-проект — красивый, продуманный, вдохновляющий💸 В следующей статье расскажу, как первый этап ремонта съел наш первый миллион за три месяца. Без мебели, без плитки — только трубы, провода и пыль.

📊 Как бюджет вышел за пределы всех Excel-таблиц

💡 Как «всего пара розеток» обернулась километрами проводов

🧱 И как выживали в этой гонке с нервами и отклонением.....от проекта конечно!

Если вам близка тема ремонта — подписывайтесь на канал, и делитесь: был ли у вас дизайн-проект? Помог он или стал лишней тратой денег? Ваши истории помогут другим — а мои, возможно, развеселят вас!