Добавить в корзинуПозвонить
Найти в Дзене
Слаботочные системы

Алгоритм проектирования пожарной сигнализации и системы оповещения и управления эвакуацией людей при пожаре

По СП 486.1311500.2020 «Системы противопожарной защиты. Перечень зданий, сооружений, помещений и оборудования, подлежащих защите автоматическими установками пожаротушения и системами пожарной сигнализации. Нормы и правила проектирования» обосновать необходимость защиты объекта автоматической пожарной сигнализацией, для этого: 1) по исходным данным определить назначение объекта, в т.ч. его класс функциональной пожарной опасности; 2) по таблицам 1 – 4 определить необходимость защиты объекта АУПТ или СПС (последовательно проверяя по всем таблицам: от здания в целом, до отдельных помещений и оборудования); 3) учесть требования п.4.4, п.4.8, п.4.9. В пункте 4.4 указаны «исключения» СП 486 п. 4.4 В зданиях и сооружениях, указанных в данном перечне, следует защищать АУП и (или) СПС все помещения независимо от площади, кроме помещений: СП 486 п. 4.8 Перечень зданий, сооружений, помещений и оборудования, подлежащих защите АУП и (или) СПС, представлен в таблицах 1 – 4. В случае превышения при
Оглавление
Как спроектировать пожарную сигнализацию? Урок по проектированию АПС, СОУЭ. Обучение проектированию

Учебник и курс обучения по слаботочным системам:

Зарабатывай от 70 000 рублей!

Шаг 1. «Обоснование необходимости защиты объекта СПС»

По СП 486.1311500.2020 «Системы противопожарной защиты. Перечень зданий, сооружений, помещений и оборудования, подлежащих защите автоматическими установками пожаротушения и системами пожарной сигнализации. Нормы и правила проектирования» обосновать необходимость защиты объекта автоматической пожарной сигнализацией, для этого:

1) по исходным данным определить назначение объекта, в т.ч. его класс функциональной пожарной опасности;

2) по таблицам 1 – 4 определить необходимость защиты объекта АУПТ или СПС (последовательно проверяя по всем таблицам: от здания в целом, до отдельных помещений и оборудования);

3) учесть требования п.4.4, п.4.8, п.4.9. В пункте 4.4 указаны «исключения» СП 486 п. 4.4 В зданиях и сооружениях, указанных в данном перечне, следует защищать АУП и (или) СПС все помещения независимо от площади, кроме помещений:

  • с мокрыми процессами, душевых, плавательных бассейнов, санузлов, мойки;
  • венткамер (за исключением вытяжных, обслуживающих производственные помещения категории А или Б), насосных водоснабжения, бойлерных, тепловых пунктов;
  • категории В4 (за исключением помещений категории В4 в зданиях классов функциональной пожарной опасности Ф1.1, Ф1.2, Ф2.1, Ф4.1 и Ф4.2) и Д по пожарной опасности;
  • лестничных клеток;
  • тамбуров и тамбур-шлюзов;
  • чердаков (за исключением чердаков в зданиях классов функциональной пожарной опасности Ф1.1, Ф1.2, Ф2.1, Ф4.1 и Ф4.2).
  • Примечание – в лифтовых холлах и безопасных зонах предусматривается установка только СПС.

СП 486 п. 4.8 Перечень зданий, сооружений, помещений и оборудования, подлежащих защите АУП и (или) СПС, представлен в таблицах 1 – 4. В случае превышения приведенного в таблицах 1 и 3 значения нормативного показателя площади здания (помещения) в пределах 5% допускается защита здания (помещения) СПС без использования АУП.

Но есть ряд помещений по функциональной опасности, которые нужно оснащать СПС даже если там есть АУП. СП 486 п. 4.9 Помещения зданий классов функциональной пожарной опасности Ф1, Ф2, Ф3 и Ф4, защищаемые согласно настоящему своду правил АУП, должны дополнительно оборудоваться СПС. Для помещений зданий класса функциональной пожарной опасности Ф5, защищаемых согласно настоящему своду правил АУП, допускается не предусматривать СПС при обеспечении безопасной эвакуации людей из здания, с учетом инерционности срабатывания АУП.

Статья 32. Классификация зданий, сооружений и пожарных отсеков по функциональной пожарной опасности, Федеральный закон от 22.07.2008 N 123-ФЗ «Технический регламент о требованиях пожарной безопасности»

  • Ф1 – здания, предназначенные для постоянного проживания и временного пребывания людей;
  • Ф2 – здания зрелищных и культурно-просветительных учреждений;
  • Ф3 – здания организаций по обслуживанию населения;
  • Ф4 – здания образовательных организаций, научных и проектных организаций, органов управления учреждений.

Так, например, если брать здание предприятий торговли из таблицы 1  п.12.1.2 «Одноэтажное торговое предприятие площадью более 3500 кв.м», то оснащаем АУП, а СПС по таблице 1 СП 486 – не защищаем. Но помните, что по п.4.9 все равно потребуется оснащение СПС.

Для помещений зданий класса функциональной пожарной опасности Ф5, защищаемых согласно настоящему своду правил АУП, допускается не предусматривать СПС при обеспечении безопасной эвакуации людей из здания, с учетом инерционности срабатывания АУП.

4) определить тип системы:

По приложению А таблице А1 СП 484.1311500.2020 определяется тип СПС (адресная или неадресная). При наличии необходимости оснащения объекта безадресной СПС не запрещается оснащение данного объекта адресной СПС.  Адресной СПС считается при применении адресных ИП. Допускается СПС считать адресной, при подключении к ней безадресных ИП числом не более 10% от общего числа ИП в СПС. При отсутствии адресных ИП необходимого типа, допускается подключение безадресных ИП в линии связи адресных модулей ввода из расчета не более одного ИП в одну линию связи.

Шаг 2. «Выбор извещателя»

В зависимости от типа пожарной нагрузки выбирается тип применяемого пожарного извещателя (далее – ИП). При выборе нужно учесть п.4.3 СП 486: Здания и помещения, перечисленные в пунктах 3, 7, 8, 9, 11, 12, 14, 15 таблицы 1 и 16-21, 29-32, 35-48 таблицы 3, при применении СПС следует оборудовать дымовыми пожарными извещателями, либо комбинированными или мультикритериальными пожарными извещателями, реагирующими на дым (кроме помещений для приготовления пищи). Также учесть раздел 6.2 Выбор типов пожарных извещателей СП 484.1311500.2020 «Системы противопожарной защиты. Системы пожарной сигнализации и автоматизация систем противопожарной защиты».

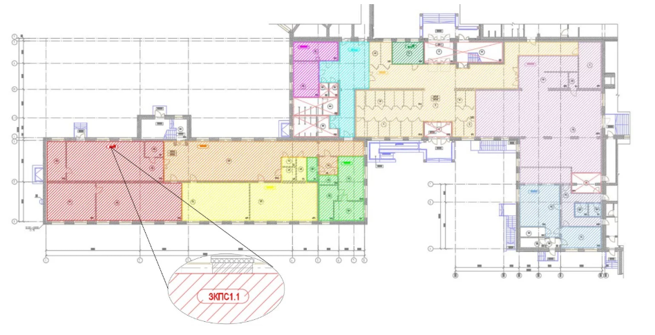
Шаг 3. «Деление объекта на ЗКПС»

6.3.3 В отдельные ЗКПС должны быть выделены:
а) квартиры, гостиничные номера и иные помещения, которые находятся во временном или постоянном пользовании физическими или юридическими лицами;

б) лестничные клетки, кабельные и лифтовые шахты, шахты мусоропроводов, а также другие помещения или пространства, которые соединяют два и более этажей;

в) эвакуационные коридоры (коридоры безопасности), в которые предусмотрен выход из различных пожарных отсеков;

г) пространства за фальшпотолками;

д) пространства под фальшполами. Требование распространяется для случаев, когда контроль СПС данных помещений и пространств необходим в соответствии с нормативными документами по пожарной безопасности.

6.3.4 ЗКПС должны одновременно удовлетворять следующим условиям:

– площадь одной ЗКПС не должна превышать 2000 м2;

– одна ЗКПС должна контролироваться не более чем 32 ИП;

– одна ЗКПС должна включать в себя не более пяти смежных и изолированных помещений, расположенных на одном этаже объекта и в одном пожарном отсеке, при этом изолированные помещения должны иметь выход в общий коридор, холл, вестибюль и т.п., а их общая площадь не должна превышать 500 м2.

Единичная неисправность в линии связи ЗКПС не должна приводить к одновременной потере автоматических и ручных ИП, а также к нарушению работоспособности других ЗКПС

Шаг 4. «Обоснование необходимости применения СОУЭ»

По п.6.4 СП 484 определить алгоритм принятия решения о пожаре.

  • Алгоритм А «Пожар» по одному ИП без перезапроса. Наиболее целесообразно для ИПР.
  • Алгоритм B «Пожар» по одному ИП с перезапросом или по двум ИП за 60 сек в одной ЗКПС.
  • Алгоритм C «Пожар» по двум ИП в одной или разных ЗКПС в одном помещении. (Схема «И»).

Шаг 6. «Расстановка автоматических пожарных извещателей»

По п.6.6 СП 484 разместить ИП на плане помещения. Основной порядок работы: 1) при размещении ИП учесть требования п.4.4 СП 486, п.6.6 СП 484;

2) определить нужные таблицы (таблицы 1-5), исходя из выбранного типа извещателя (обратите внимание сейчас в таблицах  не указаны максимально возможные расстояния от извещателя до стены и между извещателями, а указан только радиус зоны контроля ИП);

3) помещение должно быть полностью вписано в радиус зоны контроля, допускается уменьшать радиус зоны контроля в пределах защищаемого помещения, не допускается превышение указанных расстояний, за исключением п.6.6.41;

4) при определении расстояний между ИП и минимального количества ИП в помещении (зоне), также учесть требования п. 6.6.1-6.6.3;

5) если есть балки, учесть п. 6.6.36 – 6.6.38;

6) принять условные графические обозначения для ИП по РД 25.953-90;

7) разместить все извещатели на плане (в идеале – с указанием расстояний до стен и между извещателями);

8) определить количество защищаемых направлений (кол-во шлейфов сигнализации/ количество адресов);

9) присвоить каждому ИП порядковый номер в формате х/у, где х – номер шлейфа либо адресного прибора, у – номер извещателя в шлейфе/адрес извещателя.


Шаг 7. «Расстановка ручных пожарных извещателей (ИПР)»

По п.6.6.27 СП 484 разместить ИПР на плане помещения.

1) не менее 0,75 м от различных предметов, мебели, оборудования;

2) на высоте 1,5 ± 0.1 м от уровня земли или пола до органов управления;

3) не более 30 м друг от друга внутри зданий, если планировка не утверждена;

4) не более 45 м друг от друга внутри зданий, если планировка утверждена;

5) не более 100 м друг от друга вне зданий;

6) не более 30 м от выхода из любого помещения;

7) при углубленной установке выступает не менее 15 мм над поверхностью.

-2

Шаг 8. «Выбор способа оповещения»

Определить какие способы оповещения включает в себя СОУЭ выбранного типа и разместить оповещатели:

1) определить по СП 3.13130.2009 таблице 1, какие способы оповещения данный тип СОУЭ включает в себя;

2) изучить паспорт на оборудование или рекомендации по применению для выбранных оповещателей, произвести расчет падения звукового давления (электроакустический расчет);

3) разместить оповещатели на плане помещения;

4) условные графические обозначения принять по РД.25.953-90 и Р 071-2017.

Шаг 9. «Расчет емкости АКБ и подбор источников питания»

На объекте III категории надежности электроснабжения необходимо подобрать источник питания согласно требованиям СП 6.13130.2021: «емкость источника бесперебойного электропитания должна обеспечить питание электроприемников СПС и СОУЭ в дежурном режиме в течение 24 ч плюс 1 ч работы системы пожарной автоматики в тревожном режиме (Приложение А)». Для этого необходимо учесть суммарное токопотребление приборов и устройств СПС и СОУЭ в дежурном режиме и режиме тревоги.

Шаг 10. «Создание линий связи»

По СП 484 наметить трассы шлейфов сигнализации, линий связи, питания:

1) Выбрать типы кабелей и способы прокладки (н-р, подходящую ОКЛ) с учетом требований по сохранению их работоспособности;

2) Для выбора кабелей следует воспользоваться каталогами производителей (Спецкабель, Пожтехкабель и аналогичные);

3) Для СПС и СОУЭ на плане отобразить линии сигнализации, питания и связи, подписать длину и марку кабеля;

4) Подобрать сечение жил кабеля, исходя из требуемых условий по организации ДПЛС. Например, для оборудования компании «Болид»: в ДПЛС допускается подключать до 127 устройств с типовым суммарным током потребления 64 мА. При расчёте длины ДПЛС, для обеспечения устойчивой работоспособности АУ, необходимо учитывать следующее:

– разность напряжения на входных контактах АУ и выходного напряжения контроллера не должна превышать 2 В;

– сопротивление линии от контроллера до АУ не должно превышать 200 Ом;

– суммарная ёмкость проводов не должна превышать 0,1 мкФ (100 нФ).

Шаг 11. «Размещение приборов ППКП, ППУ и ИБЭ»

СП 484 5.12. ППКП и ППУ, функциональные модули индикации и управления, ИБЭ следует устанавливать в помещении пожарного поста. …

5.13. Размещение приборов, функциональных модулей и ИБЭ в помещении пожарного поста следует предусматривать в местах, позволяющих осуществлять наблюдение и управление ими, а также техническое обслуживание. Данные технические средства следует размещать таким образом, чтобы высота от уровня пола до органов управления и индикации была от 0,75 м до 1,8 м. При отсутствии органов управления на устройствах, устанавливаемых вне пожарного поста, высота их установки не регламентируется.

5.14. Приборы, функциональные модули и ИБЭ следует устанавливать на стенах, перегородках и конструкциях, изготовленных из негорючих материалов.

п. 5.20 Рекомендуется предусматривать запас по емкости ППКП и ППУ для подключения дополнительных устройств, который может быть задействован при производстве перепланировок или реконструкции. Если иное не определено заданием на проектирование, то запас должен составлять:

– не менее 20%, если планировка и вид отделки определен;

– не менее 100%, если не определена окончательная планировка помещений и возможно дополнительное оборудование помещений фальшполами и подвесными потолками.

Шаг 12. «Подготовка структурной схемы»

Структурная схема должна отражать общую картину устройства системы пожарной сигнализации на объекте, на схеме должны быть показаны все основные приборы, линии связи с указанием их обозначения. Адресные и безадресные пожарные извещатели, и другие адресные устройства (АУ, например, БРИЗ) допускается показывать упрощенно, без прорисовки каждого элемента на схеме – зависит от количества ИП, АУ.

Шаг 13. «Написание текстовой части (пояснительной записки)»

В текстовой части следует отразить описание и обоснование пожарной сигнализации, оповещения и управления эвакуацией людей при пожаре, а также алгоритм работы СПС и СОУЭ. Алгоритм работы СПС должен включать в себя принятые технические решения по логике формирования, отображения и выдачи сигналов, определяемых событиями (комбинацией и/или последовательностью) по контролируемым входным и выходным сигналам, по которым должны быть определены получатели с точностью до зоны противопожарной защиты (зоны оповещения о пожаре, зоны пожаротушения, зоны противодымной вентиляции) и/или конкретного технического средства, входящего в зону противопожарной защиты и отвечающего за прием сигнала управления. Алгоритм СОУЭ должен обеспечивать безопасную эвакуацию людей в случае пожара, включать размер и зон пожарного оповещения, время начала оповещения в различных зонах пожарного оповещения. Алгоритм может быть изложен в графическом, табличном, текстовом виде или комбинировано.

Шаг 14. «Оформление проектной документации»

Проектная документация – совокупность текстовых и графических документов, определяющих архитектурные, функционально-технологические, конструктивные и инженерно-технические и иные решения проектируемого здания (сооружения), состав которых необходим для оценки соответствия принятых решений заданию на проектирование, требованиям технических регламентов и документов в области стандартизации и достаточен для разработки рабочей документации для строительства Проектная документация подлежит экспертизе в случаях, установленных Градостроительным Кодексом РФ. Проект СПС и СОУЭ состоит из текстовой и графической части. Оформление раздела следует выполнять по ГОСТ 21.101-2020 с учетом требований Постановления Правительства №87. Как минимум это:

1) текстовая часть в виде «пояснительной записки» по СПС и СОУЭ, в т.ч. Может включать в себя алгоритм работы указанных систем в текстовой форме;

2) графическая часть в виде структурной (принципиальной) схемы СПС и СОУЭ, поэтажных планов с оборудованием СПС и СОУЭ;

3) прилагаемые документы (расчеты по требованию эксперта, алгоритм в табличной форме, в дополнение к описанию в текстовой части и др.).

Учебник и курс обучения по слаботочным системам:

Зарабатывай от 70 000 рублей!