Добавить в корзинуПозвонить
Найти в Дзене

Барн-концепт! В 1 площади 3 возможных варианта планировки

Барн-концепт! В 1 площади 3 возможных варианта планировки! 🆒 Для чего такой финт? 1. Для оптимизации производства клеёного каркаса; 2. Для оптимизации комплектации дома; 3. Сжатые сроки! 5 мес.! Время-деньги! Заказчик хочет дом быстрее, да и мы заинтересованы в этом 💰👨‍👩‍👧‍👦☀️ На текущий момент! По данному проекту есть готовый каркас, соответственно сроки ещё меньше. Подробности +7(343)300-55-77 А Вашему вниманию первая планировка данного проекта: просторная комната для шумных посиделок, 2 комнаты спальни, 2 с/у и бомбические террасы! Ловим лучики солнца стильно и комфортно! ☀️ #барнхаус #кпзаповедник #лесныеулочки #барнхаусекатеринбург #строительстводомов

Барн-концепт! В 1 площади 3 возможных варианта планировки! 🆒

Для чего такой финт?

1. Для оптимизации производства клеёного каркаса;

2. Для оптимизации комплектации дома;

3. Сжатые сроки! 5 мес.!

Время-деньги! Заказчик хочет дом быстрее, да и мы заинтересованы в этом 💰👨‍👩‍👧‍👦☀️

На текущий момент! По данному проекту есть готовый каркас, соответственно сроки ещё меньше.

Подробности +7(343)300-55-77

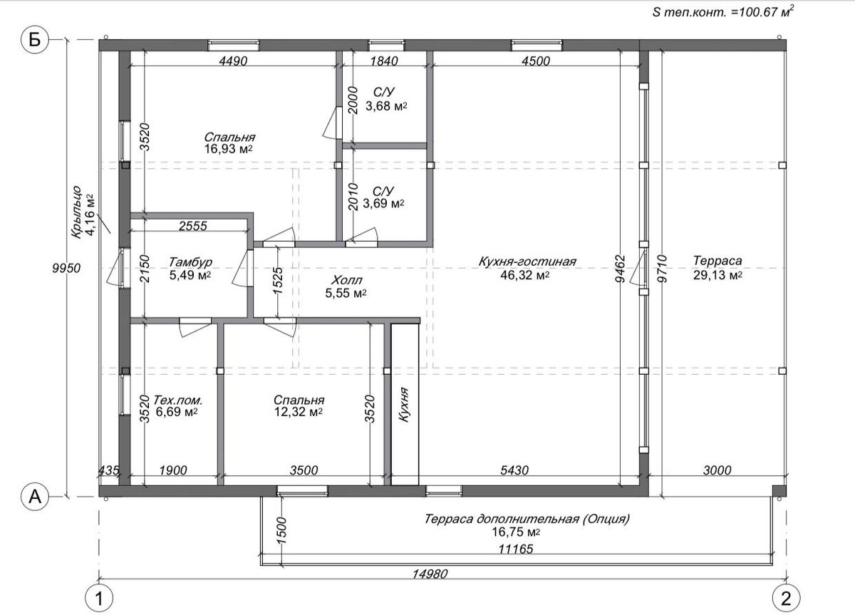
А Вашему вниманию первая планировка данного проекта: просторная комната для шумных посиделок, 2 комнаты спальни, 2 с/у и бомбические террасы! Ловим лучики солнца стильно и комфортно! ☀️

#барнхаус #кпзаповедник #лесныеулочки #барнхаусекатеринбург #строительстводомов