Добавить в корзинуПозвонить
Найти в Дзене
ANSIA DESIGN

Дизайн-проект двухкомнатной квартиры в Санкт-Петербурге. ЖК Golden City (Голден Сити)

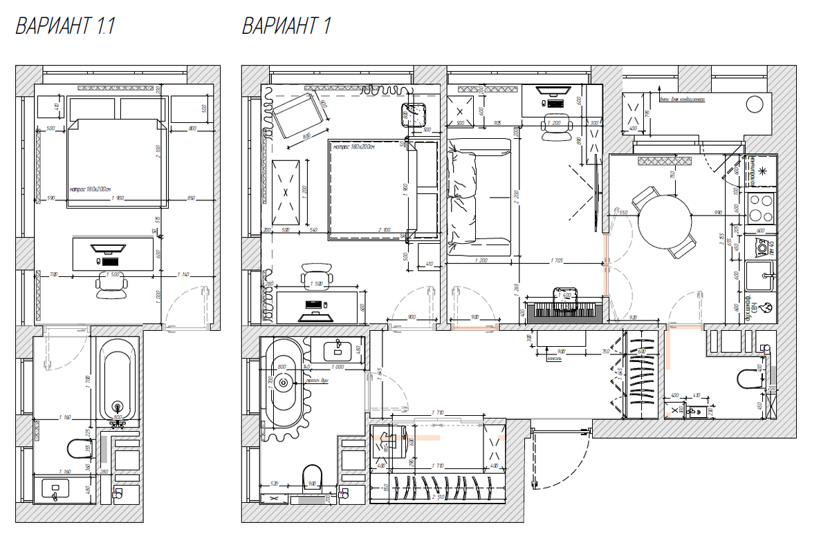
Всем доброго дня! Сегодня хотим рассказать вам про наш проект, который получился очень необычным. Дано: От застройщика была отдельная небольшая кухня (справа), две жилые комнаты, два санузла и ниша для гардеробной или шкафов хранения. Заказчик хотел немного изменить конфигурацию квартиры, но в целом оставить функционал помещений. Какие варианты мы предложили: 1. Кухню оставляем отдельной, но делаем широкий проём из гостиной, из кухни вход в маленький санузел. Заказчик просил оставить комнату изолированной, по возможности, чтобы в будущем организовать здесь детскую комнату. Мы же всё-таки, предложили пока использовать комнату для кабинета и гостиной зоны, так как детская может понадобиться через 3-5 лет. 2. Во втором варианте мы творчески подошли к планировке и предложили совсем изменить конфигурацию ванной комнаты, так как мы могли это сделать за счет прихожей зоны. Получилась зона "гостевая", просторное пространство прихожей-кухни-гостиной, и отдельная зона личного пользования, со с
Оглавление

Всем доброго дня! Сегодня хотим рассказать вам про наш проект, который получился очень необычным.

Дано:

  • двухкомнатная квартира 62 м2 в Санкт-Петербурге на Васильевском острове
  • необходимо разработать интерьер для проживания молодого человека, с перспективой проживания семьи

Варианты планировок.

От застройщика была отдельная небольшая кухня (справа), две жилые комнаты, два санузла и ниша для гардеробной или шкафов хранения.

Заказчик хотел немного изменить конфигурацию квартиры, но в целом оставить функционал помещений.

Какие варианты мы предложили:

-2

1. Кухню оставляем отдельной, но делаем широкий проём из гостиной, из кухни вход в маленький санузел. Заказчик просил оставить комнату изолированной, по возможности, чтобы в будущем организовать здесь детскую комнату.

Мы же всё-таки, предложили пока использовать комнату для кабинета и гостиной зоны, так как детская может понадобиться через 3-5 лет.

-3

2. Во втором варианте мы творчески подошли к планировке и предложили совсем изменить конфигурацию ванной комнаты, так как мы могли это сделать за счет прихожей зоны. Получилась зона "гостевая", просторное пространство прихожей-кухни-гостиной, и отдельная зона личного пользования, со своим выходом в ванную комнату.

-4

3. В третьем варианте вернулись к стандартному варианту санузла и гардеробной, но, как и в первом варианте объединили кухню-гостиную и вход в маленький санузел из кухни. Минус такой планировки - маленькая кухня по одной стене, поэтому сформировали ещё вариант.

-5

4. Этот вариант определили как финальный, где мы объединили пространство комнаты и кухни, но с перспективой восстановления перегородки и на месте шкафа прихожей восстанавливаем дверной проём в кухню.

Концепция.

Заказчик хотел интерьер с использованием современных и классических деталей. Основной акцентный цвет - зелёный, изумрудный.

Так как прихожая получилась удлинённой формы, мы решили разделить визуально пространство на входную часть и жилую зону. Входную часть прихожей выделили зелёным цветом, который переходит и на потолок.

-6
-7
-8
-9

В гостиной разместили вместительный современный диван, рабочее место, тв зону

-10
-11
-12
-13

При разработке концепции кухни, вдохновлялись атмосферой баров, хотелось передать пространство расслабления и приглушенности.

Как думаете, удалось?

-14
-15
-16
-17

Помещение спальни предложили сделать в более светлой цветовой гамме. Здесь помимо кровати также предусмотрели туалетный столик с зеркалом в потолок.

-18
-19
-20
-21
-22

В этом проекте самым необычным помещением у нас получилась ванная комната. Изначально застройщиком ванная спроектирована с двумя окнами, поэтому помещение имеет естественное помещение. Главной героиней помещения является ванная, она выполнена из прозрачного композита, а за ванной расположилась фитостена с живым озеленением. Живые растения имеют систему автополива и индивидуального освещения.

Ещё одна интересная фишка помещения - отложенная зона туалета. Такой приём обычно делают в загородных домах, тут получилось спрятать унитаз.

Сложность такой конфигурации в отдалённости канализационной трубы от ванной, придётся делать довольно высокий подиум для подключения.

-23
-24
-25
-26
-27
-28

В гостевом маленьком санузле удалось разместить стиральную и сушильную машины, а также за инсталляцией получилось много мест хранения.

Из интересного, мы не делали плитку в этом помещении, кроме зоны инсталляции, и даже разместили фотообои. Но необходимо было защитить зону раковины от попаданий воды на стену, поэтому в этом месте установили защитное прозрачное оргстекло.

Таким образом получили очень эффектное небольшое помещение.

-29
-30
-31

Ну и не сказали о гардеробной, она у нас тоже есть, она разместилась за раздвижными дверьми из коридора

-32
-33
-34
-35

Лоджию сделали местом отдыха, сильно там не разгуляешься, так как помещение небольшое и расположен внешний блок кондиционера

-36
-37

Как вам такой интерьер квартиры? Готовы на такое яркое решение?)

С радостью разработаем для вас индивидуальный дизайн по вашим пожеланиям и бюджету. Портфолио можно посмотреть на сайте ansiadesign.ru

________________

Заказать дизайн-проект от студии «Ansia design»

📲 +7 (927) 702-29-72

📲 +7 (909) 813-94-14

🖥️ ansiadesign.ru

📧ansiadesign@mail.ru