Добавить в корзинуПозвонить
Найти в Дзене

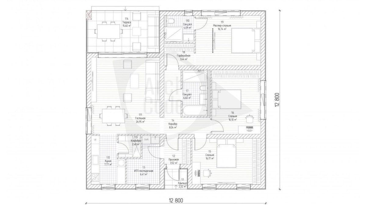
Проект одноэтажного дома «Куб»

Общая площадь: 118,3 м² Терраса: 15,6 м² Крыльцо: 2,32 м² Дом «Куб» сочетает светлую гостиную с выходом на террасу и отдельную кухню, три спальни (включая мастер-спальню с собственным санузлом), а также два санузла, кладовую, гардеробную и постирочную, обеспечивая комфорт и функциональность. Элегантный дизайн и лаконичные формы придают дому современный и привлекательный вид. Распределение помещений: ✔️ Гостиная — 26,95 м² ✔️ Кухня — 7,77 м² ✔️ Две спальни — 16,10 м² и 16,71 м² ✔️ Мастер-спальня с санузлом и гардеробной — 16,74 м² + 4,09 м² + 3,4 м² ✔️ Санузел — 6,60 м² ✔️ Кладовая — 2,48 м² ✔️ ИТП/постирочная — 6,41 м² Как построить дом в Тюмени? Как построить дом в Москве? Готовые дома в Тюмени Готовые дома в Москве Земельные участки в Тюмени Задать вопрос в ТГ И подписывайтесь на наш канал, чтобы не пропустить новые интересные проекты. #проектдома #проектодноэтажногодома #построитьдом #купитьдом #одноэтажныйдом #лучшиеодноэтажныедома #дом #новыедома

Общая площадь: 118,3 м²

Терраса: 15,6 м²

Крыльцо: 2,32 м²

Дом «Куб» сочетает светлую гостиную с выходом на террасу и отдельную кухню, три спальни (включая мастер-спальню с собственным санузлом), а также два санузла, кладовую, гардеробную и постирочную, обеспечивая комфорт и функциональность. Элегантный дизайн и лаконичные формы придают дому современный и привлекательный вид.

Распределение помещений:

✔️ Гостиная — 26,95 м²

✔️ Кухня — 7,77 м²

✔️ Две спальни — 16,10 м² и 16,71 м²

✔️ Мастер-спальня с санузлом и гардеробной — 16,74 м² + 4,09 м² + 3,4 м²

✔️ Санузел — 6,60 м²

✔️ Кладовая — 2,48 м²

✔️ ИТП/постирочная — 6,41 м²

-2

Понравился проект? Заказать проект или выбрать подобный можно по телефону: +79323212510. Звоните или пишите. Заявки принимаются по вотцап, телеграмм. Готовы рассчитать для вас смету!

Как построить дом в Тюмени?

Как построить дом в Москве?

Готовые дома в Тюмени

Готовые дома в Москве

Земельные участки в Тюмени

Задать вопрос в ТГ

И подписывайтесь на наш канал, чтобы не пропустить новые интересные проекты.

#проектдома #проектодноэтажногодома #построитьдом #купитьдом

#одноэтажныйдом #лучшиеодноэтажныедома #дом #новыедома