Добавить в корзинуПозвонить
Найти в Дзене

Из чего состоит дизайн-проект, и можно ли на чем-то сэкономить?

У индивидуального дизайн-проекта много преимуществ. Он даёт чёткое представление об объёмах и порядке работ, исключает не всегда удачное творчество подрядчиков, позволяет планировать сроки ремонта и смету расходов, точно рассчитать количество необходимых стройматериалов. При этом далеко не все люди готовы заказать разработку дизайн-проекта, считая эту услугу чрезмерно дорогой. Но дизайн-проект – это не всегда дорого. Расскажу, из чего состоит дизайн-проект и на чём можно сэкономить. Любой дизайн-проект определяется тремя главными составляющими: Давайте разберемся от чего можно отказаться, чтобы сэкономить, а без чего никак не обойтись. Грубо говоря, это просто план квартиры или дома, составленный по обмерам, с расстановкой мебели. Здесь нет понимания что это за мебель, какие цвета и материалы использованы в отделке. Но при этом, он является самым главным и начальным этапом, якорем, крепко держащим на себе дизайн интерьера и его декорирование. Понимая расстановку мебели, даже архитек
Оглавление
У индивидуального дизайн-проекта много преимуществ. Он даёт чёткое представление об объёмах и порядке работ, исключает не всегда удачное творчество подрядчиков, позволяет планировать сроки ремонта и смету расходов, точно рассчитать количество необходимых стройматериалов.

При этом далеко не все люди готовы заказать разработку дизайн-проекта, считая эту услугу чрезмерно дорогой. Но дизайн-проект – это не всегда дорого. Расскажу, из чего состоит дизайн-проект и на чём можно сэкономить.

Любой дизайн-проект определяется тремя главными составляющими:

  1. планировочное решение;
  2. рабочая документация;
  3. 3д визуализация.

Давайте разберемся от чего можно отказаться, чтобы сэкономить, а без чего никак не обойтись.

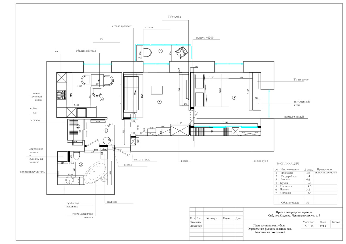
Планировочное решение

Грубо говоря, это просто план квартиры или дома, составленный по обмерам, с расстановкой мебели.

Здесь нет понимания что это за мебель, какие цвета и материалы использованы в отделке. Но при этом, он является самым главным и начальным этапом, якорем, крепко держащим на себе дизайн интерьера и его декорирование.

Планировочное решение
Планировочное решение

Понимая расстановку мебели, даже архитекторы, согласно ему, разрабатывают стены и перегородки. Зная где и что будет стоять, вы не упустите важные моменты: правильно расставите электрику, освещение, можно понять заранее какие части помещения будут служить для хранения, а к каким будет максимальный доступ. Отказаться от планировки в принципе невозможно. Это фундамент для любого ремонта и строительства. В любом случае нужно делать её грамотно: с размерами и проходами вокруг, чтобы потом пользоваться данным планом в жизни.

Рабочая документация

Это обмерный план, планы по демонтажу и возведению стен, электромонтажных работ, напольных покрытий, потолков, стен санузлов, раскладки плитки, привязки светильников и выключателей, ведомость заполнения дверных проёмов и т. д. По сути, рабочая документация – это ТЗ для строителей. Точное, подробное и с полноценной необходимой информацией.

Из рабочей документации можно понять, где будут располагаться точки электрики, освещения, подводы к сантехнике и к бытовой технике. От раскладки плитки в санузлах зависят высоты коробов, ниш, полок, габариты тумб и раковин. Отделка стен с подсчетом количества необходимого материала – документ, который позволит не только точно следовать замыслу дизайнера, но и не переплатить. Даже элементарно количество погонного метра плинтуса вы уже знаете заранее, что немаловажно. Ведь отделочные материалы нужно вовремя заказать и привезти. Многие люди, не зная сколько потребуется стройматериалов, покупают их с запасом, что ведёт к дополнительным расходам.

В принципе, это уже полноценный дизайн-проект, который можно показать любой строительной бригаде или частному мастеру. Ознакомившись с ним, он скажет, сколько будут стоить материалы, а сколько его работа, что, в свою очередь, поможет вам застраховаться от сюрпризов в дальнейшем. Также, помимо планов с подсчётом количества материалов, есть проект в чертёжном 3д виде, чтобы вы смогли заранее оценить мебель в объеме, освещение с розетками/выключателями, и другие важные моменты: нравится ли созданное жилое пространство вам, насколько удобно в нём будет. Также это позволит сразу понять где требуется зонирование по отделке стен и декорирование.

Проект в чертежном 3D-виде
Проект в чертежном 3D-виде

3д визуализация

3д визуализация - это представление картинок в объёме с расположением мебели, габаритов и отделки в визуальном образе, который максимально близок к реальному. Текстуры, цвет и фактура понятны, что упрощает представление и выбор материала для заказа. Минусы в 3д также существуют, хотя это очень удобный инструмент:

  • Неточная цветопередача: на экране ноутбука цвета могут показаться тёмного голубого цвета, на телефоне – синими, а в реальности будут совсем другими. Цвета стен подбирают выкрасами, а текстиль вживую будет смотреться иначе, чем представленные образцы в каталоге.
  • Невозможно компьютерной реальностью передать текстуру материалов. Так, дерево, неважно, напольное покрытие ли это или мебельный фасад, нужно не только смотреть, но и трогать вживую. А керамическая плитка может иметь разные степени шероховатости, глянца. Рисунок на ней также может отличаться от представленного в каталоге интернета.

Поэтому важно понимать, что 3D-визуализация – не панацея.

Затраты на 3D-визуализацию составляют 15–20 % от общей стоимости дизайн-проекта. В то же время это, пусть и самая красивая, но и самая необязательная её часть. Она не несёт смысловой нагрузки, по ней не будут работать подрядчики, не будут делаться покупки. Заменив её на 3D-чертежи, вы сэкономите не только деньги, но и время (около 2 недель).

А на сохранённые средства лучше заказать авторский надзор, который полностью исключит ситуации, когда подрядчики неверно истолковали эскизы и чертежи, позволит не упустить ничего важного и сделать всё в соответствии с замыслом автора проекта. Если во время демонтажа обнаружились какие-то скрытые моменты, которые неизбежно приведут к изменениям в проекте, дизайнер оперативно скорректирует документацию на месте. Таким образом, услуга «авторский надзор» поможет получить заказчику именно тот дизайн, который он заказывал, сэкономит время и нервы, позволит избежать возможных затрат на переделку.

*Все фото, представленные на странице, из реальных проектов дизайнера Веры Откидач.