Найти в Дзене
DIVAN.RU

Современная квартира 74 кв.м для многодетной семьи

Оглавление

В большой семье всегда остро стоит два вопроса: личное пространство каждого и максимальное количество мест для хранения. Посмотрим, как удалось решить их оба в рамках этого проекта.

Авторы проекта: дизайнер Виктория Егорова, автор фото Александра Дуброва
Авторы проекта: дизайнер Виктория Егорова, автор фото Александра Дуброва

Объект: трехкомнатная квартира 74 кв.м в г. Санкт-Петербург, ЖК «АйДи»

Автор проекта: дизайнер Виктория Егорова, автор съемки: Александра Дуброва

Бюджет проекта: 6 млн рублей

Владельцы этой трешки в спальном районе Петербурга — супруги с тремя детьми школьного возраста. Основная сложность проекта — сжатые сроки. Семья обратилась к дизайнеру в начале мая. Новый учебный год детям предстояло начать уже в школе по соседству, поэтому ремонт стартовал сразу после утверждения планировочного решения. Пока шли монтажно-демонтажные работы, супруги согласовали визуальную составляющую. В ноябре семья полноценно перебралась в новую квартиру.

Что просили владельцы

  • Возможность каждому члену семьи уединиться.
  • Места для хранения в каждой комнате.
  • Общее пространство для сборов семьей и встреч с друзьями.

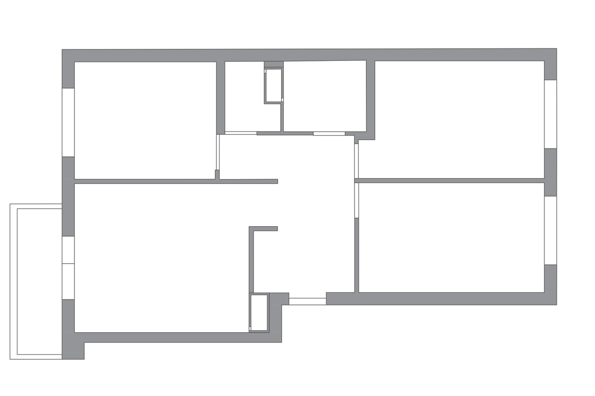
Планировочное решение

Изменения в планировку застройщика внесли незначительные. Уменьшив площадь одной из детских, в прихожей спроектировали гардеробную. Ванную и туалет объединили, добавив к ним еще и часть коридора. Таким образом организовали просторный санузел с мини-постирочной, хозблоком и массой мест для хранения. Итоговая планировка — на фото ниже, а исходный план от застройщика — в галерее, листайте👇

Кухня-гостиная

В семье часто и много готовят, поэтому вместимости и эргономике мебели на кухне уделили особое внимание. От встроенного холодильника отказались в пользу отдельно стоящего, ввиду разницы в объеме вместимости моделей. На одной из стен отказались от навесных шкафов, но «продлили» нижний ярус навесной тумбой под ТВ в стилистике гарнитура. Столешницу выбрали из акрилового камня. Фартук на кухне выложили керамогранитом.

В качестве цветовой базы использовали холодный белый оттенок. Он стал фоном для акцентных деталей — обеденной группы, бытовой техники, предметов освещения. А также сделал еще более активным древесный декор на фасадах гарнитура.

Кухня-гостиная наполнена деталями, которые идентифицируют современный стиль, — комментирует дизайнер. — Рейки на стене, лаконичные светильники, стол со столешницей из керамогранита, фасады кухонной мебели без ручек с профилями Gola, диван на изящных черных ножках.
В зону отдыха поставили лаконичный диван от бренда divan.ru в практичной обивке из рогожки. На случай прихода гостей его легко разложить в спальное место.

➡️Товары бренда divan.ru

Диван прямой Слипсон Velvet Stone – купить в Москве по цене 59 990 рублей в интернет-магазине
Журнальный стол Тони-1 White – купить в Москве по цене 3 490 рублей в интернет-магазине

За общий свет в кухне-гостиной отвечают линейные накладные светильники. Бра у дивана дают рассеянный вечерний свет для застольных бесед и просмотра ТВ. Рабочее место подсвечивается LED-лентой в корпусе верхнего яруса и светом от вытяжки.

Спальня родителей

Заказчики не испугались цвета и согласились на сочно-изумрудную кровать в спальне. Оттенок обивки поддержали молдингами и выкрасом по периметру комнаты. В комнате организовали небольшую гардеробную — это позволило отказаться от систем хранения. Помимо основного света, супруги просили неяркий вечерний для просмотра ТВ — мы подобрали светильник у изголовья в виде шара из матового белого стекла на двух скрещенных прутьях. В поддержку черным деталям повесили бра над косметическим столиком с зеркалом.

Детская для мальчика

В комнате у сына-подростка появились лофтовые детали: изобилие фактуры дерева и черные металлические элементы. Набор мебели здесь стандартный: кровать, распашной шкаф Кимбол и письменный стол Лофт от бренда divan.ru.

Интересное решение: на противоположной стене от кровати поклеили обои в виде реек.

➡️Товары бренда divan.ru

Стол Лофт-2 Tobacco – купить в Москве по цене 22 690 рублей в интернет-магазине
Распашной шкаф Кимбол-2-100-240 Oak – купить в Москве по цене 19 990 рублей в интернет-магазине
Кровать Барроу 90 Grey – купить в Москве по цене 11 990 рублей в интернет-магазине
Журнальный стол Глэд Black – купить в Москве по цене 1 290 рублей в интернет-магазине

💥 Успейте купить мебель из наличия со скидками до -70%. Закажите с быстрой доставкой и оплатите бонусами до 15% стоимости на divan.ru >>

-7

Детская для двух девочек

Вторая детская получилась нежной. Обои с бабочками вместе с прозрачным тюлем создают здесь эффект «полета». Две кровати Нордик от divan.ru расположили вдоль стены, над каждым изголовьем повесили бра для вечернего чтения. У окна поставили этажерку для книг и игрушек.

Авторы проекта: дизайнер Виктория Егорова, автор фото Александра Дуброва
Авторы проекта: дизайнер Виктория Егорова, автор фото Александра Дуброва

Обе девочки учатся в школе, поэтому обязательным атрибутом комнаты стала пара письменных столов Берлин от divan.ru. Распашной шкаф Кимбол вмещает все наряды. Даже в небольшом пространстве он не выглядит громоздким за счет белого цвета.

➡️Товары бренда divan.ru

Кровать Нордик 90 Light – купить в Москве по цене 21 990 рублей в интернет-магазине
Распашной шкаф Кимбол-2-100-210 Whitе – купить в Москве по цене 19 990 рублей в интернет-магазине
Письменный стол Берлин-5 Белый – купить в Москве по цене 16 990 рублей в интернет-магазине

Санузел

Просторный санузел выполняет еще и функцию постирочной: здесь расположена колонна со стиральной и сушильной машинами. На полу и стенах — крупноформатный керамогранит двух оттенков серого. Графичные акценты, как и в других помещениях квартиры, расставлены черным: смесители, профиль душевой кабины, полотенцесушитель.

Прихожая

На полу во входной зоне уложили крупноформатную плитку светлого оттенка. По обеим сторонам от входа стоят встроенные шкафы, чуть дальше по коридору находится гардеробная.

Авторы проекта: дизайнер Виктория Егорова, автор фото Александра Дуброва
Авторы проекта: дизайнер Виктория Егорова, автор фото Александра Дуброва

==========

Оцените интерьер в комментариях, а если материал понравился — не забудьте поставить лайк👍

🖤divan.ru — не только блог про интерьеры, но и производитель доступной дизайнерской мебели. Ищите новые идеи и переходите на сайт, чтобы воплотить их в жизнь.

*Цены актуальны на момент публикации статьи