Барн-концепт планировка 3 ✨ Разница в количестве спальных комнат, в данной планировке их 3! Очень удобное решение за счет внутренних перегородок играть с планировкой оставаясь в одном габарите! Подробнее +7(343)300-55-77 📱
Барн-концепт планировка 3 ✨ Разница в количестве спальных комнат, в данной планировке их 3! Очень удобное решение за счет внутренних перегородок играть с планировкой оставаясь в одном габарите! Подробнее +7(343)300-55-77 📱
...Читать далее
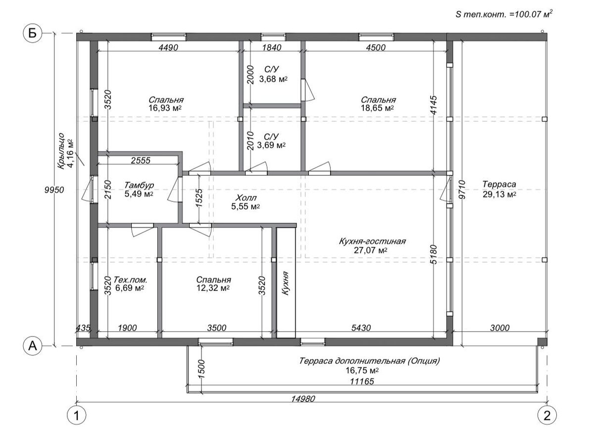
Барн-концепт планировка 3 ✨
Разница в количестве спальных комнат, в данной планировке их 3!
Очень удобное решение за счет внутренних перегородок играть с планировкой оставаясь в одном габарите!