Добавить в корзинуПозвонить
Найти в Дзене
Эдуард Суханов

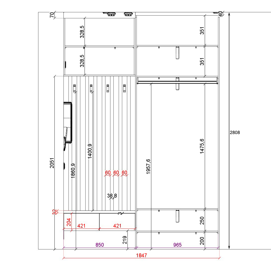
Шкаф в прихожую

Сделали клиенту шкаф-купе недавно, я его еще не показывал, вдогонку попросил ещё шкаф сконструировать, теперь в прихожую. Дом новостройка, ремонт от строителей, ему 3 года. Ремонт похабный, даже хуже пиковского сделано, мне лично не понравился. Вот что я ему предложил. Чертежи.

Сделали клиенту шкаф-купе недавно, я его еще не показывал, вдогонку попросил ещё шкаф сконструировать, теперь в прихожую.

Дом новостройка, ремонт от строителей, ему 3 года. Ремонт похабный, даже хуже пиковского сделано, мне лично не понравился.

Вот что я ему предложил.

Чертежи.