Найти в Дзене

Как мы проектируем планировки✏️

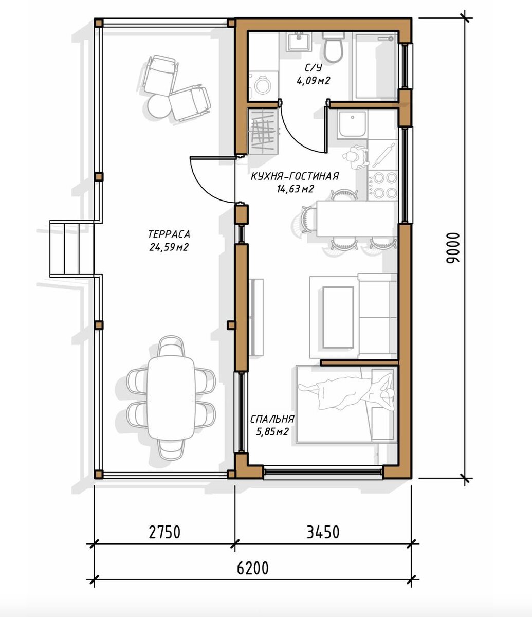
Каждая планировка в Black Module — это не просто расстановка стен. Мы продумываем всё: от расположения окон до того, где вы будете заряжать телефон у кровати. Мы закладываем: — удобную логику перемещения по дому — комфортные расстояния между мебелью — грамотное размещение розеток, выключателей и света — сценарии жизни: где вы будете пить кофе, встречать гостей, хранить вещи и отдыхать Мы опираемся на опыт, эргономику и понимание того, как по-настоящему живётся в доме, а не просто "проживается площадь". Можно внести изменения в проект — но только на этапе его утверждения. Чем раньше вы приходите с пожеланиями — тем больше гибкости. А в остальном — доверьтесь нам. Мы умеем строить дома, в которых удобно жить. Для наглядности — прикрепляем планировки двух наших домов: самого компактного площадью 55 м² и большого — 146 м². Сравните, как меняется организация пространства и сколько возможностей для жизни открывает каждый из них.

Каждая планировка в Black Module — это не просто расстановка стен. Мы продумываем всё: от расположения окон до того, где вы будете заряжать телефон у кровати.

Мы закладываем: — удобную логику перемещения по дому — комфортные расстояния между мебелью — грамотное размещение розеток, выключателей и света — сценарии жизни: где вы будете пить кофе, встречать гостей, хранить вещи и отдыхать

Мы опираемся на опыт, эргономику и понимание того, как по-настоящему живётся в доме, а не просто "проживается площадь".

Можно внести изменения в проект — но только на этапе его утверждения.

Чем раньше вы приходите с пожеланиями — тем больше гибкости.

А в остальном — доверьтесь нам. Мы умеем строить дома, в которых удобно жить.

Для наглядности — прикрепляем планировки двух наших домов: самого компактного площадью 55 м² и большого — 146 м².

Сравните, как меняется организация пространства и сколько возможностей для жизни открывает каждый из них.

-2