Добавить в корзинуПозвонить
Найти в Дзене

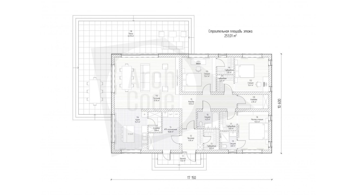
Проект одноэтажного дома в скандинавском стиле «Маклин»

Площадь внутренних помещений составляет 150,28 м², дополнительно предлагается просторное патио площадью 63,7 м². Фасад дома сочетает светлую штукатурку с натуральным деревом, имеет двускатную крышу с широкими свесами и панорамные окна. Особенностью проекта является патио — обширная терраса, выходящая из гостиной, оформленная в минималистичном стиле с зоной для отдыха и обеденной группой. Также стоит отметить продуманное зонирование и отсутствие излишней загруженности интерьера. Планировка включает: ✔️ Крыльцо - 5,52 м² ✔️ Кухня - 6,21 м² ✔️ Гостиная - 37,95 м² ✔️ Мастер-спальня - 13,5 м² ✔️ Две спальни - 8,41 м² и 9,84 м² ✔️ Постирочная и кладовая - 3,0 м² и 4,95 м² ✔️ Две гардеробные - 2,34 м² и 1,84 м² ✔️ Два санузла - 3,60 м² и 4,45 м² Проект «Маклин» станет отличным выбором для тех, кто ценит как эстетику, так и комфорт. Как построить дом в Тюмени? Как построить дом в Москве? Готовые дома в Тюмени Готовые дома в Москве Земельные участки в Тюмени Задать вопрос в ТГ И подписывайтесь

Площадь внутренних помещений составляет 150,28 м², дополнительно предлагается просторное патио площадью 63,7 м².

Фасад дома сочетает светлую штукатурку с натуральным деревом, имеет двускатную крышу с широкими свесами и панорамные окна.

Особенностью проекта является патио — обширная терраса, выходящая из гостиной, оформленная в минималистичном стиле с зоной для отдыха и обеденной группой. Также стоит отметить продуманное зонирование и отсутствие излишней загруженности интерьера.

Планировка включает:

✔️ Крыльцо - 5,52 м²

✔️ Кухня - 6,21 м²

✔️ Гостиная - 37,95 м²

✔️ Мастер-спальня - 13,5 м²

✔️ Две спальни - 8,41 м² и 9,84 м²

✔️ Постирочная и кладовая - 3,0 м² и 4,95 м²

✔️ Две гардеробные - 2,34 м² и 1,84 м²

✔️ Два санузла - 3,60 м² и 4,45 м²

Проект «Маклин» станет отличным выбором для тех, кто ценит как эстетику, так и комфорт.

-2

Понравился проект? Заказать проект или выбрать подобный можно по телефону: +79323212510. Звоните или пишите. Заявки принимаются по вотцап, телеграмм. Готовы рассчитать для вас смету!

Как построить дом в Тюмени?

Как построить дом в Москве?

Готовые дома в Тюмени

Готовые дома в Москве

Земельные участки в Тюмени

Задать вопрос в ТГ

И подписывайтесь на наш канал, чтобы не пропустить новые интересные проекты.

#проектдома #проектодноэтажногодома #построитьдом #купитьдом

#одноэтажныйдом #лучшиеодноэтажныедома #дом #новыедома