Найти в Дзене
Красота в деталях

"В ритме спокойствия" - проект квартиры для семьи из трех человек

Когда я начала работать над этим интерьером, передо мной стояла задача создать не просто функциональное пространство, а атмосферу. Ту самую, в которой хочется замедлиться, дышать глубже, чувствовать дом не как коробку с вещами, а как продление себя. ЗАДАЧИ: Планировка: воздух и логика Эта квартира — чуть больше 90 м², планировка от застройщика подошла и ее не меняли. Сохранено максимум открытого пространства при входе, что дает ощущение легкости и простора. ,Объединенная кухня-гостиная четко разделина по функциям. Каждая зона логична, у неё есть своё настроение, но вместе они звучат как одно целое — как хорошая музыка без лишних нот. Цвет и свет: основа уюта Я использовала нейтральную, очень спокойную палитру: тёплый белый, беж, светлое дерево, графитовые акценты. Эти цвета не перегружают, а наоборот — позволяют глазу отдыхать. Свет — отдельная глава. Я всегда за многоуровневый сценарий: потолочный, локальный, декоративный. Именно за счёт света пространство может “дышать”, а атмосфера

Когда я начала работать над этим интерьером, передо мной стояла задача создать не просто функциональное пространство, а атмосферу. Ту самую, в которой хочется замедлиться, дышать глубже, чувствовать дом не как коробку с вещами, а как продление себя.

ЗАДАЧИ:

  • Оформить интерьер квартиры с минимальными вложениями, при этом создать вау-эффект;
  • Не менять планировку;
  • Предусмотреть много мест хранения

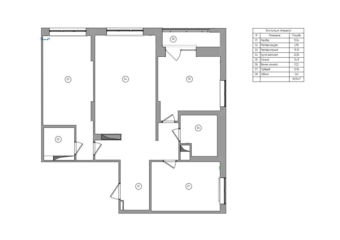
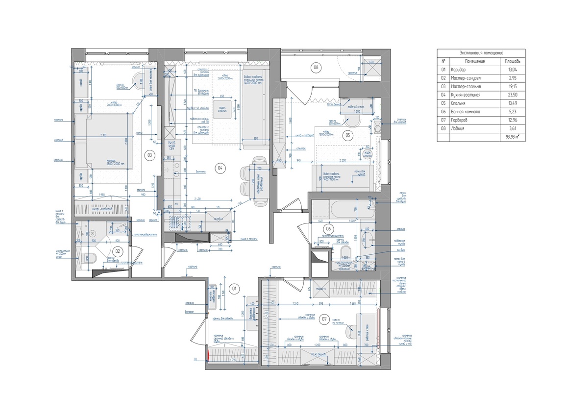
Планировка: воздух и логика

Эта квартира — чуть больше 90 м², планировка от застройщика подошла и ее не меняли. Сохранено максимум открытого пространства при входе, что дает ощущение легкости и простора. ,Объединенная кухня-гостиная четко разделина по функциям.

Планировка ДО
Планировка ДО
Планировка ПОСЛЕ
Планировка ПОСЛЕ

Каждая зона логична, у неё есть своё настроение, но вместе они звучат как одно целое — как хорошая музыка без лишних нот.

Цвет и свет: основа уюта

Я использовала нейтральную, очень спокойную палитру: тёплый белый, беж, светлое дерево, графитовые акценты. Эти цвета не перегружают, а наоборот — позволяют глазу отдыхать.

Свет — отдельная глава. Я всегда за многоуровневый сценарий: потолочный, локальный, декоративный. Именно за счёт света пространство может “дышать”, а атмосфера меняться от утра к вечеру.

Материалы: тактильность важнее трендов

В этом проекте много текстуры: натуральное дерево, мягкий текстиль, фактурная штукатурка, стекло и керамика.

Они создают визуальную глубину, и в то же время дают ощущение “живого” пространства — без глянца и искусственности.

Мебель и акценты: без перегруза, но с характером

Все предметы мебели в интерьере — функциональны, но каждый имеет свой характер. Ничего случайного, ничего “просто потому что красиво”.

Декор — минимальный, но выразительный: крупный постер, любимая керамика, винтажный торшер. Это как акценты в парфюме — немного, но метко.

КОНЦЕПЦИЯ:

Прихожая

При входе нас встречает – вешалка в виде панно - с крючками и банкетка. Такой прием создает эффект не прихожей а уникального пространства и, несомненно, привлекает к себе внимание! Напротив зеркало полукруг, утопающее в дереве.

Стены коридора украшают семейные фотографии.

Кухня-гостиная

Мягкая диванная зона функционально-минималистична, но богата на цвет и фактуры. Центр всего пространства - камин. все внимание мы уделяем ему при входе, а кухня является фоном и не заметна в пространстве.

Картина над столом и диваном - объединяет все пространство.

Спальня

Безусловно, главным героем спальни является кровать. Кровать необходима спокойная, с мягкими боковинами.

Настенный светильник Mantra NOTTE никого не оставит равнодушным.

Это основные помещения. В продолжении расскажу о детской-гостиной, гардеробной и 8 вариантах гостевой ванной комнаты.

Этот проект — о балансе. Между эстетикой и удобством. Между тишиной и индивидуальностью. Между визуальной лёгкостью и содержанием.

Здесь нет крика, нет трендов ради трендов. Зато есть ощущение “дома” — того самого, в который хочется возвращаться.

📌 Если вам близка такая философия интерьера — с удовольствием помогу создать пространство, в котором будет хорошо именно вам. Пишите — обсудим!