Найти в Дзене
Проектная мастерская №16

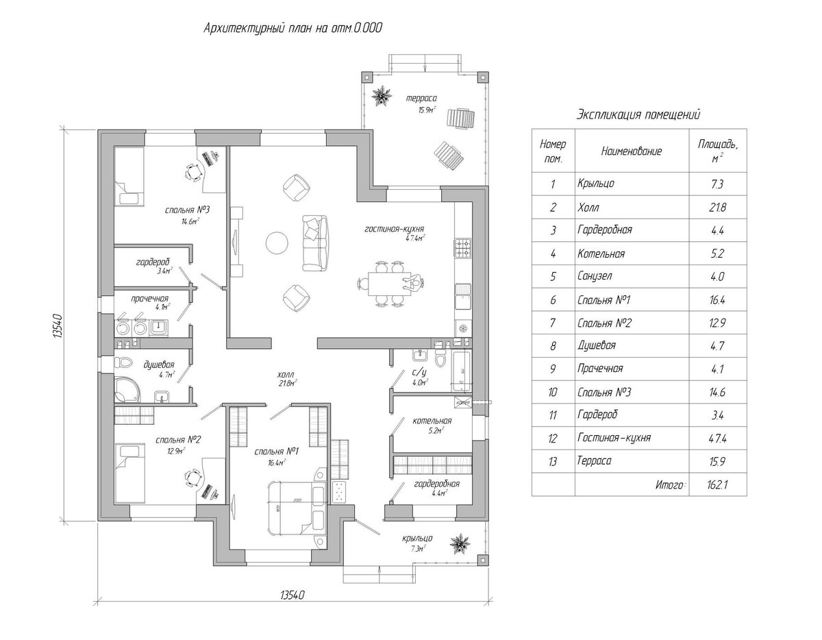
"Ягодный" - проект одноэтажного дома площадью 160кв.м. с котельной и прачечной

Доброго времени года! На улице солнечный май, а на канате Проектной мастерской №16 вариант планировки одноэтажного дома площадью 160кв.м. "Ягодный" - проект одноэтажного дома площадью 160кв.м. В данном планировочном решении помимо просторной общей комнаты и трех спален предусмотрены два санузла, гардероб, котельная и прачечная. При кухне на тыловом фасаде располагается терраса. Дом имеет сложную форму в плане, что придает выразительности фасаду. Рабочий проект данного дома разработан для стены из керамического блока 44 и лицевого одинарного кирпича. Планировку с размерами помещений можете посмотреть в файле с рабочим проектом, который доступен для скачивания в нашем телеграмм канале https://t.me/pm16ru

Доброго времени года! На улице солнечный май, а на канате Проектной мастерской №16 вариант планировки одноэтажного дома площадью 160кв.м.

"Ягодный" - проект одноэтажного дома площадью 160кв.м. В данном планировочном решении помимо просторной общей комнаты и трех спален предусмотрены два санузла, гардероб, котельная и прачечная. При кухне на тыловом фасаде располагается терраса. Дом имеет сложную форму в плане, что придает выразительности фасаду.

-2

Рабочий проект данного дома разработан для стены из керамического блока 44 и лицевого одинарного кирпича. Планировку с размерами помещений можете посмотреть в файле с рабочим проектом, который доступен для скачивания в нашем телеграмм канале https://t.me/pm16ru