Найти в Дзене
Myslo.ru

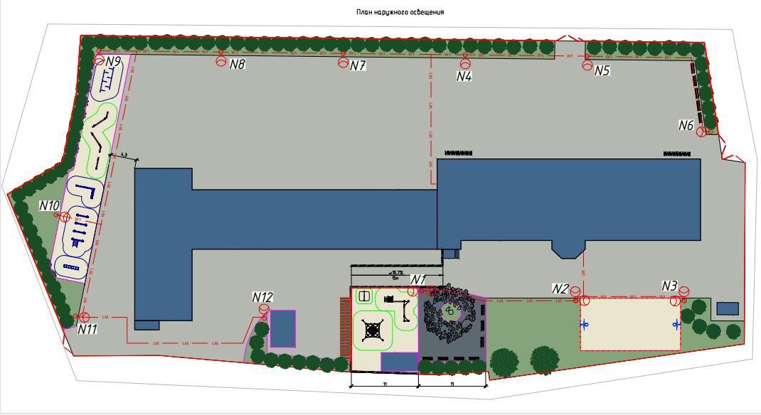
Благоустройство территории у гимназии №30 обойдется в 26 млн рублей

Работы подрядчик должен завершить до 1 августа. Выполнение работ по благоустройству территории у гимназии № 30 в Туле будет вестись в рамках регионального проекта «Все лучшее детям» национального проекта «Молодежь и дети». Аукцион на право выполнения работ размещен на сайте Госзакупок. Максимальная стоимость контракта составляет 26 млн 360 тыс. рублей. Благоустройство предполагает асфальтирование, укладку прорезиненного покрытия, монтаж освещения. Напомним, сейчас в гимназии ведется капитальный ремонт. Он предполагает замену электрики, сетей водоснабжения, водоотведения, отопления, вентиляции и монтаж новой пожарной сигнализации. Подрядчик капитально отремонтирует крышу, внутренние помещения, а также фасад. Стоимость работ составит порядка 126 млн рублей. Окончиться ремонт должен не позднее 15 августа 2025 года. Читайте полную версию статьи на сайте MySlo.ru:
Благоустройство территории у гимназии №30 обойдется в 26 млн рублей

Работы подрядчик должен завершить до 1 августа.

Выполнение работ по благоустройству территории у гимназии № 30 в Туле будет вестись в рамках регионального проекта «Все лучшее детям» национального проекта «Молодежь и дети». Аукцион на право выполнения работ размещен на сайте Госзакупок.

Максимальная стоимость контракта составляет 26 млн 360 тыс. рублей. Благоустройство предполагает асфальтирование, укладку прорезиненного покрытия, монтаж освещения.

-2

Напомним, сейчас в гимназии ведется капитальный ремонт. Он предполагает замену электрики, сетей водоснабжения, водоотведения, отопления, вентиляции и монтаж новой пожарной сигнализации. Подрядчик капитально отремонтирует крышу, внутренние помещения, а также фасад. Стоимость работ составит порядка 126 млн рублей. Окончиться ремонт должен не позднее 15 августа 2025 года.

Читайте полную версию статьи на сайте MySlo.ru:
Благоустройство территории у гимназии №30 обойдется в 26 млн рублей