Добавить в корзинуПозвонить
Найти в Дзене

Как превратить мечты в реальность: 3D-визуализация квартиры - от эскиза до готового проекта

3D-визуализация квартиры - это современный инструмент, который позволяет увидеть будущий интерьер ещё на стадии проектирования. Благодаря технологиям компьютерной графики, собственники, дизайнеры и застройщики могут получить реалистичное изображение пространства, что значительно облегчает принятие решений, помогает избежать ошибок и повышает привлекательность проекта. В этой статье расскажу о том, что такое 3D-визуализация, из каких этапов она состоит и как она помогает реализовать идеальный интерьер. А так же поделюсь примером задания и как оно было выполнено. Задача: Мне поручили создать дизайн-визуализацию квартиры, чтобы наглядно показать пример ремонта от застройщика. Дизайн плана не было, только референсы с примерной атмосферой. Главная задача - превратить скромную планировку и пару вдохновляющих образцов общего стиля в яркое, атмосферное представление будущего интерьера. Времени очень мало, сроки сжаты, но именно это добавляет драйва и позволяет проявить максимум креатива и проф
Оглавление

3D-визуализация квартиры - это современный инструмент, который позволяет увидеть будущий интерьер ещё на стадии проектирования. Благодаря технологиям компьютерной графики, собственники, дизайнеры и застройщики могут получить реалистичное изображение пространства, что значительно облегчает принятие решений, помогает избежать ошибок и повышает привлекательность проекта.

В этой статье расскажу о том, что такое 3D-визуализация, из каких этапов она состоит и как она помогает реализовать идеальный интерьер. А так же поделюсь примером задания и как оно было выполнено.

Задача: Мне поручили создать дизайн-визуализацию квартиры, чтобы наглядно показать пример ремонта от застройщика. Дизайн плана не было, только референсы с примерной атмосферой. Главная задача - превратить скромную планировку и пару вдохновляющих образцов общего стиля в яркое, атмосферное представление будущего интерьера. Времени очень мало, сроки сжаты, но именно это добавляет драйва и позволяет проявить максимум креатива и профессионализма.

Что такое 3D-визуализация квартиры?

3D-визуализация - это создание трехмерной графической модели интерьера, которая максимально точно передает внешний вид будущего пространства. В отличие от обычных схем или чертежей, 3D-рендеринг позволяет увидеть интерьер с разных ракурсов, оценить цветовые решения, материалы, освещение и общую атмосферу.

Эта технология помогает заказчикам и дизайнерам понять, как будет выглядеть квартира после ремонта или оформления, и внести необходимые корректировки на ранних этапах.

Основные этапы процесса создания 3D-визуализации квартиры

1. Подготовительный этап — сбор информации и планировка

Перед началом моделирования важно иметь чёткое представление о планировке, размерах помещения, архитектурных особенностях и предпочтениях заказчика. На этом этапе собираются чертежи, планы, фотографии, а также озвучиваются требования к стилю, цветовой гамме и материалам.

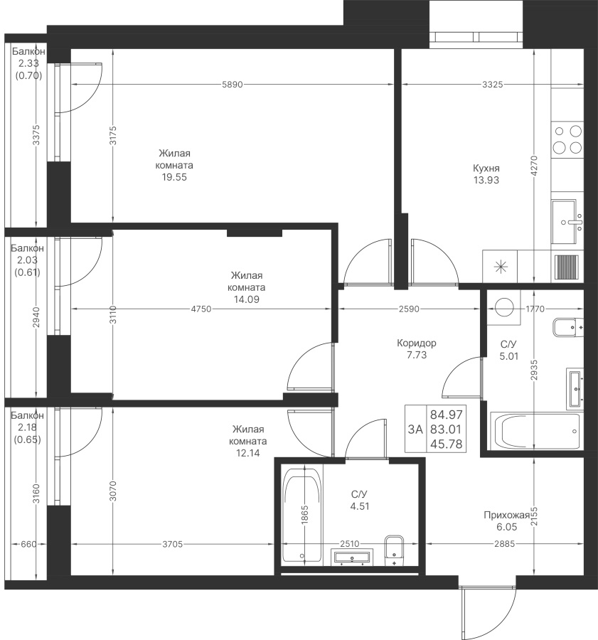
На изображении представлен план квартиры. На плане обозначены различные комнаты, такие как кухня, гостиная, спальни, санузел и прихожая. Также указаны размеры комнат и расположение дверей и окон. Это схематическое представление планировки квартиры, используемое в архитектуре и дизайне интерьеров.
На изображении представлен план квартиры. На плане обозначены различные комнаты, такие как кухня, гостиная, спальни, санузел и прихожая. Также указаны размеры комнат и расположение дверей и окон. Это схематическое представление планировки квартиры, используемое в архитектуре и дизайне интерьеров.

2. Создание 3D модели интерьера

Этот этап включает в себя моделирование всех элементов помещения:

- Поднятие стен, полов и потолков - создание базовой геометрии интерьера.

- Проёмы дверей и окон - вырезание отверстий для оконных и дверных проёмов, что обеспечивает точную планировку.

- Размещение встроенных элементов - шкафы, кухни, перегородки и другие конструкции.

Важно обеспечить точность размеров, чтобы будущая визуализация максимально соответствовала реальности.

3. Детализация и текстурирование

После моделирования базовых элементов добавляются материалы и текстуры:

- Обои, плитка, ламинат, паркет, краски.

- Мебель, освещение, аксессуары.

- Стены украшаются изображениями, обоями или декоративными элементами.

Этот этап создает реалистичность и помогает понять, как будет сочетаться выбранное оформление.

4. Освещение и рендеринг

Реалистичный свет - ключевой аспект высокой качественной визуализации. На этом этапе настраиваются источники света, учитывая естественное освещение из окон и искусственное освещение внутри помещения.

5. Обзор и финальные корректировки

После получения первоначальных черновых изображений заказчик может предложить коррективы - изменить цвета, материалы или расположение элементов. Этот процесс повторяется до достижения желаемого результата.

6. Далее выполняется финальный рендер - обработка сцены с учетом теней, отражений и глобального освещения для получения максимально приближенного к реальности изображения.

Преимущества 3D-визуализации квартиры

- Визуальное понимание итогового результата. Реалистичные изображения позволяют «прогуляться» по будущей квартире и понять ее атмосферу.

- Экономия времени и денег. Корректировки на стадии проекта обходятся дешевле и позволяют избежать дорогостоящих изменений на этапе ремонта.

- Меньше ошибок и недоразумений. Визуализация помогает обнаружить несоответствия или неудобства еще перед началом ремонтных работ.

- Маркетинговая привлекательность. Для застройщиков и агентств интерьерные визуализации - эффективный инструмент для продвижения продаж.

Почему стоит заказать профессиональную 3D-визуализацию

Создать качественную визуализацию самостоятельно без специальных знаний сложно и требует времени. Профессионалы используют современные программные средства (3ds Max, SketchUp, V-Ray, Lumion и др.) и обладают навыками, чтобы передать все детали и атмосферу.

Качественная визуализация поможет вам точно представить будущий интерьер, внести необходимые изменения и успешно реализовать дизайн-проект.

Итог:

3D-визуализация квартиры - важный этап в реализации современного интерьера. Она помогает увидеть, протестировать и улучшить дизайн до начала ремонта, сделать процесс более контролируемым и предсказуемым. Инвестиции в профессиональную визуализацию оправдывают себя, делая будущий интерьер комфортным и эстетичным, а сам процесс - максимально приятным и понятным.

Если вы хотите воплотить в жизнь идеальную квартиру, закажите профессиональную 3D-визуализацию и убедитесь в её преимуществах!

Инструменты: 3ds Max, Corona Render, Adobe Photoshop
Визуализатор: Татьяна Тюрина

Контакты:

Телеграм: @tati_fx
Сайт: tatityur.tb.ru