Найти в Дзене

Почему планировка — это важнее, чем кажется?

В Black Module мы уделяем особое внимание планировкам. Это не просто схема с квадратами комнат — это сценарий вашей будущей жизни в доме. Эргономика на первом месте Мы анализируем, как человек будет двигаться внутри дома: от входа до кухни, от спальни до ванной. Нет случайных или “проходных” зон — каждый метр работает на ваш комфорт. Каждая деталь продумана Мы тщательно рассчитываем размеры помещений, чтобы в доме было комфортно и просторно. Продумываем размещение мебели, розеток, освещения, техники — всё вплоть до мелочей. Наша цель — чтобы вам было удобно готовить, отдыхать, работать, хранить вещи и принимать гостей. ✍️ Хотите изменить проект под себя? Мы открыты к доработкам — но только до начала производства. После утверждения проект фиксируется. 📍 Именно продуманная планировка делает дом по-настоящему удобным — и в повседневности, и в мелочах. Звоните, наш менеджер ответит на любые вопросы: +7 (921) 344-72-01

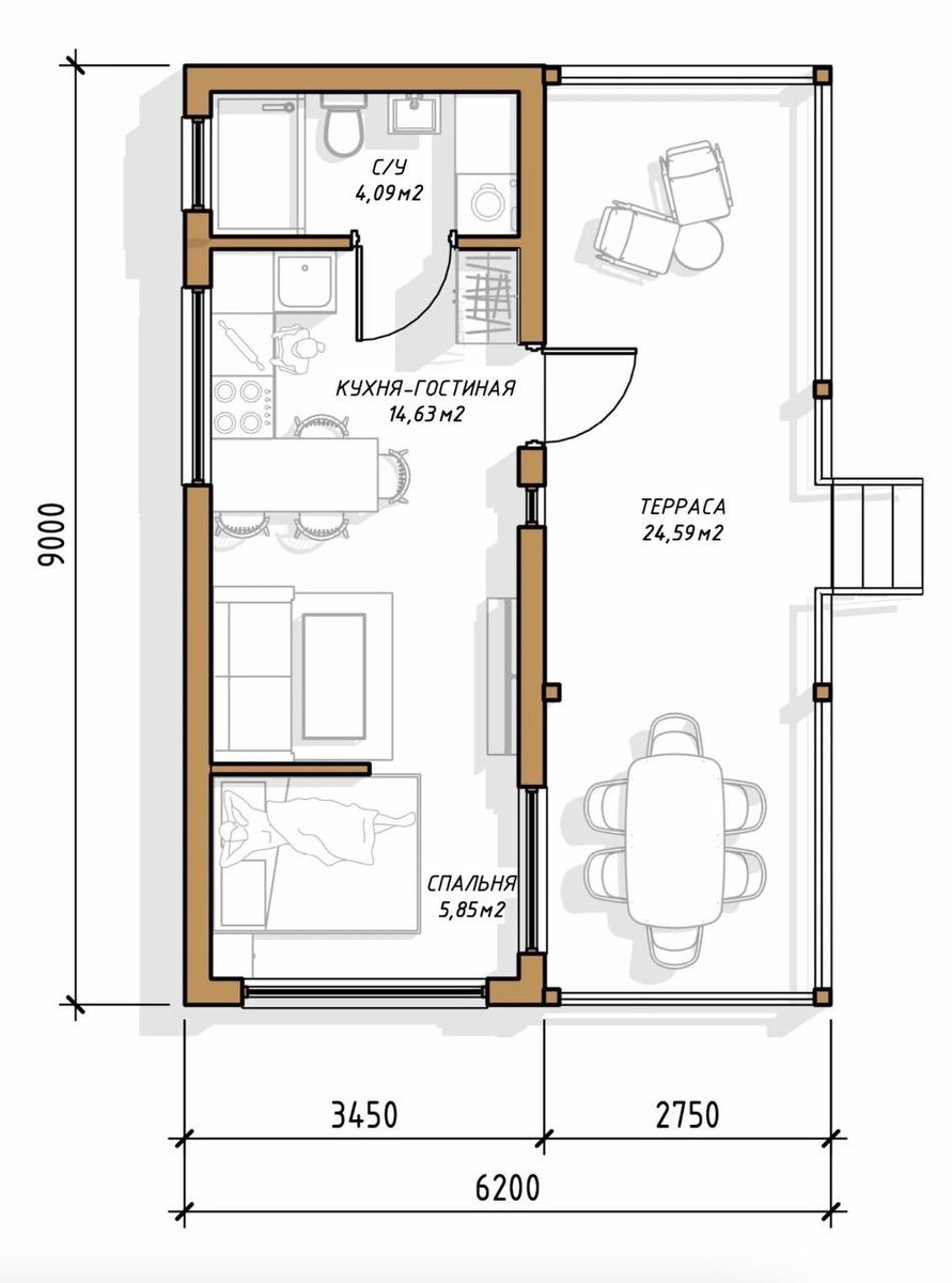
В Black Module мы уделяем особое внимание планировкам. Это не просто схема с квадратами комнат — это сценарий вашей будущей жизни в доме.

Эргономика на первом месте

Мы анализируем, как человек будет двигаться внутри дома: от входа до кухни, от спальни до ванной. Нет случайных или “проходных” зон — каждый метр работает на ваш комфорт.

Каждая деталь продумана

Мы тщательно рассчитываем размеры помещений, чтобы в доме было комфортно и просторно. Продумываем размещение мебели, розеток, освещения, техники — всё вплоть до мелочей. Наша цель — чтобы вам было удобно готовить, отдыхать, работать, хранить вещи и принимать гостей.

✍️ Хотите изменить проект под себя? Мы открыты к доработкам — но только до начала производства. После утверждения проект фиксируется.

-2

📍 Именно продуманная планировка делает дом по-настоящему удобным — и в повседневности, и в мелочах.

Звоните, наш менеджер ответит на любые вопросы: +7 (921) 344-72-01