Добавить в корзинуПозвонить
Найти в Дзене
Строим с ЭДом

Проект FH-147FMS FullMaster Sana (147,5м²)

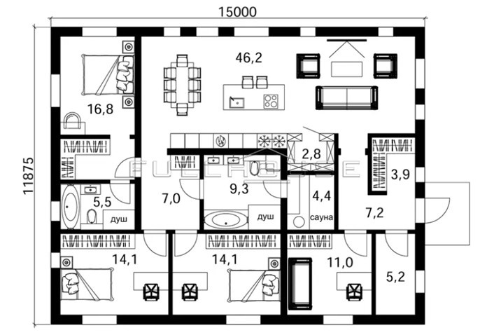
Комфортабельность загородного дома зависит от его планировки и архитектуры, которые хоть и ориентированы на разумную экономию, всё же повышают уровень бытового удобства в повседневной жизни. При правильно распланированном пространстве одноэтажный дом 147 м2, как в проекте FullMaster Sana, гораздо комфортнее двухэтажки площадью 200 м2 с теми же четырьмя спальнями. Современная норма комфортного жилья на взрослого человека составляет 30 м2 (на ребёнка вдвое меньше) – соответственно, для семьи с тремя детьми 147 м2 более чем достаточно. В хорошем проекте под жилые комнаты (в том числе гостиную) отводится не менее 70% от общей площади, а доля транзитных зон должна составлять не более 10%. Остальное отводится под вспомогательные помещения, ведь именно они и обеспечивают жильцам бытовой комфорт. В проекте FullMaster Sana хозяйская спальня оснащена индивидуальной гардеробной и ванной, а в санузле общего пользования имеется сауна. Два санузла в частном доме – это вовсе не роскошь, а необходимо

Комфортабельность загородного дома зависит от его планировки и архитектуры, которые хоть и ориентированы на разумную экономию, всё же повышают уровень бытового удобства в повседневной жизни. При правильно распланированном пространстве одноэтажный дом 147 м2, как в проекте FullMaster Sana, гораздо комфортнее двухэтажки площадью 200 м2 с теми же четырьмя спальнями.

Современная норма комфортного жилья на взрослого человека составляет 30 м2 (на ребёнка вдвое меньше) – соответственно, для семьи с тремя детьми 147 м2 более чем достаточно. В хорошем проекте под жилые комнаты (в том числе гостиную) отводится не менее 70% от общей площади, а доля транзитных зон должна составлять не более 10%. Остальное отводится под вспомогательные помещения, ведь именно они и обеспечивают жильцам бытовой комфорт.

В проекте FullMaster Sana хозяйская спальня оснащена индивидуальной гардеробной и ванной, а в санузле общего пользования имеется сауна. Два санузла в частном доме – это вовсе не роскошь, а необходимость, особенно ощущающаяся, когда в доме гости. В предлагаемой планировке есть ещё гардеробная на входе, техническое помещение и кладовая, так что вопрос хранения верхней одежды, уборочного инвентаря и кухонных припасов не потребует сложных решений.

В доме с повышенной комфортностью наличие гардеробной комнаты при входе в дом обязательно – пусть даже не полноценной, а в виде алькова со шкафами. Отдельная зона для верхней одежды (в проекте её площадь составляет 3,9 м2) позволяет поставить пуф для переобувания, навесить консоль с зеркалом, перед которым удобно причесаться или надеть головной убор.

Для удобства любой семьи очень важно наличие постирочной – места, где можно не только установить стиральную машину и сушилку, но и погладить бельё, не таская гладильную доску из комнаты в комнату. Если нет отдельного помещения под мини-прачечную, её в качестве дополнительной функциональной зоны устраивают в котельной. В проекте FullMaster Sana при кухне предусмотрена кладовка - при необходимости (если оборудования много и места в котельной не остаётся) постирочную можно оборудовать там.

Без чего невозможно обойтись в загородном доме, так это без террасы, ведь именно она позволяет организовать полноценный отдых на свежем воздухе даже в плохую погоду. Чтобы её устройство не слишком увеличивало затраты, террасу строят не в капитальном варианте, а выполняют в виде модульной пристройки. При этом она может быть открытой, крытой или полностью остеклённой.

Специально для домов серии FH разработан проект универсальных пристроек Unit, в котором кроме террасы есть чертежи для автонавеса и двух видов хозблоков. Пятым модулем является крыльцо, но в данном случае оно изначально предусмотрено проектом, и имеет общую с домом крышу. Пристройки можно присоединить к дому и после строительства, но проект для них приобретается вместе с основным проектом, чтобы заранее подобрать оптимальный вариант компоновки.

При покупке проектов с нами можно заключить договор на строительство дома. В комплектации «коробка» оно ведётся без инженерных и отделочных работ, но работы по проектированию участка выполняются. Мы разрабатываем генплан и другие планы, на основе которых проект привязывается к местности, размещается дом с пристройками, коммуникационные сооружения и трассы внешних трубопроводов, производится вертикальная планировка грунта.

Строится дом из газобетона D500 автоклавного твердения, хотя при желании можно использовать и тёплый керамический камень. С учётом теплопроводности этих материалов, в климате Московской области стены могут иметь толщину 375/380 мм безо всякого утепления. Так как фасад облицовывается кирпичом, общая толщина стен с вентзазором для газоблочного дома составит 545 мм. Керамоблок обладает примерно такой же паропроницаемостью, как и пустотелый лицевой кирпич и облицовывается без отступа, поэтому толщина стены составит 500 мм.

Облегчённые каменные материалы отлично работают на сжатие, но чутко реагируют на изгиб, поэтому им нужен жёсткий фундамент. Благодаря большой площади опоры, лучше всего изгибу сопротивляется плита, и по этой же причине может формироваться без заглубления в грунт. Это даёт хорошую экономию на земляных и опалубочных работах, но основная выгода такой конструкции заключается в двойной функциональности. Плита фундамента является и черновым полом, а монолитный цоколь выполняет функции рёбер жёсткости и обеспечивает коробке дома отменную статичность.