Найти в Дзене

Квартиры-студии в новостройках: удобство и функциональность на небольшом пространстве

В 2018 году в мире насчитывалось 28% домохозяйств, состоящих из одного человека. К середине века, как ожидается, их число достигнет 35%. В таких городах, как Стокгольм и Лондон, больше половины домохозяйств состоят из одиночек. Важно понимать, что жить в одиночестве и чувствовать себя одиноким — не одно и то же. Многие из этих людей имеют поддержку семьи и друзей. Просто более высокие доходы и изменение образа жизни позволяют им быть более независимыми. Россия в этом смысле не исключение: по данным последней переписи населения, одиночки составляют 41,8% домохозяйств. За 20 лет этот показатель увеличился вдвое. Меняется и представление одиночек об идеальном жилище. Им уже не требуется огромная квартира, которую придётся долго обставлять мебелью. Чем меньше вещей — тем больше света и простора, и тем выше мобильность. Квартира может быть небольшой, но при этом она должна быть уютной и функциональной. Этому запросу отвечает студия: компактная квартира, рассчитанная на проживание одного-дву
Оглавление

В 2018 году в мире насчитывалось 28% домохозяйств, состоящих из одного человека. К середине века, как ожидается, их число достигнет 35%.

В таких городах, как Стокгольм и Лондон, больше половины домохозяйств состоят из одиночек. Важно понимать, что жить в одиночестве и чувствовать себя одиноким — не одно и то же. Многие из этих людей имеют поддержку семьи и друзей. Просто более высокие доходы и изменение образа жизни позволяют им быть более независимыми.

Россия в этом смысле не исключение: по данным последней переписи населения, одиночки составляют 41,8% домохозяйств. За 20 лет этот показатель увеличился вдвое.

Меняется и представление одиночек об идеальном жилище. Им уже не требуется огромная квартира, которую придётся долго обставлять мебелью. Чем меньше вещей — тем больше света и простора, и тем выше мобильность. Квартира может быть небольшой, но при этом она должна быть уютной и функциональной.

Этому запросу отвечает студия: компактная квартира, рассчитанная на проживание одного-двух человек. Главная особенность студии — это кухня, спальня и гостиная, объединённая в общее пространство.

Понять, какие проекты действительно ориентируются на новые привычки горожан и растущий спрос на компактные форматы, помогает страница с застройщиками. Здесь видно, как работают разные девелоперы: кто предлагает продуманные планировки, а кто по-прежнему делает ставку на типовые решения. Сравнивая готовые новостройки от застройщика, легко заметить, что именно крупные компании первыми внедряют более функциональные студии, лаконичные кухни и гибкие жилые пространства, которые особенно ценят одиночки и молодые пары. На платформе удобно посмотреть, как меняются подходы, кто входит в топ девелоперов Москвы, и какие решения они предлагают в новых проектах. Такой список девелоперов Москвы помогает заранее понять, насколько выбранный ЖК отвечает современным жизненным сценариям, а не просто модным визуализациям.

Популярность студий растёт

Квартира-студия остаётся в числе самых привлекательных вариантов — как для покупателей, так и для инвесторов. Благодаря относительно низкой цене они всегда востребованы на рынке. Спрос подстёгивает и рост числа одиночек, о котором было сказано в начале статьи.

Современным молодым горожанам от квартиры нужно немного: место, где можно отдохнуть или спокойно поработать. Они используют минимум вещей и предпочитают трансформирующуюся мебель. Даже готовить еду сегодня нет необходимости — отлично работает доставка. Поэтому нет нужды и в большой кухне с бесчисленными кастрюлями и сковородками.

Живя в однокомнатной квартире площадью в 40 кв. метров, человек может не ощущать простор так, как его ощущает житель 25-метровой студии. Повсюду перегородки, всё заставлено мебелью. Студия же дарит чувство открытого пространства. Свет проникает повсюду, не наталкиваясь на препятствие — никаких тёмных углов.

-2

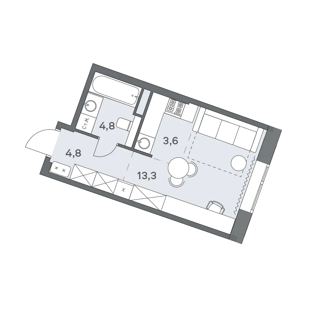
Взгляните, например, на студию в жилом комплексе «Родина Переделкино». На площади в 27 кв. метров там удобно разместились ванная комната в 4,8 кв. метра и такого же размера прихожая с гардеробной. Кухонная зона составляет 3,6 кв. метра, а на жилую комнату приходится 13,8 кв. метра. Большое окно даёт много солнечного света.

Квартиры-студии: плюсы и минусы

Будем объективны: у такого формата жилья есть свои преимущества и недостатки. Как, впрочем, и у любого другого. Человек, который собирается купить студию, просто должен решить, какие характеристики для него в приоритете.

Сначала поговорим о привлекательной стороне студий. Выделим главные плюсы такой недвижимости:

  1. Гибкость в организации пространства — нет мешающих перегородок.
  2. Меньше времени тратится на уборку.
  3. Стоимость коммунальных услуг ниже.
  4. Не требуется много мебели.

Когда человек живёт в студии, он вольно или невольно приучается не копить ненужные вещи и проникается философией разумного потребления.

Люди постарше хорошо помнят стопки тарелок в серванте и фаянсовые сервизы — символ достатка советской эпохи. Сегодня это никому не нужно. Необходим лишь самый минимум вещей, который сделает жизнь комфортной. Ценятся минимализм и экологичность.

Теперь — о том, что является минусом квартиры-студии:

  1. Отсутствие приватности.
  2. Запахи и влажность от кухни.
  3. Ограниченное пространство для хранения.

На самом деле, все эти недостатки считаются таковыми лишь условно. К примеру, если человек живёт один, то ему не нужна приватность. Запахи и сырость устраняются наличием вытяжки. Даже в мусорном ведре нет необходимости, если установить измельчитель пищевых отходов.

Что касается последнего пункта, то этот вопрос тоже легко решается благодаря современным системам хранения.

И ещё о преимуществах студии

Люди часто откладывают освежающий ремонт квартиры, потому что это слишком дорого и хлопотно.

Обновить интерьер квартиры-студии гораздо проще. Достаточно перекрасить стены, чтобы квартира стала восприниматься по-новому. А если использовать зонирование и многоуровневое освещение, то жилище полностью преобразится.

Даже минимальными средствами можно создать потрясающий дизайн квартиры-студии, который будет долго радовать хозяина.

Кухня при этом может выглядеть совсем незаметной: пара открытых полок на стене, пара шкафов внизу. Сегодня на рынке есть решения, позволяющие скрывать мойку, а для приготовления пищи достаточно небольшой варочной панели. Барная стойка вместо обеденного стола ещё больше смягчит переход между кухней и жилой зоной.

-3

Как выбрать студию

Главное, на что стоит обратить внимание — это планировка. В квартире-пенале будет очень сложно организовать пространство, а всю мебель придётся расставлять вдоль стены.

Лучше выбирать студию, по форме приближённую к квадрату — подобные тем, что представлены в жилом кластере «Родина Парк». Это квартиры площадью в 35 кв. метров; особенность в том, что в них два окна, и при желании кухню площадью в 5,3 кв. метра можно отделить перегородкой.

Если же владелец квартиры предпочитает открытые пространства, то зонирование легко организовать установкой дивана, барной стойки или кухонного острова.

Оптимальная площадь такой квартиры — 23–25 кв. метров.

Обратите внимание. что на вторичном рынке иногда встречаются «квазистудии»: большие квартиры, разделённые на несколько маленьких. Покупая такую псевдостудию, вы приобретаете не квартиру, а долю в ней.

Самая дешёвая квартира-студия в Москве сегодня обойдётся покупателю в 4,5 млн рублей — это Новомосковский административный округ. В центре столицы самые дорогие предложения — студия в Москва-сити (105 млн. рублей) и студия в районе Фили-Давыдково за 36 миллионов. Так что востребован такой формат жилья далеко не только в бюджетном сегменте.

А что вы думаете о студиях? Хотели бы приобрести себе такую квартиру? Поделитесь мнением в комментариях.