Найти в Дзене

Проекты одноэтажных домов из газобетона

Наша компания строит дома с 2017 года. И в последние пару лет мы часто получали запросы от заказчиков на строительство домов именно в один этаж. И именно из газобетона. Посмотрите на самые популярные проекты, разработанные нашими экспертами. Вас порадует удобная планировка. Наши архитекторы и проектировщики учли все жизненно необходимые помещений, включая:
- просторную кухню,
- ванную комнату
- и гостиную.
Это делает проект дома лучшим выбором для тех, кто ищет оптимальное соотношение цены и качества. Посмотрите планировку и убедитесь: В проекте под строительство дома есть ключевая особенность — наличие второго света. В вашем доме всегда будет естественное освещение, которое будет визуально расширять пространство, создавая ощущение свободы и воздушности. Использование газобетона в строительстве гарантирует отличную теплоизоляцию и долгий срок службы. Это делает ваш будущий дом не только красивым, но и очень энергоэффективным.
Вы можете быть уверены — дом прослужит вам многие го
Оглавление

Наша компания строит дома с 2017 года. И в последние пару лет мы часто получали запросы от заказчиков на строительство домов именно в один этаж. И именно из газобетона. Посмотрите на самые популярные проекты, разработанные нашими экспертами.

Проект одноэтажного дома из газобетона 75 м2 со вторым светом

Вас порадует удобная планировка. Наши архитекторы и проектировщики учли все жизненно необходимые помещений, включая:

- просторную кухню,
- ванную комнату
- и гостиную.

Это делает проект дома лучшим выбором для тех, кто ищет оптимальное соотношение цены и качества. Посмотрите планировку и убедитесь:

-2
В проекте под строительство дома есть ключевая особенность — наличие второго света. В вашем доме всегда будет естественное освещение, которое будет визуально расширять пространство, создавая ощущение свободы и воздушности.
-3

Использование газобетона в строительстве гарантирует отличную теплоизоляцию и долгий срок службы. Это делает ваш будущий дом не только красивым, но и очень энергоэффективным.

Вы можете быть уверены — дом прослужит вам многие годы, радуя своими
высокими эксплуатационными характеристиками и современным дизайном.

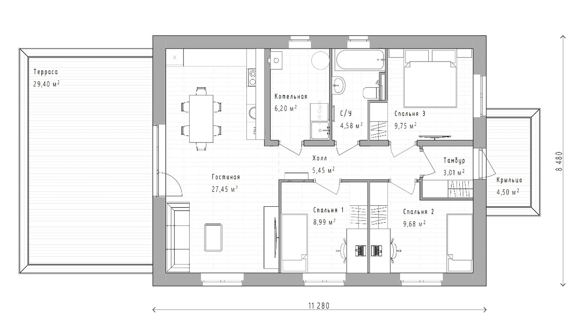
Проект одноэтажного дома из газобетона 110 м2 с панорамным остеклением террасы

Основное преимущество данного проекта частного дома — это просторная терраса с панорамным остеклением, которая позволяет наслаждаться прекрасными видами и природным освещением в любое время года.

Дом из газобетона гарантирует отличные теплоизоляционные свойства и долговечность, обеспечивает комфортное проживание даже в самых суровых климатических условиях.

-5

В планировке проекта строительства дома учтены все необходимые помещения для комфортной жизни:

- просторная гостиная-столовая для совместных обедов семьей или компанией друзей,
- три изолированных комнаты-спальни,
- кухня,
- отдельные кладовая и гардеробная,
- и современные санузлы.

Вы оцените удобную одноэтажную планировку без лишних лестниц: не придется носить вещи с этажа на этаж и дети всегда будут в безопасности.

Проект одноэтажного дома из газобетона 221 м2 с холодной террасой и гаражом

Перед вами — просторное жилое пространство площадью 221 м2, разделенное на функциональные зоны:

- три изолированные спальни,
- кухня рядом с гостиной для совместных семейных обедов и праздничных застолий,
- три санузла, чтобы домочадцы не стояли в очереди по утрам,
- гардеробная,
- кладовая,
- постирочная.

-7
Большая семья оценит количество помещений и планировку дома — любому члену семьи здесь будет комфортно. У каждого будет свой излюбленный уголок.


В проекте под строительство дома предусмотрена
закрытая холодная терраса с выходом на крыльцо. 

В теплое время года вы можете чаще проводить время на свежем воздухе:
принимать пищу, играть с детьми, заниматься любимыми делами. 

Обратите внимание, из кухни можно легко попасть на террасу. Для того, чтобы, например, вынести блюда для гостей.

-8

В нашем проекте одноэтажного дома есть гараж, в котором вы сможете безопасно хранить свой автомобиль. Может, даже не один.

Проект дома из газобетона обеспечивает отличную тепло- и звукоизоляцию. Вам не придется много платить за отопление, в доме всегда будет комфортная температура. 

Добавим, что газобетон является экологически чистым материалом, 
не содержащим вредных веществ. Это большой плюс для тех, кто заботится о здоровье всей семьи.

Какой проект вам понравился? Пишите своё мнение! И смело задавайте вопросы в комментариях.