Найти в Дзене
ДОМ ДЛЯ СЕМЬИ

🔥В ПРОДАЖЕ

🔥В ПРОДАЖЕ! 🏡Новый коттедж в центре станицы Новотитаровской. 📍Так, в 400 метрах — общеобразовательная школа № 34, детский сад № 59, в трех минутах ходьбы — супермаркет «Магнит», мясной магазин. ❗️Подъездные пути — полностью асфальтированная дорога. ◾️Планировка дома общей площадью 115 кв.м: крыльцо, просторный холл 13,22 кв.м, три изолированных спальни, кухня-гостиная 28,7 кв.м с выходом на крытую террасу и задний двор, совмещенный санузел 6,7 кв.м, котельная 6,3 кв.м. ◾️Коттедж — в предчистовой отделке. 🌳Участок 5 соток земли, назначения ИЖС. 💧Коммуникации: вода — централизованное водоснабжение, канализация — септик 9 куб.м, электричество 15 кВт, газ. ❗️Коттедж готов. ❗️Любая льготная ипотека. 🖊Если остались вопросы, пишите в комментарии Либо позвоните ☎️ +7 (960) 498-47-95 #Льготнаяипотека #домЕА #куплюдомвкраснодаре #новыекоттеджи #переездвкраснодар #новотитаровская #домдлясемьи #домсгазом

🔥В ПРОДАЖЕ!

🏡Новый коттедж в центре станицы Новотитаровской.

📍Так, в 400 метрах — общеобразовательная школа № 34, детский сад № 59, в трех минутах ходьбы — супермаркет «Магнит», мясной магазин.

❗️Подъездные пути — полностью асфальтированная дорога.

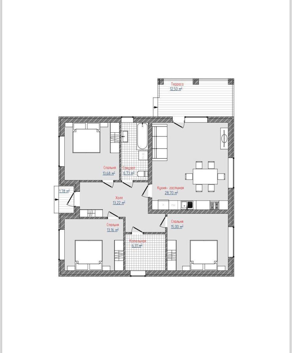
◾️Планировка дома общей площадью 115 кв.м: крыльцо, просторный холл 13,22 кв.м, три изолированных спальни, кухня-гостиная 28,7 кв.м с выходом на крытую террасу и задний двор, совмещенный санузел 6,7 кв.м, котельная 6,3 кв.м.

◾️Коттедж — в предчистовой отделке.

🌳Участок 5 соток земли, назначения ИЖС.

💧Коммуникации: вода — централизованное водоснабжение, канализация — септик 9 куб.м, электричество 15 кВт, газ.

❗️Коттедж готов.

❗️Любая льготная ипотека.

🖊Если остались вопросы, пишите в комментарии

Либо позвоните

☎️ +7 (960) 498-47-95

#Льготнаяипотека

#домЕА

#куплюдомвкраснодаре

#новыекоттеджи

#переездвкраснодар

#новотитаровская

#домдлясемьи

#домсгазом

-2
-3
-4
-5
-6