Найти в Дзене

🏠 Эргономика дома: как жить удобно и без боли

Эргономика — это наука о создании комфортной и безопасной среды для человека. В дизайне интерьеров и организации рабочего пространства она играет роль фундамента: незаметного, но критически важного. Давайте разберемся, почему соблюдение ее норм — не прихоть, а необходимость, и где допустима гибкость. Знаете, почему после готовки болит спина, а утро начинается с «ой, неудобная кровать»? Потому что многие интерьеры красивые, но неудобные. Давайте исправлять! 🔹 Кухня — ваш «ресторан» ✔️ Правило треугольника: плита-мойка-холодильник должны быть близко, но не мешать друг другу. ✔️ Столешница: на 10 см ниже локтя (обычно 85-95 см). Слишком высоко/низко — здравствуй, боль в спине! ✔️ Хранение: частое — на уровне глаз, редко нужное — выше/ниже. Можно сэкономить: не обязательно покупать супердорогую технику, если базовые вещи на своих местах. 🔹 Гостиная — зона комфорта ✔️ Диван: ▫️ Глубина сидения: 60-70 см — чтобы спина касалась спинки, а колени не упирались в край. ▫️ Высота сиденья: 40-45

Эргономика — это наука о создании комфортной и безопасной среды для человека. В дизайне интерьеров и организации рабочего пространства она играет роль фундамента: незаметного, но критически важного. Давайте разберемся, почему соблюдение ее норм — не прихоть, а необходимость, и где допустима гибкость.

Знаете, почему после готовки болит спина, а утро начинается с «ой, неудобная кровать»? Потому что многие интерьеры красивые, но неудобные. Давайте исправлять!

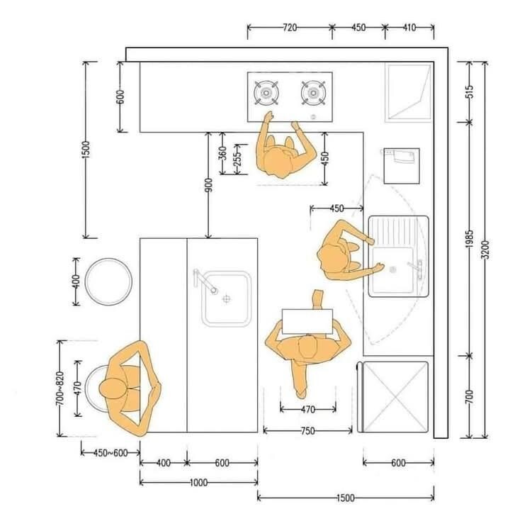
🔹 Кухня — ваш «ресторан»

✔️ Правило треугольника: плита-мойка-холодильник должны быть близко, но не мешать друг другу.

✔️ Столешница: на 10 см ниже локтя (обычно 85-95 см). Слишком высоко/низко — здравствуй, боль в спине!

✔️ Хранение: частое — на уровне глаз, редко нужное — выше/ниже.

Можно сэкономить: не обязательно покупать супердорогую технику, если базовые вещи на своих местах.

🔹 Гостиная — зона комфорта

✔️ Диван:

▫️ Глубина сидения: 60-70 см — чтобы спина касалась спинки, а колени не упирались в край.

▫️ Высота сиденья: 40-45 см от пола — тогда ноги стоят на полу под углом 90°.

▫️ Спинка: минимум 50 см — иначе шея останется без поддержки.

✔️ Телевизор: центр экрана — на уровне глаз сидящего (90-120 см от пола). Слишком высоко/низко = боль в шее!

✔️ Расстояние до ТВ: 3 диагонали экрана. Слишком близко — болят глаза, далеко — напрягается шея.

✔️ Проходы: минимум 60 см, чтобы не прыгать между мебелью.

Можно сэкономить: диван «как у блогера» может быть неудобным. Лучше протестируйте перед покупкой!

-2

🔹 Спальня — место силы

✔️ Кровать: сидя на краю, стопы должны касаться пола (высота ~50 см).

✔️ Розетки: 70-80 см от пола — не надо ползать за зарядкой!

Можно сэкономить: матрас важнее «дизайнерского» изголовья. Выбирайте ортопедический, даже если простой внешне.

-3

🔹 Ванная — безопасность прежде всего

✔️ Пол: только противоскользящий (коврик или рельефная плитка).

✔️ Раковина: 80-85 см от пола — не наклоняться лишний раз.

✔️ Душевая лейка: оптимальная высота — 200-220 см. Лучше выбрать регулируемую, чтобы подходила всем в семье!

Можно сэкономить: смеситель с термостатом полезнее «модного» дизайнерского.

-4

💡 Зачем это все?

Эргономика = меньше усталости, больше продуктивности и никаких болей в спине.

👩🎨 Дизайнер интерьеров — это человек, который:

▫️ Продумает за вас каждую деталь: от высоты столешницы до расположения розеток.

▫️ Избавит от ошибок, стресса и ненужных трат.

▫️ Создаст дом, где всё работает на ваше здоровье и комфорт.

💬 Просто представьте: вы приходите в готовый дом, где удобно абсолютно всё. Хотите так?

Запишитесь на предварительную консультацию в личных сообщениях или на сайте: Design-masters.ru

#эргономика #удобныйдом #дизайн #ремонт_без_стресса