Добавить в корзинуПозвонить
Найти в Дзене
GREY HOUSE

Строительство каркасного энергоэффективного дома Химос

Строительство каркасного дома по проекту «Химос» началось в коттеджном посёлке «Черешневый лес» Компания Grey House приступила к возведению современного каркасного дома в живописном коттеджном посёлке «Черешневый лес», расположенном в Чеховском районе Московской области. Проект «Химос» с тремя спальнями сочетает в себе продуманную планировку, энергоэффективные технологии и высококачественные материалы. Размеры здания составляют 15,5×10,2 м, что позволяет разместить все необходимые помещения для комфортного проживания семьи: - Просторная кухня-гостиная – объединённое пространство для приготовления пищи, семейных обедов и приёма гостей. - Три отдельные спальни – каждая с оптимальным метражом для размещения кроватей и гардеробных систем. - Санузел, прихожая и тамбур – функциональные зоны, обеспечивающие удобство повседневного использования. - Техническое помещение и кладовая – дополнительные пространства для хранения и размещения инженерного оборудования. - Терраса площадью 25 м² – идеаль
Оглавление

Строительство каркасного дома по проекту «Химос» началось в коттеджном посёлке «Черешневый лес»

Компания Grey House приступила к возведению современного каркасного дома в живописном коттеджном посёлке «Черешневый лес», расположенном в Чеховском районе Московской области. Проект «Химос» с тремя спальнями сочетает в себе продуманную планировку, энергоэффективные технологии и высококачественные материалы.

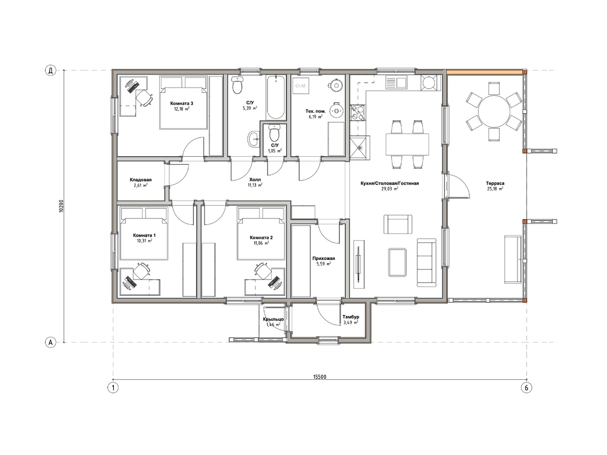
Планировка и площадь дома

-2

Размеры здания составляют 15,5×10,2 м, что позволяет разместить все необходимые помещения для комфортного проживания семьи:

- Просторная кухня-гостиная – объединённое пространство для приготовления пищи, семейных обедов и приёма гостей.

- Три отдельные спальни – каждая с оптимальным метражом для размещения кроватей и гардеробных систем.

- Санузел, прихожая и тамбур – функциональные зоны, обеспечивающие удобство повседневного использования.

- Техническое помещение и кладовая – дополнительные пространства для хранения и размещения инженерного оборудования.

- Терраса площадью 25 м² – идеальное место для отдыха на свежем воздухе в тёплое время года.

Фотоотчет с объекта

Монтаж фундамента
Монтаж фундамента
Монтаж чернового пола
Монтаж чернового пола
Монтаж защитной сетки от грызунов
Монтаж защитной сетки от грызунов
Монтаж нулевого перекрытия
Монтаж нулевого перекрытия
Строительство каркаса дома
Строительство каркаса дома
Строительство каркаса дома
Строительство каркаса дома
Строительство каркаса дома
Строительство каркаса дома
Строительство каркаса дома
Строительство каркаса дома
Монтаж стропильной системы
Монтаж стропильной системы
Монтаж стропильной системы
Монтаж стропильной системы
Монтаж стропильной системы
Монтаж стропильной системы
Монтаж стропильной системы
Монтаж стропильной системы
Монтаж ветрозащитной мембраны
Монтаж ветрозащитной мембраны
Монтаж направляющих для крепления фасада
Монтаж направляющих для крепления фасада
Монтаж фасада из скандинавской доски с заводской покраской
Монтаж фасада из скандинавской доски с заводской покраской
Монтаж кровли и снегозадержателей
Монтаж кровли и снегозадержателей

Подшивка свесов кровли и монтаж водосточной системы
Подшивка свесов кровли и монтаж водосточной системы
Утепление дома
Утепление дома
Монтаж пароизоляции с проклейкой швов скотчем
Монтаж пароизоляции с проклейкой швов скотчем
Разводка электрики
Разводка электрики
Сборка щитка
Сборка щитка
Монтаж труб теплого пола
Монтаж труб теплого пола
Монтаж лестницы
Монтаж лестницы
Монтаж стяжки
Монтаж стяжки
Теплый пол готов
Теплый пол готов
Монтаж цоколя
Монтаж цоколя
Монтаж внутренней отделки
Монтаж внутренней отделки
Монтаж внутренней отделки
Монтаж внутренней отделки

Бригада готовит к сдаче дом. Приглашаем на финальный просмотр дома 5 июля. Запись на просмотр обязательна! Телефон: 8 (495) 504-71-33 / WhatsApp: 8 (909) 622-35-22

Ключевые особенности строительства и комплектации

Дом возводится с применением современных технологий и проверенных материалов, обеспечивающих долговечность и энергоэффективность:

1. Фундамент и основание

- Свайно-бетонный фундамент (сваи 150×150×3000 мм).

- Обвязка из бруса 150×150 мм.

- Защита от грызунов с помощью оцинкованной сетки 10×10 мм.

2. Каркас и утепление

- Несущий каркас из строганого бруса камерной сушки (35×195 мм).

- Утепление:

- Пол и кровля – 200 мм (Технониколь Роклайт).

- Наружные стены – 150 мм.

- Внутренние перегородки – 100 мм.

- Паро- и ветрозащита: Jutavek 115, Ютафол H110 с армированным скотчем Delta.

3. Кровля и фасад

- Покрытие кровли – металлочерепица толщиной 0,45 мм.

- Фасадная отделка – скандинавская доска с заводской покраской.

- Подшивка свесов и ветровая доска в едином стиле.

4. Окна и двери

- Энергоэффективные окна Rehau (70 мм) с двойным стеклопакетом и мультифункциональным стеклом.

- Фурнитура Roto для долговечной эксплуатации.

5. Инженерные системы

- Отопление: водяной тёплый пол (трубы из сшитого полиэтилена с шагом 150 мм) + электрокотёл «Теплотех ЭВП-12».

- Электрика: разводка на 80 точек, скрытый монтаж кабеля ВВГнг в ПВХ-гофре, щиток с автоматами ABB/Legrand.

- Водоснабжение и канализация: полипропиленовые трубы ГВС/ХВС, разводка канализационных труб по точкам.

6. Внутренняя отделка

- Стены – имитация бруса (16 мм).

- Потолок – евровагонка (12,5 мм).

- Пол – OSB-плиты (22 мм) с полусухой стяжкой.

- Покрытие террасы и ступени – лиственница (28 мм).

Преимущества проекта

- Энергоэффективность – качественное утепление и современные окна снижают теплопотери.

- Продуманная планировка – оптимальное зонирование для комфортного проживания.

- Долговечные материалы – использование сухого строганого бруса, металлочерепицы и устойчивых к влаге пород дерева.

- Готовые инженерные решения – тёплый пол, продуманная электрика и водоотведение.

Как заказать аналогичный проект?

Компания Grey House специализируется на строительстве каркасных домов в Москве и Московской области. Если вас заинтересовал этот проект, вы можете:

- Узнать стоимость строительства под ключ.

- Заказать индивидуальную адаптацию планировки.

- Выбрать альтернативные варианты отделки и комплектации.

Контакты для связи:

- Телефон: 8 (495) 504-71-33

- WhatsApp: 8 (909) 622-35-22

- Подробнее о проектах: Grey House

Этот дом – отличное решение для тех, кто ценит качество, скорость строительства и комфорт загородной жизни. Следите за ходом строительства в нашем блоге!