Добавить в корзинуПозвонить
Найти в Дзене
Мы из Башкирии

Стройка 2025. Траншея под ленточный фундамент. Строительство бани с гаражом

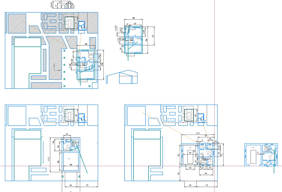
Громко сказано "стройка". В планах лишь умудриться залить ленту за текущий сезон. Цены растут. Если не начнём в этот год, то уже никогда не начнём. Сейчас, или никогда! Арматуру закупили ещё третьего января. В длину пойдут хлысты рифлёного прутка диаметром 12мм, на хомуты взяли 8мм. Проект бани с навесом под авто и с хозблоком был у меня давно, даже целую статью посвятила нашим планам. Но с приобретением второго автомобиля проект изменился кардинально. Решили вместо навеса и хозблока обустроить вместительный гараж. Зимой потратила много часов в поисках планировки, которая бы удовлетворила всю семью В конце апреля приступили к разметке. С точностью до сантиметра выставили с супругом диагонали, выдерживая все размеры от границы участка (1 метр от соседей и 5 метров от лицевой стороны). Оптимальное решение нам показалось именно таким При выставлении разметки удобно применять колышки из композитной арматуры: они гибкие и благодаря небольшому сечению легко входят в грунт, с ними удобно кор

Громко сказано "стройка". В планах лишь умудриться залить ленту за текущий сезон. Цены растут. Если не начнём в этот год, то уже никогда не начнём.

Сейчас, или никогда!

Арматуру закупили ещё третьего января. В длину пойдут хлысты рифлёного прутка диаметром 12мм, на хомуты взяли 8мм. Проект бани с навесом под авто и с хозблоком был у меня давно, даже целую статью посвятила нашим планам.

Но с приобретением второго автомобиля проект изменился кардинально. Решили вместо навеса и хозблока обустроить вместительный гараж.

Зимой потратила много часов в поисках планировки, которая бы удовлетворила всю семью
Зимой потратила много часов в поисках планировки, которая бы удовлетворила всю семью

В конце апреля приступили к разметке. С точностью до сантиметра выставили с супругом диагонали, выдерживая все размеры от границы участка (1 метр от соседей и 5 метров от лицевой стороны).

Оптимальное решение нам показалось именно таким
Оптимальное решение нам показалось именно таким

При выставлении разметки удобно применять колышки из композитной арматуры: они гибкие и благодаря небольшому сечению легко входят в грунт, с ними удобно корректировать те же самые диагонали. В майские праздники загнали экскаватор. Мои впечатления можно увидеть в коротком Ролике на Рутуб.

-3

Что касается глубины траншеи, то считается оптимальным заглубить ленту ниже уровня промерзания грунта. У нас это значение составляет 1,8м. Слишком космическим выйдет по стоимости фундамент для бани с гаражом. Другой вариант - утепление цоколя с отмосткой, на этом варианте зафиксируемся. Грунт получилось снять до плотного глиняного основания.

Высоту ленты возьмем исходя из ширины листа ЭППС (600мм), который встанет по периметру и сможет выступить не только утеплителем в дальнейшем, но и несъемной опалубкой на этапе заливки. Дно траншеи необходимо будет отсыпать песчано-гравийной подушкой, не менее 200мм, чем мы и планируем заниматься в отпуске, когда дети уедут отдыхать в лагерь.

Глубина траншеи получилась около 900мм. Участок имеет незначительный уклон, будем применять лазерный уровень, при помощи которого поймаем верхнюю грань необходимой отметки будущего фундамента, зафиксируем на колышках, натянем веревку, будем послойно выполнять отсыпку, проливать водой, трамбовать.

Далее перейдем к установке деревянной опалубки и вязке арматуры. Сейчас прикидываем, как будем выполнять гибку хомутов из прутков восьмерки.

Изнутри думаю укрыть траншею плотным полиэтиленом, чтобы молочко бетона марки М350 (пока планирую М350) не уходило в грунт. И далее закажем миксер. Я уже прикинула, нам понадобится около 15 кубов.

В теории все супер, на деле жутко страшно, аж коленки трясутся. Хотя у меня подобный опыт строительства уже был. Мы с родителями уже возвели три огромных фундамента в 2012-2014 годах. Сложно, но можно.

Сейчас мы находимся на таком этапе, когда важен любой совет, буду очень признательна, если у Вас будет возможность поделиться опытом в комментариях ❤

История о нашем приобретении дома и первых этапах по порядку:

Свой дом. Часть 1. Переезд, первые дни

Свой дом. Часть 2. Установка забора

Свой дом. Часть 3. Подключение газа

Свой дом. Часть 4. Переделка после застройщика. Терраса.

Свой дом. Часть 5. Лицевая часть забора

Свой дом. Часть 6. Навес во входной группе

Свой дом. Часть 7. Ворота и продолжение бетонных работ

Свой дом. Часть 8. Остекление веранды

Свой дом. Часть 9. Первая перестановка

Свой дом. Часть 10. Планировка. Продолжение работ

Свой дом. Часть 11. Стратегический пункт на участке

Свой дом. Часть 12. Работы по благоустройству

Свой дом. Часть 13. Бетонируем дорожки, строим крыльцо.

Ищите нас на РУТУБ