Найти в Дзене
Прораб Бывалый

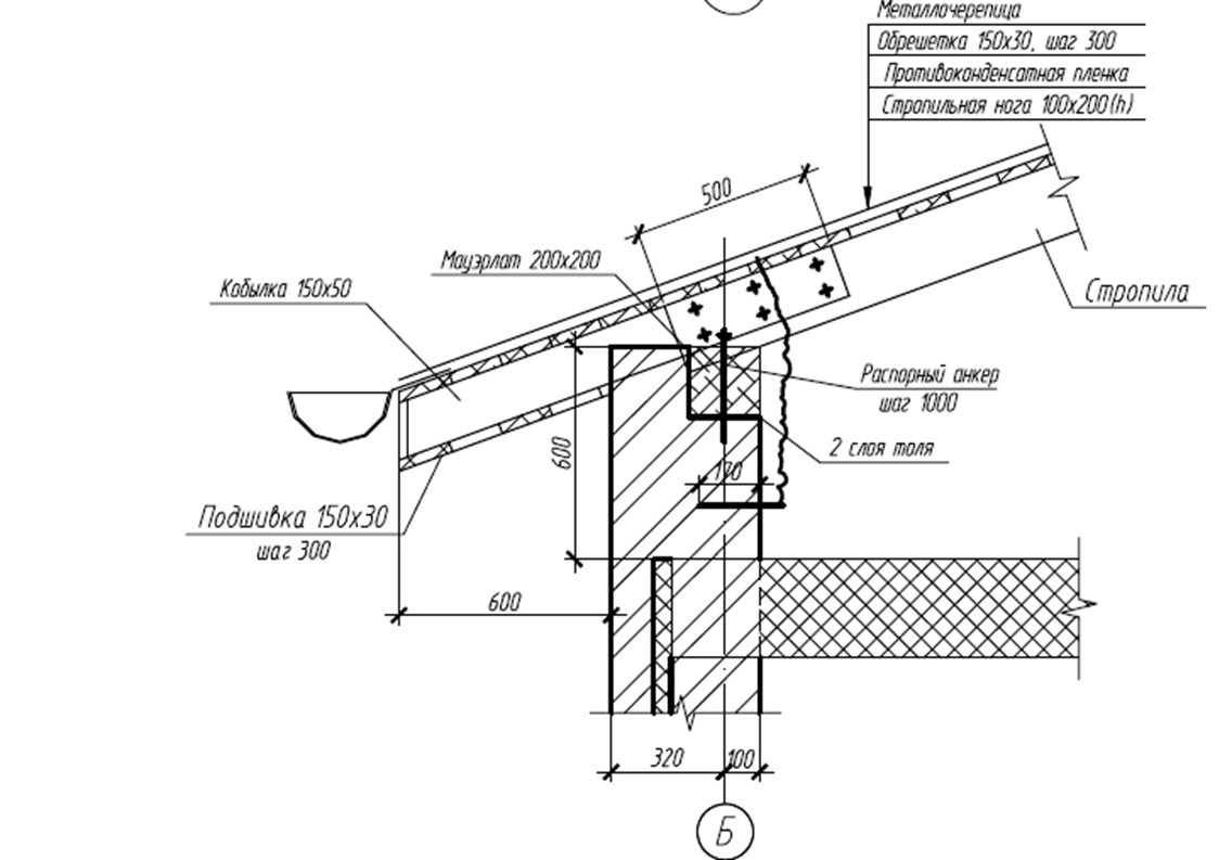
Что такое мауэрлат

Мауэрлат является основой крыши. Думаю, тут со мной никто не будет спорить. Потому что именно на этот брус опираются стропила. Сразу скажу про очень распространённую ошибку. Я неоднократно видел, что стропилу кладут сверху на мауэрлат. Забивают гвоздями и затягивают металлическими хомутами. Это серьёзное нарушение. Почему? Потому что в России зимы бывают снежные. По нормам Башкирии допускается появление сугробов на крыше высотой до двух метров. Весной, начиная таять, снег тяжелеет. Если скопление снега будет на середине ската, то стропила может прогнуться. В месте крепления стропила к мауэрлату может произойти выдергивание гвоздей и разрыв хомута и если не будет упора, то стропила может начать скольжение вниз под давлением снега. Крыша разъезжается и схлопывается. Конечно, я сейчас описал самый катастрофичный вариант. Но здесь лучше не рисковать. Как мне часто говорил представитель технадзора старой советской школы, когда я работал на строительстве коттеджей в Подмосковье, такого сн

Мауэрлат является основой крыши. Думаю, тут со мной никто не будет спорить. Потому что именно на этот брус опираются стропила.

Сразу скажу про очень распространённую ошибку. Я неоднократно видел, что стропилу кладут сверху на мауэрлат. Забивают гвоздями и затягивают металлическими хомутами. Это серьёзное нарушение. Почему?

Потому что в России зимы бывают снежные. По нормам Башкирии допускается появление сугробов на крыше высотой до двух метров. Весной, начиная таять, снег тяжелеет. Если скопление снега будет на середине ската, то стропила может прогнуться. В месте крепления стропила к мауэрлату может произойти выдергивание гвоздей и разрыв хомута и если не будет упора, то стропила может начать скольжение вниз под давлением снега. Крыша разъезжается и схлопывается. Конечно, я сейчас описал самый катастрофичный вариант. Но здесь лучше не рисковать. Как мне часто говорил представитель технадзора старой советской школы, когда я работал на строительстве коттеджей в Подмосковье, такого снега может не выпадать десять лет, а на одиннадцатый выпадет и будет плохо.

Поэтому не стоит ориентироваться на предыдущие десять зим, загляните дальше.

Возвращаясь к мауэрлату, хочу сказать, что считаю оптимальным использование для него бруса толщиной двадцать сантиметров. И по показателям нагрузки и по причине случая возможного пропила в мауэрлате что бы немного утопить стропила в нём и при этом не ослабить место крепления.

Крепить мауэрлат к стене лучше всего старым проверенным способом с помощью проволоки, выведенной из кирпичной кладки. Стропила должны обязательно опирается на мауэрлат.

Тут есть два способа с применением кобылки или без неё.

Если применяется кобылка, то стропила просто упирается одним концом в мауэрлат, а кобылка накладывается сверху и крепится к стропилу с двух сторон.

-2

Если длины стропила хватает, то в нём в месте соприкосновения с мауэрлата делается выпил глубиной не менее пяти сантиметров. Можно сделать дополнительный пропил в мауэрлате для лучшего сцепления.

Считаю правильным это место дополнительно обвязать проволокой и конечно закрепить металлическими пластинами.

Надеюсь, эта информация будет полезной и нужной для вас)

Подписывайтесь на мой блог, будет ещё больше информации)