Добавить в корзинуПозвонить
Найти в Дзене

Маленькая квартира студия-выжимаем максимум из 25м2!

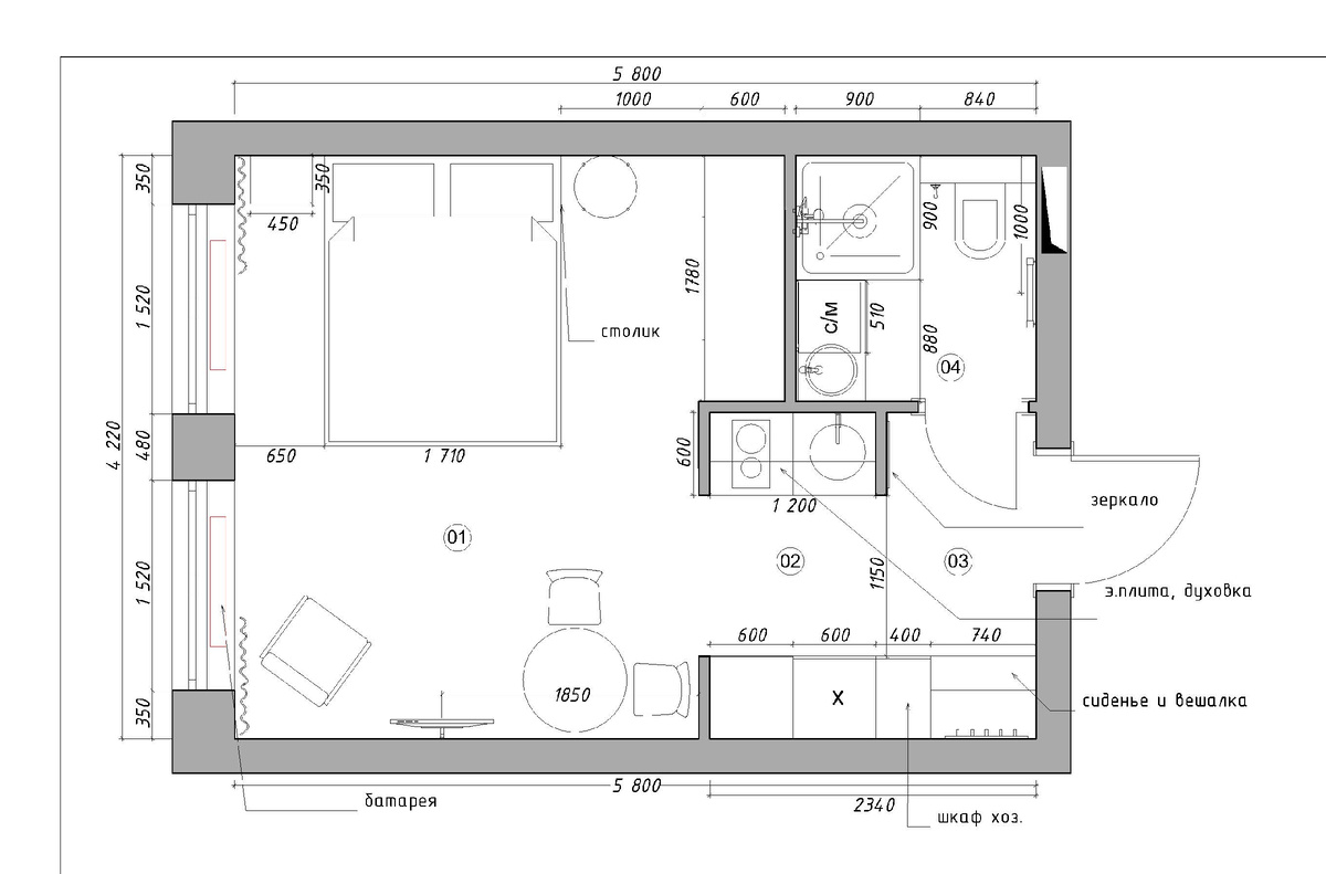
Несмотря на скромные 25 м², мы превратили её в функциональный и комфортный уголок. Удачная перепланировка позволила разместить кухню-нишу в прихожей, освободив пространство для отдыха. В основной комнате разместились большая кровать с тумбами, вместительный шкаф, уютное кресло, телевизор и небольшой обеденный столик. Всё это создаёт атмосферу домашнего уюта. Кухня в прихожей — это смелое решение, которое мы реализовали благодаря удобному расположению санузла. Здесь проходят все коммуникации, что позволило разместить мойку прямо в прихожей. Рядом мы установили двухкомфорочную электрическую плиту и духовку с функцией микроволновой печи. Получилось компактно и функционально! На противоположной стороне находится встроенный холодильник и компактная часть кухонного гарнитура с розетками для приготовления пищи или для электрического чайника. Прихожая теперь оснащена большим зеркалом, кушеткой, вешалкой для одежды и хозяйственным шкафом Ванная комната компактна и функциональна: здесь есть ду
Оглавление

Крохотная квартира-студия в Красногорском районе — уютное место для жизни или выгодный вариант для сдачи?

Несмотря на скромные 25 м², мы превратили её в функциональный и комфортный уголок.

перепланировка позволила разместить кухню-нишу в прихожей
перепланировка позволила разместить кухню-нишу в прихожей

Удачная перепланировка позволила разместить кухню-нишу в прихожей, освободив пространство для отдыха.

В основной комнате разместились большая кровать с тумбами
В основной комнате разместились большая кровать с тумбами
-3
-4

В основной комнате разместились большая кровать с тумбами, вместительный шкаф, уютное кресло, телевизор и небольшой обеденный столик. Всё это создаёт атмосферу домашнего уюта.

-5

Кухня в прихожей — это смелое решение, которое мы реализовали благодаря удобному расположению санузла. Здесь проходят все коммуникации, что позволило разместить мойку прямо в прихожей. Рядом мы установили двухкомфорочную электрическую плиту и духовку с функцией микроволновой печи. Получилось компактно и функционально!

-6

На противоположной стороне находится встроенный холодильник и компактная часть кухонного гарнитура с розетками для приготовления пищи или для электрического чайника.

-7

Прихожая теперь оснащена большим зеркалом, кушеткой, вешалкой для одежды и хозяйственным шкафом

-8

Ванная комната компактна и функциональна: здесь есть душевая кабина, умывальник, стиральная машина и подвесной унитаз.

-9

Интерьер выполнен в сдержанных тонах с яркими акцентами. Шторы в ёлочку, подушки и покрывала добавляют уюта. Картины на стенах придают индивидуальности и особый шарм.

Освещают пространство встроенные, настенные, подвесные и напольные светильники, создавая гармоничное освещение.

Для создания этого интерьера мы с заказчицей сразу начали выбирать мебель и технику, учитывая, что в маленькой квартире это особенно важно. Мы многое нашли на маркетплейсах и в интернете. В следующей статье я поделюсь этими находками, потому что они действительно заслуживают внимания.

Спасибо за лайки, комментарии и подписки! Подписывайтесь, если вам нравится дизайн и ремонт!

Виталия Романовская: дизайн интерьера с душой и страстью. Истории о преображении пространств!

vitadizign.com