БАННЫЙ ДОМ. Визуализации. 70м2 площади для очищения души и тела! Мы очень любим делать банные дома, максимально вкладываем туда весь уют, который можем предложить заказчикам! Обращайтесь к нам за проектированием и дизайном банных домов 🙏
БАННЫЙ ДОМ. Визуализации. 70м2 площади для очищения души и тела! Мы очень любим делать банные дома, максимально вкладываем туда весь уют, который можем предложить заказчикам! Обращайтесь к нам за проектированием и дизайном банных домов 🙏
...Читать далее
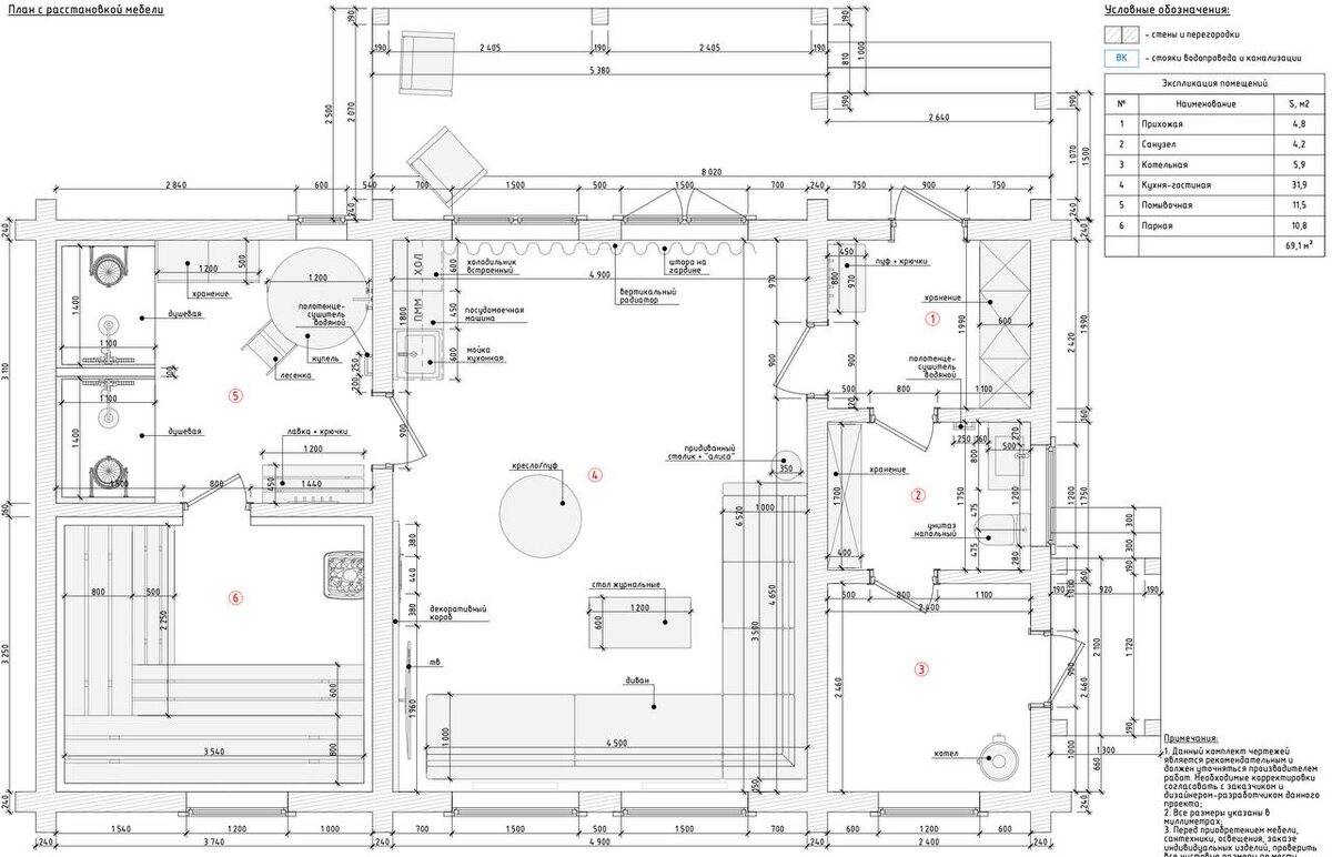
БАННЫЙ ДОМ. Визуализации.
70м2 площади для очищения души и тела!
Мы очень любим делать банные дома, максимально вкладываем туда весь уют, который можем предложить заказчикам!
Обращайтесь к нам за проектированием и дизайном банных домов 🙏