Добавить в корзинуПозвонить
Найти в Дзене
ПСК "Градиент"

Проект каркасного дома 90 м² - секреты комфорта и современного дизайна.

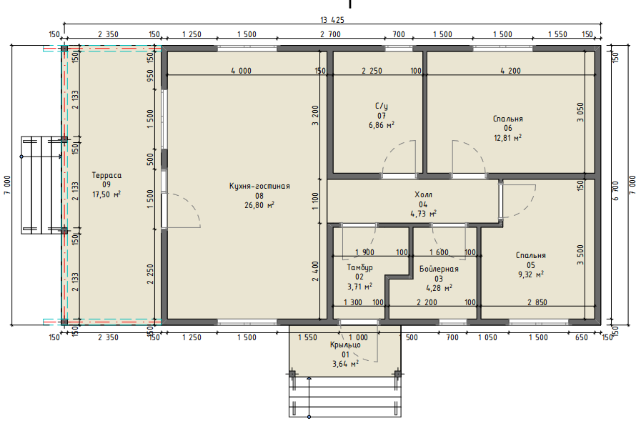
Если вы ищете современный и надежный проект дома с качественным строительством, обратите внимание на наш каркасный дом площадью 90 м². Этот проект сочетает продуманное архитектурное планирование и эффективное использование пространства, что делает его прекрасным выбором для семьи, стремящейся к комфортной жизни. Продуманная планировка. Вход через удобное крыльцо ведет в небольшой тамбур 4 м², это важный элемент утепления и защиты дома от холода, а также место для хранения верхней одежды и обуви. Рядом расположена бойлерная, обеспечивающая автономное отопление и горячее водоснабжение, что повышает энергоэффективность дома. Оптимальное зонирование. В доме расположены две комфортные спальни и просторный санузел площадью 7 м², который отвечает всем современным требованиям удобства и комфорта. Основная зона - открытая кухня-гостиная почти 27 м² - это современный формат жилого пространства, идеально подходящий для семейных встреч и приема гостей. Дополнительные преимущества. Просторная терра
Оглавление

Если вы ищете современный и надежный проект дома с качественным строительством, обратите внимание на наш каркасный дом площадью 90 м². Этот проект сочетает продуманное архитектурное планирование и эффективное использование пространства, что делает его прекрасным выбором для семьи, стремящейся к комфортной жизни.

Особенности проекта каркасного дома:

Продуманная планировка. Вход через удобное крыльцо ведет в небольшой тамбур 4 м², это важный элемент утепления и защиты дома от холода, а также место для хранения верхней одежды и обуви. Рядом расположена бойлерная, обеспечивающая автономное отопление и горячее водоснабжение, что повышает энергоэффективность дома.

-2

Оптимальное зонирование. В доме расположены две комфортные спальни и просторный санузел площадью 7 м², который отвечает всем современным требованиям удобства и комфорта. Основная зона - открытая кухня-гостиная почти 27 м² - это современный формат жилого пространства, идеально подходящий для семейных встреч и приема гостей.

Дополнительные преимущества. Просторная терраса площадью 17,5 м² идеально подходит для отдыха на свежем воздухе и организации досуга.
Фасад выполнен из прочного и эстетичного фиброцементного сайдинга мятного оттенка с белыми декоративными элементами, что обеспечивает долговечность и современный внешний вид здания.

Почему стоит выбрать каркасный дом?

Каркасное строительство - это одна из самых востребованных технологий благодаря высоким показателям теплоизоляции, скорости возведения и экологичности материалов. Конструкции из качественных материалов позволяют минимизировать теплопотери, а грамотное проектирование обеспечивает долговечность и надежность здания.

Если вы хотите построить дом мечты с оптимальным соотношением цены и качества, обращайтесь в ПСК Градиент, для консультации и заказа проекта.

Не забудьте подписаться на наш канал, чтобы получать свежие идеи по проектированию, строительству и дизайну частных домов. Оставляйте комментарии и задавайте вопросы - мы готовы помочь вам на каждом этапе реализации вашего дома!