Добавить в корзинуПозвонить
Найти в Дзене
Homes66

Анализ планировок индийских домов по Васту

Продолжаю изучать планировки индийских домов. Почему меня заинтересовала эта тема? Дело в том, что у меня было несколько заказчиков, желавших построить дома по принципам Васту. У них были свои консультанты, но планы содержали странные решения. Например, в одном из первых таких домов гостиная оказалась без окон — освещение обеспечивалось только верхним световым фонарём. Тогда я решила глубже разобраться в Васту: смотрела видео, изучала материалы. Хотя Васту-шастру часто называют наукой, мнения консультантов
расходятся. При этом они в основном говорят, что так нельзя и это недопустимо, но редко объясняют, как нужно. Поэтому я решила посмотреть, как проектируются дома в самой Индии. Если верить консультантам, 90% индийских домов строятся по Васту, так что я нашла реальные планы и начала анализировать их, чтобы выявить закономерности. Рассматриваю дома площадью до 200 м² (возможно, позже изучу варианты побольше). Планы перерисовала для наглядности, но копировать их не стоит — в
Оглавление

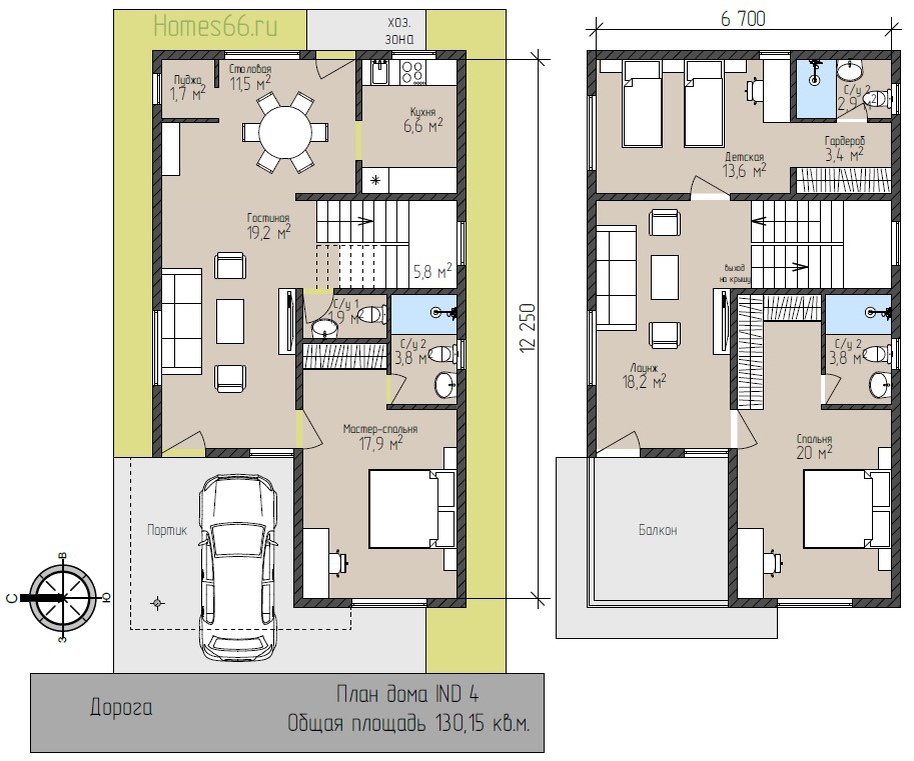
Индийский двухэтажный дом
Индийский двухэтажный дом

Продолжаю изучать планировки индийских домов. Почему меня заинтересовала эта тема? Дело в том, что у меня было несколько заказчиков, желавших построить дома по принципам Васту. У них были свои консультанты, но планы содержали странные решения. Например, в одном из первых таких домов гостиная оказалась без окон — освещение обеспечивалось только верхним световым фонарём.

Тогда я решила глубже разобраться в Васту: смотрела видео, изучала материалы. Хотя Васту-шастру часто называют наукой, мнения консультантов
расходятся. При этом они в основном говорят, что
так нельзя и это недопустимо, но редко объясняют, как нужно. Поэтому я решила посмотреть, как проектируются дома в самой Индии. Если верить консультантам, 90% индийских домов строятся по Васту, так что я нашла реальные планы и начала анализировать их, чтобы выявить закономерности.

Рассматриваю дома площадью до 200 м² (возможно, позже изучу варианты побольше). Планы перерисовала для наглядности, но копировать их не стоит — в конце статьи объясню почему.

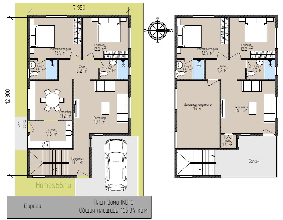
Закономерности в планировке

Одноэтажные дома я уже разбирала здесь, и эти принципы полностью повторяются в двухэтажных:

  • Форма плана должна быть близка к квадрату или прямоугольнику.
  • Максимальное соотношение длины к ширине — 1:1,7.
  • Дом стараются не разворачивать под углом к оси север–юг.
  • Унитазы размещают строго лицом на север или юг.
  • Кухня — в юго-восточном или юго-западном секторе.
  • Мастер-спальня — на юго-западе или юго-востоке.
  • Изголовье кровати должно быть направлено на восток или юг.
  • Точка бинду и брамастан остаются свободными.

Дополнительные наблюдения:

  • Вход чаще расположен в северо-западном или западном секторе.
  • Лестница закручена по часовой стрелке.
  • Санузлы строго в северном или южном секторе, не заходя в другие зоны.
  • Гостиная в северной части обычно проходная.
  • Хозяйственные помещения выносят на улицу (вероятно, чтобы избежать скопления "грязной" энергии). В идеале санузлы тоже должны быть снаружи.
  • Кладовых почти нет (лишь в одном проекте была небольшая при кухне).
  • Гардеробные открытые, без дверей.
  • Непонятно, где размещают стиральные машины — возможно, стирка происходит на улице или бельё отдают в прачечную.

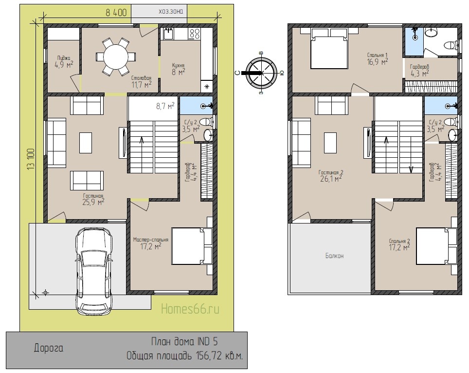
Что понравилось

  • Трёхчастное зонирование: кухня–столовая–гостиная.
  • Наличие места для пуджи (алтаря). Мне кажется, это отличная идея для домов
    любой культуры — например, в
    японских домах есть комната с татами.
  • Мастер-спальни (с санузлом и гардеробной) делают даже для детей.
  • Отсутствие коридоров — пространство используется рационально.

Странности и нестыковки с нашим климатом

  1. Нет прихожей
    — это совершенно не подходит для наших зим. Без места для верхней
    одежды и обуви не обойтись, а вход прямо в диван выглядит
    непрактично.
  2. Технические помещения вынесены на улицу
    — в Индии это возможно, но у нас такой подход не работает. Ближе мне
    финский вариант: большое техническое помещение, через которое можно
    выходить в сад.
  3. Очень маленькие санузлы с дверьми, открывающимися внутрь.
  4. Двери вплотную к стенам — без зазора даже на наличник, что усложняет отделку и выглядит неэстетично.

Вывод

В целом планировки компактные и продуманные. Их можно брать за основу, но с адаптацией под наш климат и привычки.

Меня зовут Татьяна Кузнецова (Кашина), я — архитектор. С 2007 года занимаюсь проектированием загородных домов. Окончила Уральскую архитектурно-художественную академию.