Добавить в корзинуПозвонить
Найти в Дзене

20 лет откладывал, построил за 2 года: почему теперь жалею, что не начал раньше

А потом просто решил — и начал. Через два года я уже держу в руках ключи от собственного дома. Жалею только об одном — что не решился раньше. Я много чего рассматривал: газобетон, кирпич, каркасники. Но в голове сидело одно — дом должен быть тёплым, живым и уютным. Камень — это не моё. Хотелось чего-то ближе к природе. Атмосфера в деревянном доме — совсем другая. Не могу объяснить это технически, но внутри реально спокойно. Воздух приятный, запах древесины — не как на стройке, а как в лесу. Летом прохладно, для зимы я подключил газ — везде тепло. Ни сырости, ни духоты. Шаг 1. Перестал ждать «подходящего момента».
Я больше не искал «идеальный участок» и не пытался изучить все СНиПы. Просто задал себе вопрос: А если не сейчас, то когда? И начал с выбора земли. Из критериев было только максимум коммуникаций и близость к городу.
В итоге нашел участок с хорошим подъездом, электричеством вдоль участка, центральной водой и возможностью подключить газ. Шаг 2. Выбрал типовой проект и не усл
Оглавление
Начало стройки
Начало стройки

Когда-то я думал: дом — это для богатых, строителей или совсем уж отважных. Я не подходил ни под одну категорию. Зато мечтал — и долго. Наверное, лет двадцать собирал картинки, читал форумы, обсуждал с женой, а потом откладывал. Всегда что-то мешало: деньги, страх, неопределённость.

А потом просто решил — и начал. Через два года я уже держу в руках ключи от собственного дома. Жалею только об одном — что не решился раньше.

🪵 Почему выбрал именно дерево?

Я много чего рассматривал: газобетон, кирпич, каркасники. Но в голове сидело одно — дом должен быть тёплым, живым и уютным. Камень — это не моё. Хотелось чего-то ближе к природе.

Атмосфера в деревянном доме — совсем другая. Не могу объяснить это технически, но внутри реально спокойно. Воздух приятный, запах древесины — не как на стройке, а как в лесу. Летом прохладно, для зимы я подключил газ — везде тепло. Ни сырости, ни духоты.

⚒ Как уложился в два года?

Шаг 1. Перестал ждать «подходящего момента».

Я больше не искал «идеальный участок» и не пытался изучить все СНиПы. Просто задал себе вопрос:
А если не сейчас, то когда? И начал с выбора земли.

Из критериев было только максимум коммуникаций и близость к городу.
В итоге нашел участок с хорошим подъездом, электричеством вдоль участка, центральной водой и возможностью подключить газ.

Шаг 2. Выбрал типовой проект и не усложнял.

Нашел типовой проект, который полностью меня устраивал на тот момент и просто адаптировал его под себя. Архитектору платить не пришлось.

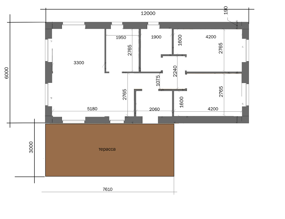
Мой переработанный план под себя, наверно уже третий
Мой переработанный план под себя, наверно уже третий

Шаг 3. Нашёл опытную бригаду.

Не стал изобретать велосипед — спросил у знакомых, кто им строил. Ребята из соседнего города специализировались на домах из бруса. Работали быстро, чётко и, что важно, работали с материнским капиталом.

Шаг 4. Минимум «декора» — максимум смысла.
Материал стен профилированный строганый брус.
Внутри оставил дерево как есть. Ни гипсокартона, ни сложных потолков. Пропитка, лак — и красота. Дом получился живым, без ощущения, что ты снова в коробке.

💸 Где удалось сэкономить?

  • Фундамент — не ленточный, а свайный (забивные ЖБ сваи). Дом лёгкий, смысла в бетонной ленте не было. Минус 200–250 тыс.
  • Материалы — взял профилированный брус вместо клеёного. По деньгам ощутимо дешевле, а по качеству вопросов нет. Предлагали еще высушенный, но глядя на соседей, кто построился из сухого бруса — смысла переплачивать нет, трескается и тот и тот одинаково.
  • Отделка — дерево внутри не пришлось прятать. И красиво, и экономно.
  • Работа — все работы делаю сам. Септик, электричество, отопление, терраса, газон — все эти и многие другие сложные работы я сделал самостоятельно и впервые (кстати получилось намного лучше, чем у некоторых специализированных бригад).

🏡 Что получилось в итоге?

  • Площадь — 65 м² (сразу скажу не мало, если все грамотно спланировано)
  • 1 этажа, терраса.
  • Строительство + коммуникации — 1,5 года
  • Общий бюджет — около 3 млн (если бы строил из кирпича — уложился бы минимум в 6)

Сейчас доделываю косметический ремонт, а ведь мог бы начать лет на несколько лет раньше, когда дерево было не дороже металла.

🎯 Мой совет тем, кто только мечтает

Если у вас есть мысль о собственном доме — не откладывайте её ещё на годы. Начните с проекта, поговорите с теми, кто уже построил, прикиньте бюджет. Не обязательно строить дворец — начните с простого, а доделать всегда можно позже.

Свои стены — это не просто квадратные метры. Это свобода. Тишина. И ощущение, что ты наконец на своём месте.

А еще свой дом я рассматриваю как инвестицию, так как в итоге он получится по стоимости как квартира.

-3

#стройка #деревянныйдом #опытстроительства #профилированныйбрус #жизньвсвоемдоме #фундаментнасваях