Найти в Дзене
Дача Хит

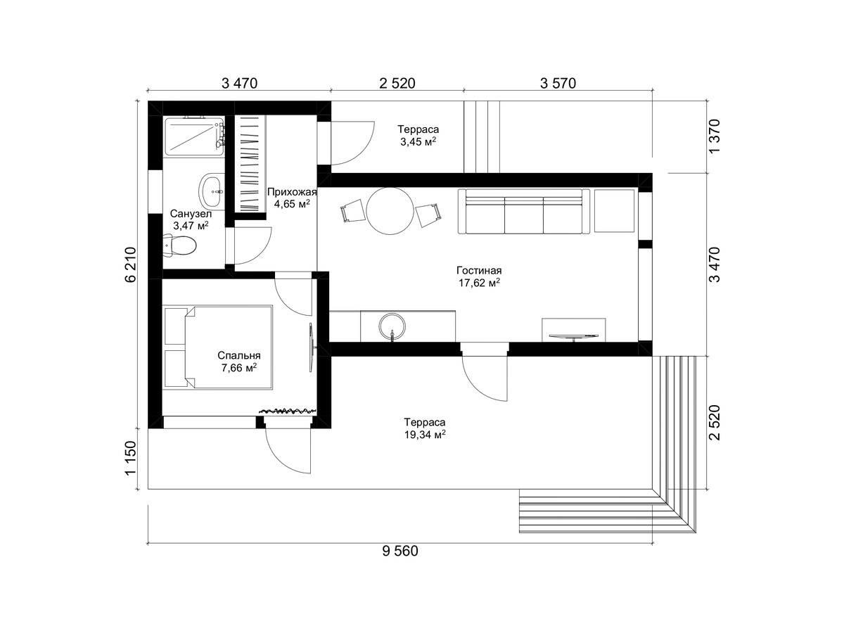
Недорогие модульные дома для круглогодичного проживания: обзор «Чили 56»

Современные модульные дома — это не только быстровозводимое жилье, но и комфортное пространство для жизни в любое время года. Один из таких вариантов — дом «Чили 56» площадью 7,36×9,56 м, который подойдет как для постоянного проживания, так и для глэмпинга или базы отдыха. 1. Продуманная планировка Дом спроектирован так, чтобы в нем было удобно жить и принимать гостей: 2. Готовность под ключ В стоимость входит все необходимое для заселения: 3. Энергоэффективность и комфорт зимой 4. Быстрая установка и адаптация к участку 5. Долговечность и стиль Если рассматривать дом как объект для глэмпинга или базы отдыха, то окупаемость составит 12–18 месяцев благодаря: «Чили 56» — это недорогой модульный дом для круглогодичного проживания с продуманной планировкой, энергоэффективностью и быстрой установкой. Он подойдет тем, кто хочет жить за городом в комфортных условиях или открыть небольшой бизнес в сфере гостеприимства. Узнать больше о доме и его стоимости: https://dachahit.ru/modulnye-doma/ch
Оглавление

Современные модульные дома — это не только быстровозводимое жилье, но и комфортное пространство для жизни в любое время года. Один из таких вариантов — дом «Чили 56» площадью 7,36×9,56 м, который подойдет как для постоянного проживания, так и для глэмпинга или базы отдыха.

Почему «Чили 56» — хороший выбор?

1. Продуманная планировка

Дом спроектирован так, чтобы в нем было удобно жить и принимать гостей:

  • Просторная кухня-гостиная с панорамным остеклением — много света и ощущение единства с природой.
  • Спальня с большими окнами и прямым выходом на улицу.
  • Санузел с отделкой керамогранитом — практично и легко в уходе.
  • Терраса как продолжение жилого пространства.

2. Готовность под ключ

В стоимость входит все необходимое для заселения:

  • Внутренняя отделка (стены, потолки, полы).
  • Прочный ламинат, окна с ламинацией «графит».
  • Санузел с теплым полом и бойлером.
  • Приточно-вытяжная вентиляция и умное управление отоплением.

3. Энергоэффективность и комфорт зимой

  • Утепление: стены — 150 мм минваты, пол и крыша — 200 мм. Выдерживает до -30°C, снижает расходы на отопление на 40%.
  • Отопление: электрические конвекторы + теплый пол с автоматикой.
  • Коммуникации: скрытая разводка, доступ к узлам через технологические люки.

4. Быстрая установка и адаптация к участку

  • Производство — 2–3 месяца, монтаж на фундамент — 5–7 дней.
  • Можно установить на сложном рельефе (свайный или винтовой фундамент).
  • Бесплатный аудит участка с 3D-визуализацией.

5. Долговечность и стиль

  • Каркас из сухой строганной доски (влажность 12–14%) — не деформируется со временем.
  • Лаконичный дизайн с деревянным фасадом и панорамными окнами.

Выгодно ли это для бизнеса?

Если рассматривать дом как объект для глэмпинга или базы отдыха, то окупаемость составит 12–18 месяцев благодаря:

  1. высокой загрузке (до 80% в сезон),
  2. низким эксплуатационным расходам (экономия на отоплении до 40%),
  3. возможности быстрого масштабирования (добавление новых модулей).

Вывод

«Чили 56» — это недорогой модульный дом для круглогодичного проживания с продуманной планировкой, энергоэффективностью и быстрой установкой. Он подойдет тем, кто хочет жить за городом в комфортных условиях или открыть небольшой бизнес в сфере гостеприимства.

Узнать больше о доме и его стоимости: https://dachahit.ru/modulnye-doma/chili-dlya-arendy