Найти в Дзене
Дача Хит

Модульные частные дома: почему "Чили 62" - это удобно и выгодно

Современные технологии строительства открывают новые возможности для тех, кто мечтает о собственном доме без многолетних ожиданий и переплат. Один из таких вариантов - модульный частный дом "Чили 62", который сочетает в себе скорость возведения, продуманную планировку и комфорт для круглогодичного проживания. Модульные дома производятся на заводе в виде готовых блоков, которые затем доставляются на участок и собираются в единую конструкцию. Технология имеет несколько важных преимуществ: - Строительство занимает всего несколько недель
- Все работы проводятся в контролируемых заводских условиях
- Минимальное воздействие на участок во время монтажа
- Возможность строительства в любое время года Этот двухэтажный дом площадью около 60 м² создан с учетом потребностей современной семьи: 1. Продуманная планировка :
- Просторная кухня-гостиная с панорамным остеклением
- Удобная лестница на второй этаж
- Изолированная спальня с выходом на террасу
- Полноценный санузел с душевой кабиной 2. Энер
Оглавление

Современные технологии строительства открывают новые возможности для тех, кто мечтает о собственном доме без многолетних ожиданий и переплат. Один из таких вариантов - модульный частный дом "Чили 62", который сочетает в себе скорость возведения, продуманную планировку и комфорт для круглогодичного проживания.

Что такое модульные частные дома?

Модульные дома производятся на заводе в виде готовых блоков, которые затем доставляются на участок и собираются в единую конструкцию. Технология имеет несколько важных преимуществ:

- Строительство занимает всего несколько недель
- Все работы проводятся в контролируемых заводских условиях
- Минимальное воздействие на участок во время монтажа
- Возможность строительства в любое время года

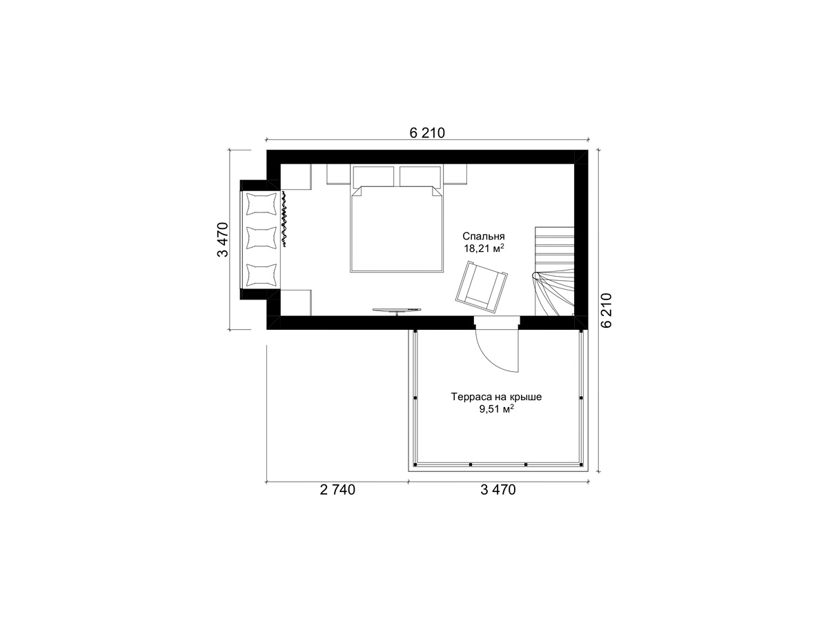
Особенности дома "Чили 62"

Этот двухэтажный дом площадью около 60 м² создан с учетом потребностей современной семьи:

1. Продуманная планировка :
- Просторная кухня-гостиная с панорамным остеклением
- Удобная лестница на второй этаж
- Изолированная спальня с выходом на террасу
- Полноценный санузел с душевой кабиной

2. Энергоэффективные решения :
- Утепление стен (150 мм) и кровли (200 мм) минеральной ватой
- Теплый пол в основных жилых зонах
- Энергосберегающие стеклопакеты
- Приточно-вытяжная вентиляция

3. Готовность к заселению :
- Полная внутренняя отделка
- Установленные сантехника и электрика
- Финишные покрытия полов и стен

Кому подойдет этот дом?

"Чили 62" - универсальное решение для разных целей:
- Для постоянного проживания молодой семьи
- В качестве дачи для выходного отдыха
- Для организации гостевого дома или мини-отеля
- Как временное жилье на период строительства капитального дома

Преимущества модульной технологии

Выбирая модульные частные дома, вы получаете:

- Фиксированную стоимость без непредвиденных расходов
- Строгое соблюдение сроков строительства
- Гарантированное качество всех конструкций
- Минимальное количество строительного мусора на участке

Заключение

Модульный дом "Чили 62" демонстрирует, что современные технологии строительства позволяют создавать комфортное жилье быстро и без компромиссов в качестве. Это отличный вариант для тех, кто ценит свое время и хочет получить готовый дом "под ключ" в кратчайшие сроки.

Если вы рассматриваете модульные частные дома как вариант для проживания или бизнеса, "Чили 62" заслуживает внимания благодаря своей продуманной конструкции и высокому уровню комплектации.

Подробные спецификации и варианты комплектации доступны на сайте производителя:

https://dachahit.ru/modulnye doma/chili dlya arendy/62

А что думаете о модульных домах вы? Делитесь в комментариях — рассматривали ли такой вариант для себя?