Найти в Дзене
Realt.by

Яркая мебель и cтильная техника. Посмотрите, какая сталинка продается рядом с вокзалом

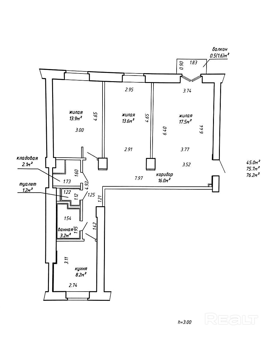
Нравится жить в исторических зданиях, в центре города, иметь высокие потолки и просторные комнаты? Нашли в базе Realt сталинку с отличным ремонтом. Она полностью готова к проживанию: обставлена мебелью и техникой. Интерьер получился интересным за счет ярких деталей. Взгляните на нее и оцените сами. Кирпичный дом на Свердлова, 32 был построен в пять этажей в 1957 году. Продающаяся в нем сталинка располагается на четвертом этаже. Ее площадь — 76,2 м² — это трешка. Кухня занимает 8,2 м². Здесь сделан светлый ремонт. В кухне установлен гарнитур, есть бытовая техника бренда Smeg. В квартире две изолированные спальни, а гостиная совмещена с прихожей. Все окна жилых комнат выходят во двор. Трешка обставлена яркой мебелью Furman. В одной комнате обустроена спальня, во второй — детская. В каждом помещении есть места для хранения вещей. На полу лежат итальянская плитка и паркет. В квартире есть и совмещенный санузел. Еще одно помещение переделано под прачечную. Рядом находится станция метро «Пло

Нравится жить в исторических зданиях, в центре города, иметь высокие потолки и просторные комнаты? Нашли в базе Realt сталинку с отличным ремонтом. Она полностью готова к проживанию: обставлена мебелью и техникой. Интерьер получился интересным за счет ярких деталей. Взгляните на нее и оцените сами.

Кирпичный дом на Свердлова, 32 был построен в пять этажей в 1957 году. Продающаяся в нем сталинка располагается на четвертом этаже. Ее площадь — 76,2 м² — это трешка. Кухня занимает 8,2 м².

-2

Здесь сделан светлый ремонт. В кухне установлен гарнитур, есть бытовая техника бренда Smeg.

В квартире две изолированные спальни, а гостиная совмещена с прихожей. Все окна жилых комнат выходят во двор. Трешка обставлена яркой мебелью Furman.

В одной комнате обустроена спальня, во второй — детская. В каждом помещении есть места для хранения вещей. На полу лежат итальянская плитка и паркет.

В квартире есть и совмещенный санузел. Еще одно помещение переделано под прачечную.

Рядом находится станция метро «Площадь Ленина» и торговый центр.

Стоимость квадратного метра составляет 2 717 долларов. Квартира обойдется в 207 тысяч долларов.