Добавить в корзинуПозвонить
Найти в Дзене
LE HOME artitect

ПЛАНИРОВКА 2-х комнатной квартиры 57 м2. в новостройке для семьи

Сегодня мы познакомимся с новой историей создания пространства для семейной пары с маленьким ребенком.
Это двухкомнатная квартира располагается в новом жилом комплексе, построенным на месте большой промышленной территории недалеко от самого центра города Санкт-Петербург. Квартира сдавалась в черновой отделке, что безусловно является большим приоритетом при проектировании нового пространства и что сохраняет бюджет заказчиков не тратя время на демонтаж ненужных конструкций. Нам дана двух комнатная квартира стандартной планировки 57 м2. Межкомнатных перегородок нет, они только намечены застройщиком блоком в один уровень. Планировалось разместить две жилые комнаты, раздельный санузел, кладовую, кухня и лоджию. Практически весь контур квартиры состоит их монолитных стен, почти в центре квартиры есть несущий пилон, в который мы не имеем право внедряться, сносить, или частично демонтировать. Это строгое правило при проектировании квартиры, конечно если планировочно необходимо и нет других в
Оглавление

Сегодня мы познакомимся с новой историей создания пространства для семейной пары с маленьким ребенком.

Это двухкомнатная квартира располагается в новом жилом комплексе, построенным на месте большой промышленной территории недалеко от самого центра города Санкт-Петербург. Квартира сдавалась в черновой отделке, что безусловно является большим приоритетом при проектировании нового пространства и что сохраняет бюджет заказчиков не тратя время на демонтаж ненужных конструкций.

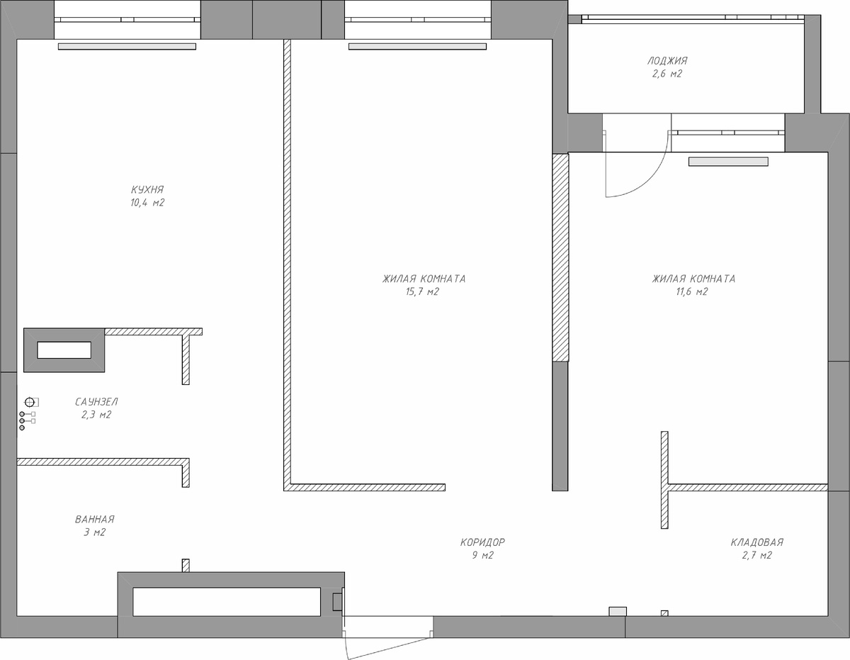
1. ОБМЕРНЫЙ ПЛАН

Обмерный план
Обмерный план

Нам дана двух комнатная квартира стандартной планировки 57 м2. Межкомнатных перегородок нет, они только намечены застройщиком блоком в один уровень. Планировалось разместить две жилые комнаты, раздельный санузел, кладовую, кухня и лоджию. Практически весь контур квартиры состоит их монолитных стен, почти в центре квартиры есть несущий пилон, в который мы не имеем право внедряться, сносить, или частично демонтировать. Это строгое правило при проектировании квартиры, конечно если планировочно необходимо и нет других вариантов произвести проем в несущей стене, это возможно после согласования необходимой организацией и создания проекта демонтажа и укрепления несущей конструкции. В нашей планировке мы не прибегали к дополнительным согласованиям и разрабатывали зонирование с учетом существующей ситуации.

Давайте рассмотрим какие моменты на плане требуют корректировки. Основное – это коридор, частая проблема, с которой сталкиваются при работе дизайнеры. Коридоры обычно длинные и имею много дверей, в данной квартире коридор занимает 9 м2, а это 15% от всей квартиры, что очень много для нефункциональной площади, где даже не разместить полноценного шкафа или зоны хранения. Я всегда стараюсь избежать таких зон, где длинный коридор связывает все помещения между собой. В остальных моментах эта квартира вполне стандартная.

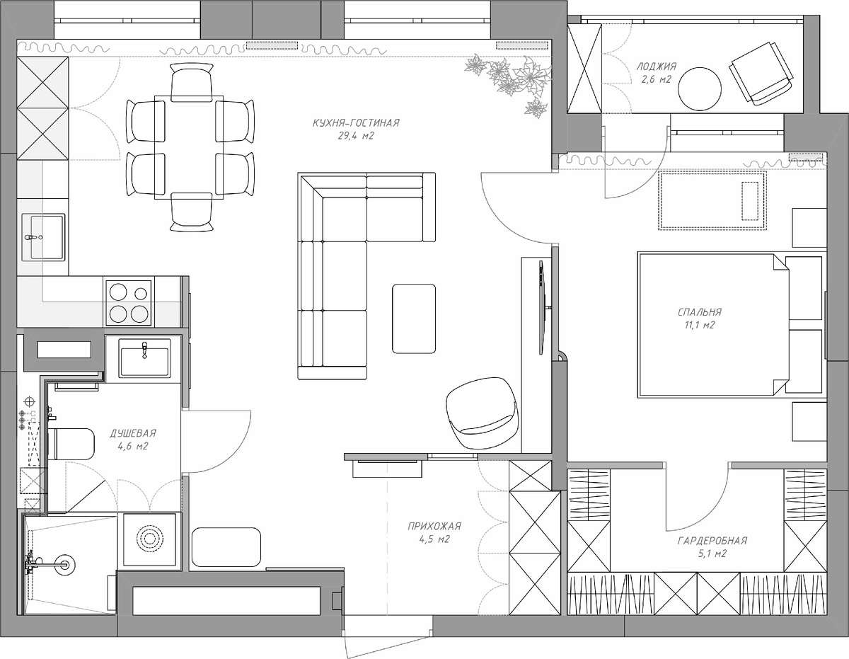
2. ПЛАНИРОВОЧНОЕ РЕШЕНИЕ

Итоговое планировочное решение
Итоговое планировочное решение

Давайте рассмотрим основные изменения, которые мы переформировали в процессе плодотворной работы над планировочным решением.

Из основных пожеланий по зонированию было: объединить кухню-гостиную и найти место для гардеробной, которая будет основной зоной хранения в семье.

Прихожая

Теперь она стала полноценной, функциональной зоной, со шкафом для верхней одежды, консолью над которой располагается красивая картина и образует эстетическую видовую композицию при входе. Предложили разбавить стену, разделяющую прихожую от гостиной, тонированной стеклянной вставкой для естественного освещения.

Прихожая плавно перетекает в гостиную зону, образуя свободное пространство без лишних дверей и простенков. Вся площадь работает на ощущение воздуха и свободы.

Кухня гостиная

Кухонный блок решен углом, предусмотрены все необходимые приборы, духовой шкаф разместили в пенале на удобной высоте, кстати частое желание хозяек. Кухню мы не видим сразу, когда попадаем в гостиную, она располагается в своей отдельной зоне, переходя в гостиную обеденным столом.

В гостиной основной и центральный объект это угловой удобный диван имеющий круговой обход. Уже давно применяем решение, когда диван не прижат к стене и способствует свободному общению всех членов семьи с любой точки гостиной зоны.

Душевая

Два небольших санузла с изначальной планировки (3 + 2,3 м2) мы объединили в просторную душевую и получили после всех зашивок коммуникаций 5-метровое помещение. Такой же принцип, как и с диваном у стены и коридором с многими дверями, лишняя стенка, разделяющая два маленьких помещения, сокращает функциональность и объём помещения при наличии того же набора сантехнических приборов.

Получилось разместить большую душевую 1,1 м х 1,1 м, при желании, душ можно принять даже вдвоём.

Спальня, Гардеробная, Лоджия

В спальне ничего лишнего, только отдых. Предусмотрели место для детской кроватки, в дальнейшем детская зона будет размещаться на утепленной лоджии.

Для гардеробной получилось выделить 5,1 м2. Планировка гардеробной симметричная, для каждого хозяина своя половина.

Аксонометрический вид
Аксонометрический вид

Получилось грамотно распределить площади с учетом всех пожеланий заказчиков. Новая квартира раскрылась просторной общественной зоной, где вся семья и гости смогут разделять моменты радости и уюта.

_________________________________________________________________________

Каждый объект особенный, поэтому персональный подход в формирование нового образа жизни является одним из главных направлений моего дела. С радостью помогу создать ваш уютный дом.

Архитектор LE HOME - Лоскутова Екатерина

tel: +79657790033

telegram