Добавить в корзинуПозвонить
Найти в Дзене
ЖК "Лайм"

Пять жилых комнат, свободная планировка и шикарные виды на Останкино: выбираем квартиру для многодетной семьи

На самом высоком, 27-м, этаже жилого комплекса «Лайм» предлагается просторная 5-комнатная квартира, где с комфортом разместятся все: и дети, и взрослые. Благодаря свободной планировке пространство площадью 169, 1 кв. м можно будет обустроить по собственному вкусу, учитывая потребности каждого. А это действительно важно для большой семьи. Интересно? Тогда расскажем подробнее. Стоит отметить, что купить квартиру для семьи с несколькими детьми — тот еще вызов. Лоты с большим количеством комнат сегодня — редкость. Поэтому предложение в ЖК «Лайм» по-своему уникально (https://lime-dom.ru/flats/kvartira-618/). У многодетной семьи особые требования к жилплощади. Квартира должна быть просторной, эргономичной и комфортной. Каждому необходимо свое собственное пространство для работы, учебы и жизни. Важна также уютная гостиная или кухня-столовая, где можно собираться всем вместе и принимать гостей. Обязательно должно быть несколько санузлов. Лот общей площадью 169,1 кв. м. имеет 5 жилых комнат (о
Оглавление

На самом высоком, 27-м, этаже жилого комплекса «Лайм» предлагается просторная 5-комнатная квартира, где с комфортом разместятся все: и дети, и взрослые. Благодаря свободной планировке пространство площадью 169, 1 кв. м можно будет обустроить по собственному вкусу, учитывая потребности каждого. А это действительно важно для большой семьи.

Интересно? Тогда расскажем подробнее.

Источник: ЖК «Лайм»
Источник: ЖК «Лайм»

Идеальная квартира для многодетной семьи

Стоит отметить, что купить квартиру для семьи с несколькими детьми — тот еще вызов. Лоты с большим количеством комнат сегодня — редкость. Поэтому предложение в ЖК «Лайм» по-своему уникально (https://lime-dom.ru/flats/kvartira-618/).

Особенности планировки

Источник: ЖК «Лайм»
https://lime-dom.ru/flats/kvartira-618/
Источник: ЖК «Лайм» https://lime-dom.ru/flats/kvartira-618/

У многодетной семьи особые требования к жилплощади. Квартира должна быть просторной, эргономичной и комфортной. Каждому необходимо свое собственное пространство для работы, учебы и жизни. Важна также уютная гостиная или кухня-столовая, где можно собираться всем вместе и принимать гостей. Обязательно должно быть несколько санузлов.

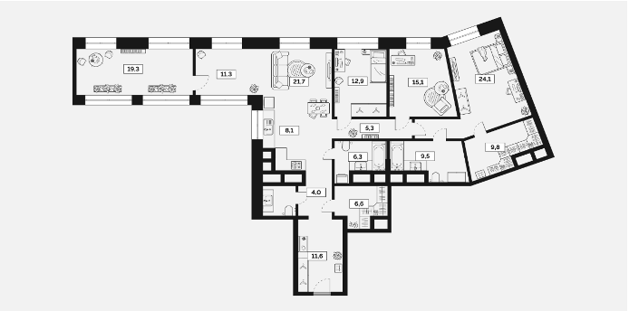
Лот общей площадью 169,1 кв. м. имеет 5 жилых комнат (от 12,9 до 31,8 кв. м.), 2 санузла и 1 гостевой туалет, большую зону прихожей, гардеробную, кладовую. Кухня-ниша (8,1 кв. м) позволяет организовать функциональную зону для приготовления пищи и столовую.

Даже в стандартной планировке, которую предлагает застройщик, в квартире можно запросто разместить семью с тремя детьми. Например:

● Для родителей предусмотрена просторная мастер-спальня (24,1 кв. м) с гардеробной (9,8 кв. м). Площадь комнаты позволяет выделить место не только под кровать и шкаф с комодом, но также под рабочий стол.

● Для детей две спальни, площадью 15,1 кв. м и 12,9 кв. м. Старшему ребенку, который ходит в школу или вуз, можно отдать комнату побольше, чтобы ему было комфортно делать уроки, проводить досуг, заниматься хобби. Младшему — поменьше. Часть пространства можно выделить под игровую, а часть — под учебную зону и зону отдыха.

● Если в семье есть третий ребенок, то можно провести перепланировку квартиры и жилое пространство площадью 11,3 кв. м оградить стенами. Так получится создать еще одну спальню, а квартира станет 6-комнатной.

Здесь предусмотрена и большая терраса (19,3 кв. м), где можно проводить уютные семейные вечера, наслаждаясь завораживающими видами на парк «Сокольники», Останкинскую башню и ВДНХ.

При этом цена этой квартиры очень привлекательна. Даже если вы не располагаете всей суммой, купить этот лот можно прямо сейчас. Застройщик предлагает оформить рассрочку на 1 год при первоначальном взносе от 50% и на 6 месяцев с первоначальным взносом от 60%, а также семейную ипотеку. И это несмотря на то, что дом построен и введен в эксплуатацию.

Условия семейной ипотеки сейчас одни из самых выгодных:

● ставка — 6%;

● сумма кредита — до 12 000 000 рублей;

● срок кредита — до 30 лет;

● первоначальный взнос — от 21,1%, можно использовать материнский капитал.

«Лайм» – идеальный выбор для семейного проживания

В тот момент, когда мы становимся родителями, наша жизнь меняется. Теперь мы в первую очередь ищем баланс между собственными интересами и интересами нашего ребенка. И это касается в том числе и поиска идеального места проживания. «Лайм» —жилой комплекс, который точно подойдет всем. Рассказываем почему.

Источник: ЖК «Лайм»
Источник: ЖК «Лайм»

Тихий старомосковский район с отличной экологией

С точки зрения локации, жилой комплекс «Лайм» выглядит очень привлекательно. Дом находится в престижном Алексеевском районе. Это историческая часть города в непосредственной близости от центра. Здесь сосредоточено множество зеленых зон и объектов инфраструктуры. Буквально в 5 минутах ходьбы по уютным улицам — и вы на станциии метро «Алексеевская». Одна из главных магистралей района — Проспект Мира —всего в 3 минутах пешком. Дорога на автомобиле до ВДНХ займет всего 5-6 минут, а пешком — 15 минут. Это, кстати, отличное место для того, чтобы провести выходные всей семьей.

Отметим, что Алексеевский район не раз входил в рейтинги самых экологичных локаций столицы. Здесь нет вредных производств и предприятий. При этом в непосредственной близости от жилого комплекса расположены пять (!) самых крупных и известных парков Москвы — «ВДНХ», «Сокольники», «Ботанический сад», «Яуза» и «Лосиный остров».

Источник: ЖК «Лайм»
Источник: ЖК «Лайм»

Благоустроенный и безопасный двор

В ЖК «Лайм» предусмотрен благоустроенный и безопасный двор со спортивными и игровыми пространствами,лаунж-зонами и озеленением. Важный плюс для семейного проживания! Детская площадка разработана и реализована по индивидуальному проекту – все ее конструкции полностью экологичны, при этом учитывают интересы и удобство малышей. Здесь же ребята более старшего возраста смогут играть в баскетбол и футбол, а взрослые – отдыхать и общаться в комфортабельной лаунж-зоне с деревянными шезлонгами и столиками.Одним словом, во дворе каждый из членов семьи найдет себе занятие по душе. При этом волноваться о безопасности не придется. Во-первых, территория ЖК огорожена и круглосуточно охраняется. Во-вторых, здесь реализована концепция «двор без машин».

Важным преимуществом жилого комплекса является и безбарьерная среда, которая гарантирует мамам с детской коляской практически повсеместный доступ. Кстати, для их удобства в просторных холлах каждой секции дома предусмотрены колясочные.

Образование для детей любого возраста

Источник: www.akwatoria.ru
Источник: www.akwatoria.ru

Жителям «Лайма» повезло: поблизости уже давно сформировалась развитая образовательная инфраструктура.Именно поэтому квартира в жилом комплексе станет отличным выбором для родителей, которые стремятся дать своим детям качественное образование.

Рядом расположены государственные и частные детские сады. К последним относится детский сад «Солнышко» (филиал сети частных детских садов «Мир детства») для детей от 1,5 до 7 лет с изучением английского языка, а также «Бэби-клуб на Алексеевской», который включает детский сад, ясли и центр развития. Государственные детские сады в Алексеевском районе — №81, 124, 271, 2140, 2143, 1977 — работают в соответствии с образовательными стандартами и обеспечивают уход, воспитание детей и их подготовку к школе.

Школы, расположенные поблизости: №1539, №293 имени А.Т. Твардовского, гимназия №1503 с дошкольным отделением, центр образования №1464, гимназия при Российском университете транспорта и другие. Таким образом, у семей с детьми есть возможность без труда подобрать ту школу, которая в максимальной степени соответствует талантам и интересам ребенка.

Рядом с ЖК «Лайм» находятся средние специальные образовательные учреждения, такие как колледж современных технологий им. М.Ф. Панова, Политехнический колледж имени П.А. Овчинникова, Медицинский колледж №2.

В Алексеевском районе Москвы расположены и престижные вузы, среди которых Московский городской педагогический университет (МГПУ) — занимает первое место в предметном рейтинге по педагогическому образованию, Российский университет транспорта (РУТ) — входит в топ-50 лучших вузов по качеству образования в России. Нельзя не упомянуть и Финансовый Университет при Правительстве РФ, расположенный на улице Кибальчича, 1.

Важно, что в окрестностях жилого комплекса «Лайм» есть широкий выбор спортивных школ и секций для детей всех возрастов: футбольная секция «Викинг», творческий центр Ангелины Шкарупиной Brosco, спортивно-образовательная «Академия Будущего»; спортивно-досуговый центр «Алексеевский» и др.

В заключение отметим, что «Лайме» мечта о комфортной жизни многодетной семьи точно станет реальностью. Для этого здесь есть все необходимое.