Найти в Дзене
Войти
Виталий Ананченко (Творческая группа Architipai)
23 подписчика
Подписаться
Интерьер квартиры-лофта в Москве
6 мая
6 мая
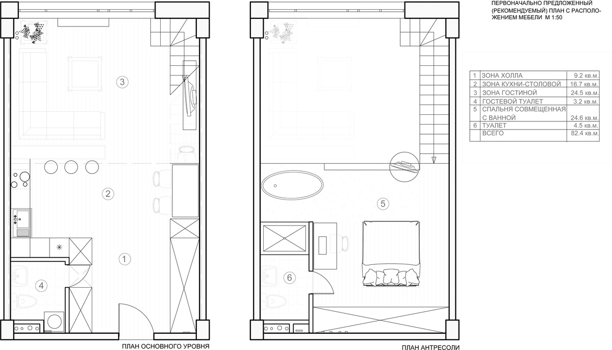
Итоговое планировочное решение. Фишка - ванная с видом на город, спальня так же задействует панораму на все 100 процентов
Итоговое планировочное решение. Фишка - ванная с видом на город, спальня так же задействует панораму на все 100 процентов