Добавить в корзинуПозвонить
Найти в Дзене

5 вариантов эскиз - дизайна для ванной комнаты

Когда ко мне обратились за созданием проекта для ванной - из исходных данных было только:
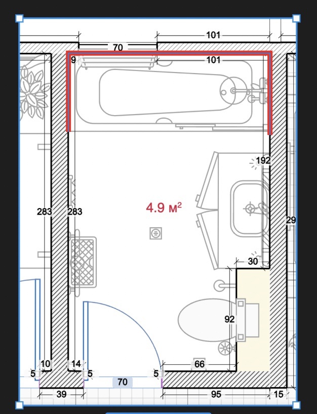
- Проект планировки составленный заказчиками (ванная в загородном доме) - Пожелание по стилю, ближе к натуральному, - Использовать немного ярких акцентов Как строилась работа и какие варианты мы попробовали создать? На начальном этапе мы проанализировали ряд референсов, чтобы понять что нравится, какие стили и какие направления. А что точно нет. Первым эскизом - было решение оформить ванную в балийском стилей (эскиз ниже) Что понравилось - решение по зонированию и разные материалы, а что не понравилось - плитка террацо. Во втором решении рассмотрели другой вариант пола и оформление стены за раковиной Третим решением было попробовать новые фактуры и сделать не окрашенные стены, а оформить их штукатуркой На четвертом решении мы оказались на финишной прямой, практически все решения понравились, но было небольшое НО Было принято пожелание изменить плитку, где зеркало - сделать ее более вырази

Когда ко мне обратились за созданием проекта для ванной - из исходных данных было только:

- Проект планировки составленный заказчиками (ванная в загородном доме)

- Пожелание по стилю, ближе к натуральному,

- Использовать немного ярких акцентов

Как строилась работа и какие варианты мы попробовали создать?

На начальном этапе мы проанализировали ряд референсов, чтобы понять что нравится, какие стили и какие направления. А что точно нет.

Первым эскизом - было решение оформить ванную в балийском стилей (эскиз ниже)

Первый вариант оформления ванной
Первый вариант оформления ванной

Что понравилось - решение по зонированию и разные материалы, а что не понравилось - плитка террацо.

Второе решение по оформлению ванной
Второе решение по оформлению ванной

Во втором решении рассмотрели другой вариант пола и оформление стены за раковиной

Третий эскиз по оформлению ванной
Третий эскиз по оформлению ванной

Третим решением было попробовать новые фактуры и сделать не окрашенные стены, а оформить их штукатуркой

-5

На четвертом решении мы оказались на финишной прямой, практически все решения понравились, но было небольшое НО

Было принято пожелание изменить плитку, где зеркало - сделать ее более выразительно и геометричной. По итогу получилось вот такое финальное решение.

-6

По итогу, какие решения здесь выбраны:

  • На полу плитка серая под бетон,
  • Стены в зоне ванной аналогичная плитка под бетон
  • Стены, где нет прямого контакта с водой - микроцемент,
  • Интересный акцент вставка возле раковины (геометричная плитка)
  • Чтобы сделать интерьер более темплым - добавлены акценты в виде тумба под дерево, оформление окна под дерево и шкафчик над унитазом.

Как вам итоговое решение? Какой вариант больше всего понравился?

#эскиздизайн #дизайнванной #дизайнпроектванной