Добавить в корзинуПозвонить
Найти в Дзене
DIVAN.RU

Идеально для жизни: романтичная евродвушка 43 кв.м для девушки и ее кота

Создали современный интерьер с добавлением принтов, цвета и интересных нюансов. Об объекте: евродвушка 43 кв.м, г. Новосибирск, ЖК «Романтика» Авторы проекта: дизайнеры Ирина Максименко и Татьяна Шматова, студия TI INTERIORS Бюджет проекта: 2,5 млн рублей Интерьер спроектирован дизайнерами из студии TI INTERIORS для девушки и ее рыжего питомца. Заказчицу в целом устраивала планировка квартиры, внесли только одно изменение — выстроили простенок, отделяющий кухонную зону от прихожей. Слева при входе спроектировали встроенный шкаф, а со стороны кухни образовавшуюся нишу занял гарнитур. Кухонный гарнитур выполнен на заказ. Фасады универсальных бело-серых оттенков хорошо гармонируют друг с другом и долго останутся актуальны. В тандеме со шкафами-пеналами в цвете «натуральное дерево» они создают уютный ненавязчивый интерьер. Прием: фартук из керамогранита стал связующим звеном в цветовой гамме между верхними и нижними фасадами гарнитура. Стены в столовой зоне оформлены однотонными белыми обо
Оглавление

Создали современный интерьер с добавлением принтов, цвета и интересных нюансов.

Проект дизайнеров из студии TI INTERIORS; автор фото Надежда Косточка
Проект дизайнеров из студии TI INTERIORS; автор фото Надежда Косточка

Об объекте: евродвушка 43 кв.м, г. Новосибирск, ЖК «Романтика»

Авторы проекта: дизайнеры Ирина Максименко и Татьяна Шматова, студия TI INTERIORS

Бюджет проекта: 2,5 млн рублей

Интерьер спроектирован дизайнерами из студии TI INTERIORS для девушки и ее рыжего питомца. Заказчицу в целом устраивала планировка квартиры, внесли только одно изменение — выстроили простенок, отделяющий кухонную зону от прихожей. Слева при входе спроектировали встроенный шкаф, а со стороны кухни образовавшуюся нишу занял гарнитур.

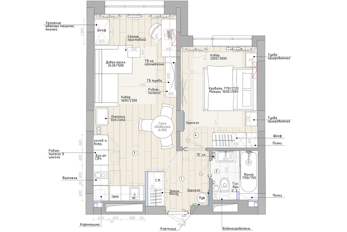
Планировочное решение и расстановка мебели
Планировочное решение и расстановка мебели

Кухня-гостиная

Кухонный гарнитур выполнен на заказ. Фасады универсальных бело-серых оттенков хорошо гармонируют друг с другом и долго останутся актуальны. В тандеме со шкафами-пеналами в цвете «натуральное дерево» они создают уютный ненавязчивый интерьер.

Прием: фартук из керамогранита стал связующим звеном в цветовой гамме между верхними и нижними фасадами гарнитура.

Стены в столовой зоне оформлены однотонными белыми обоями, в гостиной — серыми. Стык между ними скрыли с помощью графичного черного профиля.

Оптимальное решение для небольшого помещения — круглый стол. При желании за ним можно разместить больше гостей, чем за квадратным. Благодаря одной опоре он выглядит визуально легким и воздушным.

Стена за диваном оклеена стильными обоями с абстрактным рисунком. Они не нагружают своим смыслом и в то же время прекрасно гармонируют с интерьером.

Угловой диван Эби от divan.ru подчеркнул современный стиль комнаты. Модель имеет комфортную глубину, широкие подлокотники и мягкие приспинные подушки — отдыхать и принимать гостей на ней одно удовольствие.

➡️Товары бренда divan.ru

Одним из пожеланий заказчицы было рабочее место не в спальне. Поэтому его обустроили около окна в гостиной. ТВ-тумба Кимбол от divan.ru стала альтернативой комоду — в выдвижных ящиках хозяйка хранит рабочую документацию.

➡️Товары бренда divan.ru

Спальня

В этой комнате две стены оклеили обоями с лебедями — их заказчицы выбирала лично. Остальные стены оформили обоями приглушенного синего цвета.

«Такое решение вызывает ассоциацию, будто лебеди летят над морем. — рассказывают дизайнеры. — А кровать и тумбы по цвету напоминают морской песок».

Живую природу в комнату «впустили» с помощью веток дерева. Когда стволы наполнятся водой, они дадут зеленые листочки.

➡️Товары бренда divan.ru

💥 Весна, тренды и скидки до -70% — идеальное комбо для стильного интерьера! Выбирайте мебель и аксессуары по выгодным ценам на divan.ru

-8

Хранение в спальне организовано в большом шкафу и в прикроватных тумбах из той же серии, что и ТВ-тумба в гостиной. А чтобы тумба не мешала открыванию боковой дверцы шкафа, эту часть сделали открытой.

Прихожая

В прихожей предусмотрен вместительный встроенный шкаф. В нем размещены гардеробная и постирочный отдел. В нижней части фасада организован вход в индивидуальный кошачий туалет.

Санузел

Для отделки санузла выбрали керамогранит с черными вкраплениями и плитку припыленно-розового цвета. На небольшой площади удалось разместить полноразмерную ванну, раковину с тумбой, инсталляцию, вертикальный полотенцесушитель и функциональное зеркало в графичной черной раме.

==========

Оцените интерьер в комментариях, а если материал понравился — не забудьте поставить лайк👍

🖤divan.ru — не только блог про интерьеры, но и производитель доступной дизайнерской мебели. Ищите новые идеи и переходите на сайт, чтобы воплотить их в жизнь.

*Цены актуальны на момент публикации статьи