Добавить в корзинуПозвонить
Найти в Дзене
ПСК "Градиент"

Новый проект бани с мансардой: превосходное место для отдыха и релаксации

В последнее время, все больше людей стремятся создать у себя дома комфортное пространство для отдыха и восстановления. Одним из самых популярных решений для этого является баня. Мы рады представить вам новый проект бани, который включает в себя один этаж и мансарду, общей площадью 137 м². На первом этаже расположены все необходимые помещения для комфортного пребывания, а мансарда предлагает дополнительные возможности для отдыха и уединения. Первый этаж включает в себя: • Уютное крыльцо, где можно насладиться свежим воздухом и провести время с друзьями. • Прихожая - удобное пространство для хранения верхней одежды и обуви. • Котельная - техническое помещение, где находится оборудование для отопления и водоснабжения. • Кухня-гостиная: просторная зона для приготовления пищи и общения с близкими, где можно организовать семейные ужины или вечеринки. • Душевая: место для быстрого освежения после парной. • Раздевалка: пространство для переодевания перед посещением парной. • Парная: сердце бан
Оглавление

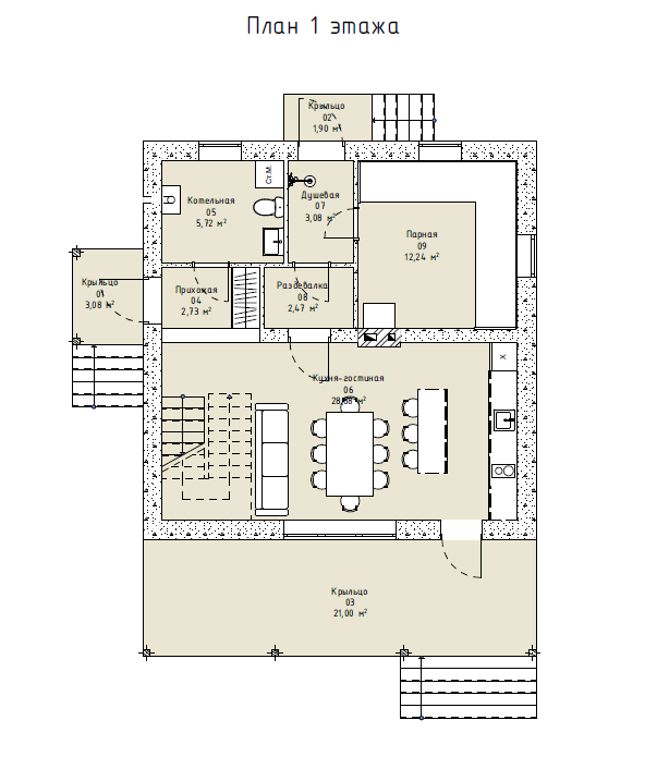
В последнее время, все больше людей стремятся создать у себя дома комфортное пространство для отдыха и восстановления. Одним из самых популярных решений для этого является баня. Мы рады представить вам новый проект бани, который включает в себя один этаж и мансарду, общей площадью 137 м². На первом этаже расположены все необходимые помещения для комфортного пребывания, а мансарда предлагает дополнительные возможности для отдыха и уединения.

Первый этаж

Первый этаж включает в себя:

-2

• Уютное крыльцо, где можно насладиться свежим воздухом и провести время с друзьями.

• Прихожая - удобное пространство для хранения верхней одежды и обуви.

• Котельная - техническое помещение, где находится оборудование для отопления и водоснабжения.

• Кухня-гостиная: просторная зона для приготовления пищи и общения с близкими, где можно организовать семейные ужины или вечеринки.

• Душевая: место для быстрого освежения после парной.

• Раздевалка: пространство для переодевания перед посещением парной.

• Парная: сердце бани, где можно насладиться паром и расслабиться.

Общая площадь первого этажа составляет 81,10 м², что позволяет разместить все необходимые помещения без ощущения тесноты.

Мансарда

На мансарде расположены:

-3

• Коридор: соединяет все комнаты мансарды и создает уютную атмосферу.

• Удобный санузел для мансардного этажа.

• Спальни: две просторные спальни, которые обеспечат комфортный отдых и уединение.

Общая площадь мансарды составляет 55,88 м². Это идеальное место для отдыха после насыщенного дня.

Проект бани с мансардой прекрасно подойдет как для семейного отдыха, так и для шумных вечеринок с друзьями. Просторные помещения, продуманная планировка и уютная атмосфера сделают вашу баню любимым местом для отдыха.

Если вы мечтаете о загородном доме, который будет радовать вас и вашу семью многие годы, ПСК Градиент готовы помочь вам реализовать эту мечту!

Свяжитесь с нами для получения подробной информации о проекте и возможностях его реализации. Давайте вместе создадим ваш идеальный уголок на природе!