Найти в Дзене
ПСК "Градиент"

Подборка планировок домов до 60 м2

Подбор планировок для домов до 60 метров – важный шаг при выборе комфортного и компактного жилья. Рассмотрим несколько типовых проектов, которые помогут подобрать оптимальный вариант. Проект GTS-39 представляет небольшой одноэтажный каркасный дом площадью 38,89 м2. В нем предусмотрены 2 спальни, кухня-гостиная, санузел, котельная и небольшое крыльцо. Фасады выполнены из фиброцементного сайдинга. Этот вариант подойдет для семьи из нескольких человек, ценящих удобство и простоту. Проект GTS-43 имеет площадь 43,15 м2. В доме размещены кухня, санузел, тамбур и гостиная, которую можно использовать как спальню. Проект дома с парной из керамзитобетонных блоков GTC-57. Здесь есть комната отдыха, кухня-гостиная, парная, душевая, санузел и терраса. Этот вариант отлично подходит для тех, кто хочет объединить жилое пространство и банный комплекс. Проект GTS-59 с общей площадью 58,67 м2 выделяется симметричной планировкой. Спальни и кухня с гостиной одинакового размера расположены по разным сторон

Подбор планировок для домов до 60 метров – важный шаг при выборе комфортного и компактного жилья. Рассмотрим несколько типовых проектов, которые помогут подобрать оптимальный вариант.

Проект GTS-39 представляет небольшой одноэтажный каркасный дом площадью 38,89 м2. В нем предусмотрены 2 спальни, кухня-гостиная, санузел, котельная и небольшое крыльцо. Фасады выполнены из фиброцементного сайдинга. Этот вариант подойдет для семьи из нескольких человек, ценящих удобство и простоту.

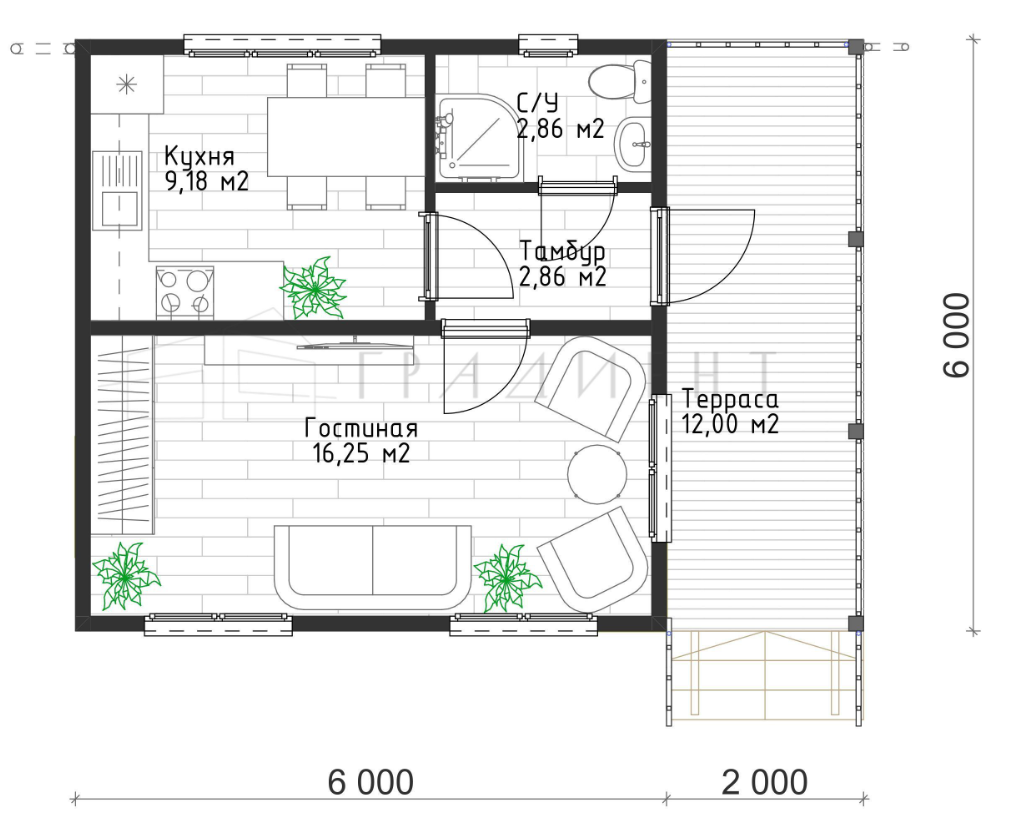
Проект GTS-43 имеет площадь 43,15 м2. В доме размещены кухня, санузел, тамбур и гостиная, которую можно использовать как спальню.

-2

Проект дома с парной из керамзитобетонных блоков GTC-57. Здесь есть комната отдыха, кухня-гостиная, парная, душевая, санузел и терраса. Этот вариант отлично подходит для тех, кто хочет объединить жилое пространство и банный комплекс.

-3

Проект GTS-59 с общей площадью 58,67 м2 выделяется симметричной планировкой. Спальни и кухня с гостиной одинакового размера расположены по разным сторонам дома, а в центре размещены холл, санузел и тамбур. Подойдет для любителей четкого разделения жилых зон.

-4

Проект GTS-60 также рассчитан на семью из 2-3 человек. Проект с просторной кухней-гостиной, санузлом, хозяйственными помещениями и небольшим крыльцом.

-5

При выборе планировки дома до 60 м2 важно учитывать количество жильцов, необходимость дополнительных помещений и предпочтений в зонировании. Представленные типовые проекты показывают разнообразие вариантов для комфортного загородного жилья маленькой площади.