Найти в Дзене

Топ 6 самых популярных проектов домов с баней под одной крышей

Дома бани - это идеальное решение для тех, кто ценит комфорт, экологичность и практичность в одном проекте. Наша компания предлагает готовые решения, сочетающие функции уютного загородного дома и полноценной бани. В этом обзоре мы расскажем о самых популярных и удачных проектах. Габариты: 6,6х6,5 м
Площадь: 82 м²
Ссылка на проект Этот уютный двухэтажный дом-баня из клееного бруса размером 6,5 на 6,6 метра прекрасно сочетает в себе функциональность жилого дома и полноценной бани. Идеально подойдет для загородного проживания круглый год, а также для комфортного отдыха всей семьей. Планировка первого этажа: Планировка второго этажа: Преимущества проекта: Этот проект подойдет тем, кто хочет совместить уют загородного дома с возможностью регулярно пользоваться баней, не выходя из дома. Идеальное решение для любителей настоящего отдыха на природе в любое время года. Габариты: 7х10,6 м
Площадь: 97 м²
Ссылка на проект Этот функциональный и уютный дом-баня из клееного бруса размером 7 × 10,6 ме
Оглавление

Дома бани - это идеальное решение для тех, кто ценит комфорт, экологичность и практичность в одном проекте. Наша компания предлагает готовые решения, сочетающие функции уютного загородного дома и полноценной бани. В этом обзоре мы расскажем о самых популярных и удачных проектах.

Яхрома

Габариты: 6,6х6,5 м
Площадь: 82 м²
Ссылка на проект

Проект дома-бани "Яхрома"
Проект дома-бани "Яхрома"
Планировка первого этажа
Планировка первого этажа
Планировка второго этажа
Планировка второго этажа

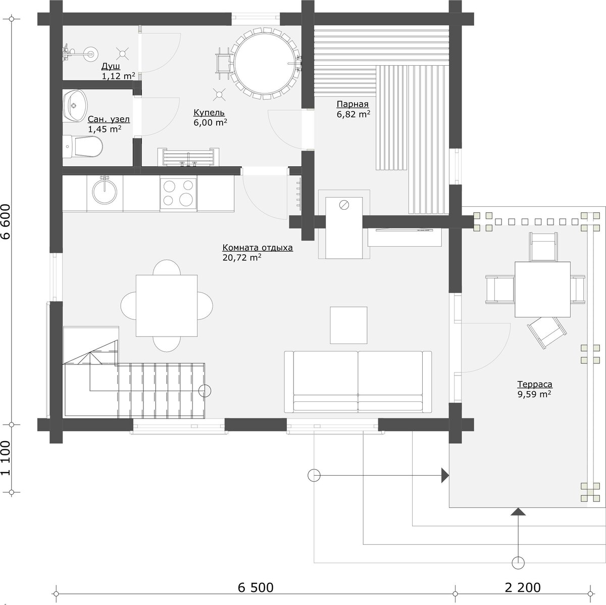
Этот уютный двухэтажный дом-баня из клееного бруса размером 6,5 на 6,6 метра прекрасно сочетает в себе функциональность жилого дома и полноценной бани. Идеально подойдет для загородного проживания круглый год, а также для комфортного отдыха всей семьей.

Планировка первого этажа:

  • Комната отдыха (20,72 м²) - центральное помещение первого этажа, в котором удобно разместилась зона отдыха с диваном и обеденной зоной. Здесь же находится лестница на второй этаж. Пространство светлое, просторное и уютное.
  • Купель (6,00 м²) - отдельная комната с купелью, идеально подходящая для релаксации после парной. Имеет прямой выход как в душ, так и в парную.
  • Парная (6,82 м²) - полноценная парная с полками для отдыха. Расположена в углу дома и имеет удобную связь с купелью и зоной отдыха.
  • Душ (1,12 м²) - компактная душевая рядом с купелью, позволяет ополоснуться до или после процедур.
  • Санузел (1,45 м²) - включает в себя унитаз и раковину. Удобно расположен недалеко от входа и зоны отдыха.
  • Терраса (9,59 м²) - крытая терраса с выходом из комнаты отдыха. Здесь можно разместить обеденную группу или кресла для отдыха на свежем воздухе.

Планировка второго этажа:

  • Гостиная (16,01 м²) - уютное пространство с мягкой мебелью и телевизором, которое можно использовать как второй холл, зону для отдыха или даже как спальное место для гостей.
  • Спальня (19,53 м²) - просторная основная спальня с большой кроватью и местом для хранения вещей. Подходит как для постоянного проживания, так и для загородных выходных.

Преимущества проекта:

  • Дом совмещает функции комфортного жилья и полноценной бани;
  • Удобная и логичная планировка для отдыха и проживания;
  • Просторная терраса для летнего досуга;
  • Большая парная и купель - редкость для компактных домов;
  • Возможность круглогодичного проживания.

Этот проект подойдет тем, кто хочет совместить уют загородного дома с возможностью регулярно пользоваться баней, не выходя из дома. Идеальное решение для любителей настоящего отдыха на природе в любое время года.

Верона

Габариты: 7х10,6 м
Площадь: 97 м²
Ссылка на проект

Проект дома-бани "Верона"
Проект дома-бани "Верона"
Планировка первого этажа
Планировка первого этажа
Планировка второго этажа
Планировка второго этажа

Этот функциональный и уютный дом-баня из клееного бруса размером 7 × 10,6 метра сочетает в себе все необходимое для комфортного круглогодичного проживания и настоящего банного отдыха. Проект продуман до мелочей: на первом этаже располагается банный комплекс и общие зоны, а на втором - полноценная жилая часть.

Планировка первого этажа:

  • Кухня-столовая (12,44 м²) - светлая и просторная зона с удобной рабочей поверхностью и обеденным столом на 6 человек. Отлично подходит как для ежедневного приготовления еды, так и для приёма гостей.
  • Гостиная (10,14 м²) - уютная зона отдыха с диваном и креслом, где можно расслабиться у телевизора или в компании друзей.
  • Парная (6,02 м²) - настоящая традиционная баня с деревянными полками. Комфортная площадь позволяет с удобством разместиться нескольким людям одновременно.
  • Помывочная (4,72 м²) - просторная душевая комната с отделкой, устойчивой к влаге. Здесь можно освежиться до или после парной.
  • Санузел (2,25 м²) - отдельное помещение с унитазом и умывальником.
  • Прихожая (3,45 м²) - функциональное пространство для хранения верхней одежды и обуви.
  • Терраса (17,05 м²) - большое открытое пространство с зоной для обеда на свежем воздухе. Здесь удобно разместить стол, кресла и мангал - идеальное место для летнего отдыха.

Планировка второго этажа:

  • Спальня 1 (12,44 м²) - уютная спальня с полноценной кроватью и местом для хранения вещей.
  • Спальня 2 (12,44 м²) - аналогичная по площади комната, которую можно использовать как детскую, гостевую или вторую спальню.
  • Холл (15,96 м²) - просторное и светлое помещение, которое можно использовать как лаунж-зону, кабинет или мини-гостиную. По желанию здесь легко организовать зону хобби или установить диван для дополнительного спального места.

Преимущества проекта:

  • Полноценная парная с душевой и санузлом - прямо в доме;
  • Просторная терраса для летнего отдыха;
  • Две изолированные спальни и дополнительная лаунж-зона на втором этаже;
  • Компактные размеры дома при максимально функциональной планировке;
  • Подходит для круглогодичного проживания;
  • Возможность обустроить банный комплекс и жилую часть в одном доме - экономия места и бюджета.

Этот дом-баня идеально подойдет для семьи, которая хочет жить на природе с комфортом и не отказывать себе в удовольствии попариться в собственной бане в любое время года.

Пересвет

Габариты: 9х12 м
Площадь: 128 м²
Ссылка на проект

Проект дома-бани "Пересвет"
Проект дома-бани "Пересвет"
Планировка первого этажа
Планировка первого этажа
Планировка второго этажа
Планировка второго этажа

Этот тёплый и практичный дом-баня из клееного бруса размером 9 х 12 м спроектирован как для постоянного проживания, так и для комфортного отдыха на природе. Он сочетает уют жилого дома и преимущества настоящей бани в едином пространстве. Планировка продумана до мелочей - для жизни, приёма гостей и восстановления сил в любое время года.

Планировка первого этажа:

  • Гостиная (26,88 м²) - просторная зона с мягкой мебелью и большим обеденным столом. Здесь можно собираться всей семьей, принимать гостей и просто отдыхать. Пространство наполнено светом за счёт больших окон и объединяется со вторым светом, что визуально увеличивает объём.
  • Кухня (9,47 м²) - функциональное помещение с удобной рабочей зоной, расположенное отдельно от гостиной. Закрытая кухня - плюс для тех, кто предпочитает минимизировать запахи и поддерживать порядок в основном помещении.
  • Парная (8,09 м²) - настоящая банная парная с комфортным размещением для нескольких человек. Расположена рядом с душевой для удобства использования.
  • Душевая (7,81 м²) - с возможностью установки душевой кабины, лавок или ванной.
  • Санузел (1,50 м²) - отдельное помещение с унитазом и раковиной.
  • Холл (8,81 м²) и тамбур (2,88 м²) - обеспечивают удобный вход в дом, защищают от холода и служат связующим звеном между помещениями.
  • Терраса (12,66 м²) - отличное место для летнего отдыха, ужинов на свежем воздухе или установки гриля. Здесь можно расположить садовую мебель и наслаждаться видом.

Планировка второго этажа:

  • Две спальни по 9,5 м² - уединенные и уютные комнаты, в каждой из которых можно разместить двуспальную кровать, шкаф и прикроватные тумбы. Подойдут как для хозяев, так и для гостей или детей.
  • Холл (21,87 м²) - просторная зона второго этажа с видом на гостиную благодаря второму свету. Здесь можно обустроить лаунж-зону, рабочее место, библиотеку или мини-гостиную.

Преимущества проекта:

  • Комбинация дома и полноценной бани в одном строении;
  • Уютный второй свет с эффектом простора;
  • Две отдельные спальни и большая гостиная - комфорт для семьи;
  • Просторная терраса для отдыха на свежем воздухе;
  • Закрытая кухня, что редкость для подобных проектов;
  • Стены из клееного бруса - долговечность, тепло, экологичность;
  • Подходит для круглогодичного проживания.

Этот дом-баня из клееного бруса - идеальный выбор для тех, кто ценит комфорт, натуральные материалы и хочет совмещать жильё и банный отдых в одном проекте. Подойдёт как для загородного дома, так и для постоянного проживания.

Дмитров

Габариты: 10,7х9,5 м
Площадь: 135 м²
Ссылка на проект

Проект дома-бани "Дмитров"
Проект дома-бани "Дмитров"
Планировка первого этажа
Планировка первого этажа
Планировка второго этажа
Планировка второго этажа

Этот просторный и продуманный до мелочей дом-баня из клееного бруса размером 10,7 × 9,5 метра идеально подойдет как для круглогодичного проживания, так и для комфортного отдыха в кругу семьи и друзей. Проект сочетает в себе тёплый жилой дом и полноценный банный комплекс, включая зону релакса, парную и большую террасу.

Планировка первого этажа:

  • Комната отдыха (17,17 м²) - уютное помещение с диваном и столом для отдыха после бани. Отсюда удобно попасть как в парную, так и на террасу.
  • Парная (5,94 м²) - настоящая баня с деревянными полками, подходит для нескольких человек. Примыкает к душевой и комнате отдыха.
  • Душевая (3,91 м²) - светлая и просторная моечная зона с двумя душами, для удобства всех членов семьи и гостей.
  • Предбанник (5,40 м²) - буферная зона перед входом в банный блок, сохраняет тепло и создает дополнительный комфорт.
  • Спальня (10,84 м²) - отдельная уютная комната на первом этаже, отлично подойдёт для пожилых членов семьи или как гостевая.
  • Терраса (31,09 м²) - огромная открытая площадка для летнего отдыха с возможностью установить обеденную группу, зону барбекю или шезлонги.
  • Холл (6,08 м²) и тамбур (2,25 м²) - обеспечивают грамотную навигацию по дому и защищают внутренние помещения от сквозняков.
  • Санузел (1,73 м²) - отдельный туалет рядом с входом и гостевыми зонами.

Планировка второго этажа:

  • Две спальни (10,85 м² / 13,40 м²) - комфортные отдельные комнаты для семьи и гостей. В каждой легко разместить полноценную кровать и мебель для хранения вещей.
  • Холл (2,05 м²) - соединяет все помещения второго этажа.
  • Санузел (4,24 м²) - полноценный второй санузел для удобства на этаже со спальнями.
  • Бильярдная (20,45 м²) - просторная зона досуга с большим игровым столом. Здесь можно организовать также зону отдыха, бар или кабинет.

Преимущества проекта:

  • Полноценный банный комплекс (парная, душевая, предбанник и комната отдыха);
  • Три спальни - комфорт для большой семьи;
  • Просторная терраса для уличного отдыха и летних мероприятий;
  • Бильярдная на втором этаже - отличное пространство для хобби и приёма гостей;
  • Дом из клееного бруса - экологичен, надежен и пригоден для зимнего проживания;
  • Совмещение дома и бани в одном проекте - экономия на строительстве и максимальное удобство.

Этот дом-баня из клееного бруса - идеальное решение для тех, кто хочет совместить повседневную жизнь с атмосферой отдыха на природе. Подходит как для загородного участка, так и как основное жилье.

Одинцово

Габариты: 12х10,5 м
Площадь: 166 м²
Ссылка на проект

Проект дома-бани "Одинцово"
Проект дома-бани "Одинцово"
Планировка первого этажа
Планировка первого этажа
Планировка второго этажа
Планировка второго этажа

Этот просторный дом-баня из клееного бруса размером 12х10,5 идеально подойдет для загородной жизни большой семьи или приема гостей в любое время года. Он сочетает в себе функции полноценного жилого дома и настоящей бани с парной, душевой и зоной отдыха. Прекрасно подойдёт для тех, кто хочет жить в тишине и комфорте, не отказываясь от удовольствия расслабиться в собственной бане.

Планировка первого этажа:

  • Гостиная (21,26 м²) - просторная центральная зона для отдыха всей семьей. Здесь можно разместить диванную группу и телевизор, а большие окна обеспечат свет и уют.
  • Кухня (9,92 м²) - отдельное помещение с рабочей зоной.
  • Терраса (19,30 м²) - отличное место для летнего отдыха, ужинов на открытом воздухе, размещения мангала или зоны отдыха.
  • Парная (3,35 м²) - настоящая баня в доме! Небольшая, но функциональная, с удобным доступом из душевой.
  • Душевая (4,95 м²) - просторная с возможностью установки душевой кабины или ванны.
  • Спальня (7,84 м²) - отдельная комната на первом этаже, идеальна как гостиная или спальня для пожилых членов семьи.
  • Холл (12,06 м²) - соединяет все основные помещения, создавая удобную логистику по дому.
  • Санузел (2,38 м²) - отдельный туалет с умывальником.
  • Котельная (4,58 м²) - техническое помещение для отопительного оборудования, позволяет использовать дом круглый год.
  • Тамбуры и два крыла входа (по 2,34–3,52 м²) - обеспечивают защиту от холода и грязи, добавляя удобства и практичности.

Планировка второго этажа:

  • Две большие спальни (по 24,80 м²) - просторные, светлые комнаты, каждая из которых может стать мастер-спальней с рабочей зоной, гардеробом или уголком для отдыха.
  • Гардероб (4,66 м²) - отдельное помещение для хранения одежды и текстиля, освобождает жилые комнаты от лишней мебели.
  • Холл (9,70 м²) - соединяет помещения и может использоваться как рабочая зона или мини-гостиная.
  • Балкон (6,24 м²) - уютное место для утреннего кофе или вечернего отдыха на свежем воздухе.

Преимущества проекта:

  • Полноценная баня в доме: парная, душевая, зона отдыха;
  • Просторные жилые комнаты - на выбор 3 спальни, включая две мастер-спальни;
  • Большая терраса и балкон - максимум отдыха на открытом воздухе;
  • Котельная и два входа - дом идеально адаптирован для зимнего проживания;
  • Идеальный вариант для семьи, ценящей комфорт, здоровье и отдых.

Это не просто дача или временное жильё - это настоящий тёплый и уютный дом с баней, в котором можно жить круглый год, наслаждаясь комфортом, природой и качеством натурального клееного бруса.

Миндел

Габариты: 10х14,6 м
Площадь: 182 м²
Ссылка на проект

Проект дома-бани "Миндел"
Проект дома-бани "Миндел"
Планировка первого этажа
Планировка первого этажа
Планировка второго этажа
Планировка второго этажа

Этот стильный и просторный дом-баня из клееного бруса размером 14,6 × 10 метров создан для комфортной загородной жизни и полноценного отдыха. Он сочетает в себе все преимущества современного жилья и настоящей русской бани, обеспечивая уют, функциональность и эстетическое удовольствие в любое время года.

Планировка первого этажа:

  • Гостиная (31,26 м²) - просторное сердце дома с зоной отдыха и мягкой мебелью. Здесь удобно собираться всей семьёй, смотреть кино или проводить вечера у камина.
  • Кухня-столовая (11,08 м²) - объединена с гостиной, но грамотно зонирована. Полноценная рабочая поверхность и обеденный стол на 6 персон создают идеальное пространство для приема пищи и общения.
  • Спальни (11,83 м² и 8,33 м²) - уютные и светлые комнаты с двуспальными кроватями, подойдут для взрослых, детей или гостей.
  • Санузел (1,74 м²) - отдельный туалет рядом со спальнями для удобства в ночное время.
  • Парная (5,31 м²) - настоящая домашняя баня с деревянной отделкой, рассчитанная на несколько человек;
  • Душевая (3,86 м²) - расположена рядом с парной, позволяет удобно охладиться после банных процедур;
  • Прачечная/техническое помещение (7,29 м²) - практичное место для стиральной машины и хозяйственного хранения.
  • Терраса (22,89 м²) - просторное место для летнего отдыха, обедов на свежем воздухе или вечерних посиделок.
  • Крыльцо (5,24 м² и 5,77 м²) - два входа с уличными зонами обеспечивают удобство при любой планировке участка.

Планировка второго этажа:

  • Второй свет + лаунж-зона (64,36 м²) - огромная открытая зона с двумя уголками для отдыха.
  • Санузел (2,01 м²) - дополнительный туалет на втором этаже обеспечивает комфорт при ночном размещении на этаже.

Преимущества проекта:

  • Полноценная баня в доме - парная, душевая и зона отдыха в едином пространстве;
  • Четыре жилые зоны - две спальни на первом и одна спальня на втором, плюс гибкая зона на втором этаже;
  • Огромный второй свет и лаунж-зона - добавляют объёма, воздуха и престижности дому;
  • Большая терраса и два крыльца - максимум функциональности для теплого сезона;
  • Натуральный клееный брус - прочный, теплый и долговечный материал, обеспечивающий отличный микроклимат.

Этот дом-баня из клееного бруса - идеальное сочетание загородного уюта и функциональности для жизни. Он подойдёт как для семьи, так и для приёма гостей на даче, в усадьбе или на базе отдыха.