Добавить в корзинуПозвонить
Найти в Дзене
DIVAN.RU

76 кв.м: лаконичная светлая трёшка в стиле контемпорари

В этой трехкомнатной квартире все устроено удобно и рационально. Максимум свободного пространства, светлые стены, цветные и черные графичные акценты — дизайнер Наталья Трифонова оформила интерьер в стиле контемпорари. Объект: трехкомнатная квартира, 76 кв.м в г. Санкт-Петербург Автор проекта: дизайнер Наталья Трифонова От объединения кухни с гостиной пришлось отказаться: стена между комнатами оказалась несущей. Немного увеличить площадь помог демонтаж перегородки между кухней и просторным коридором. Для постирочной нашли место в прихожей — она соседствует с ванной и туалетом. В спальне выстроили перегородку из гипсокартона, отделив таким образом гардеробную. После перепланировки кухня стала своего рода нишей в широком длинном коридоре. Гарнитур выбрали угловой. Верхние шкафы расположили только на торцевой стене таким образом, чтобы мебель со входа не читалась. Кухня сдержанная, с нейтральным, практически монохромным фоном. Акцентами стали фартук из светло-серого керамогранита, столешни
Оглавление

В этой трехкомнатной квартире все устроено удобно и рационально. Максимум свободного пространства, светлые стены, цветные и черные графичные акценты — дизайнер Наталья Трифонова оформила интерьер в стиле контемпорари.

Проект дизайнера Натальи Трифоновой, автор фото Мария Дмитриева
Проект дизайнера Натальи Трифоновой, автор фото Мария Дмитриева

Объект: трехкомнатная квартира, 76 кв.м в г. Санкт-Петербург

Автор проекта: дизайнер Наталья Трифонова

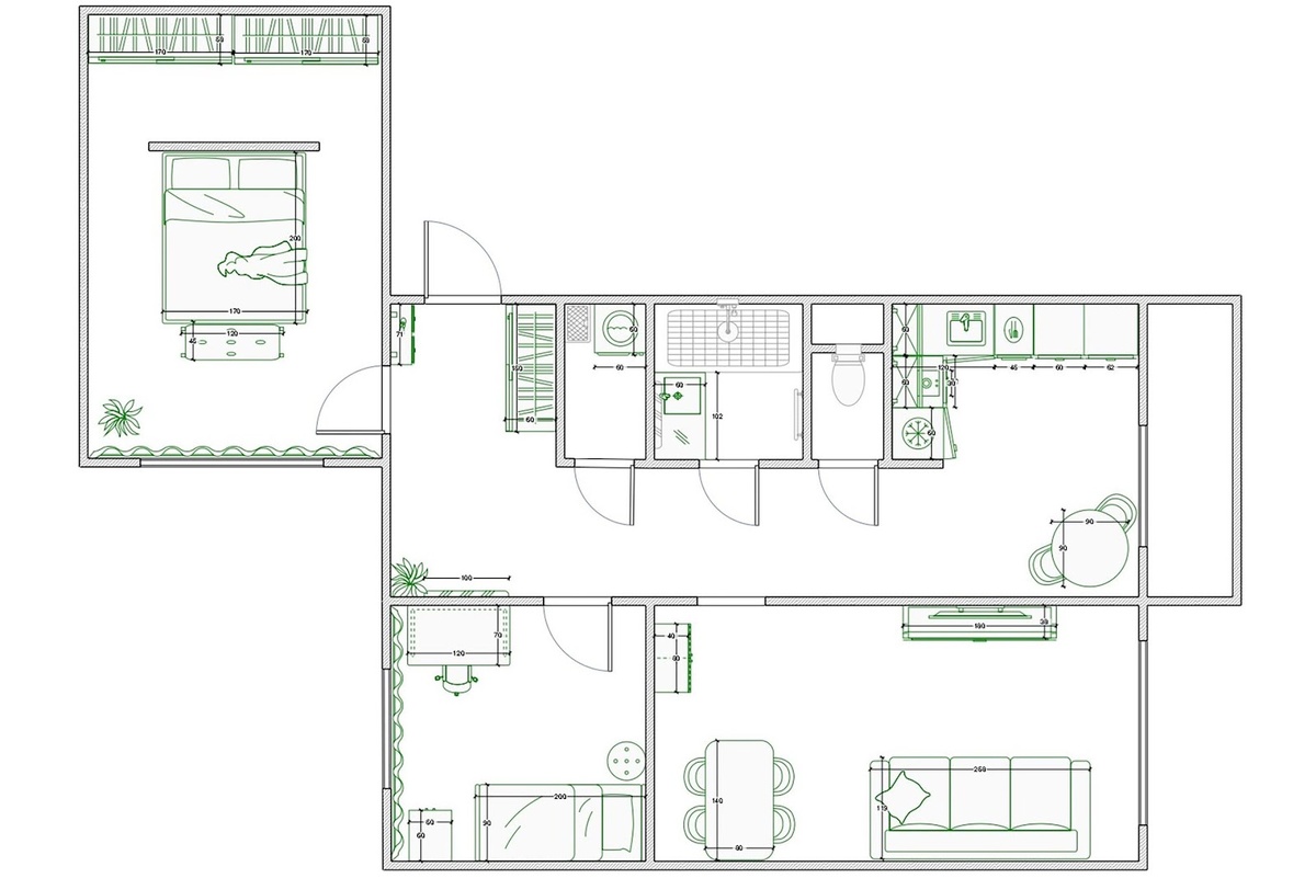
Планировочное решение

От объединения кухни с гостиной пришлось отказаться: стена между комнатами оказалась несущей. Немного увеличить площадь помог демонтаж перегородки между кухней и просторным коридором.

Для постирочной нашли место в прихожей — она соседствует с ванной и туалетом. В спальне выстроили перегородку из гипсокартона, отделив таким образом гардеробную.

Планировочное решение и расстановка мебели
Планировочное решение и расстановка мебели

Кухня

После перепланировки кухня стала своего рода нишей в широком длинном коридоре.

Гарнитур выбрали угловой. Верхние шкафы расположили только на торцевой стене таким образом, чтобы мебель со входа не читалась.

Кухня сдержанная, с нейтральным, практически монохромным фоном. Акцентами стали фартук из светло-серого керамогранита, столешница, фурнитура и два черных бра над рабочей поверхностью.

Черная рама панорамного окна гармонирует с откосами дверей в прихожей. Она как бы отодвигает стену, делая помещение визуально больше.

Темная столовая группа поддерживает «черную» тему, которую задала оконная рама и столешница кухонного гарнитура. Характерная деталь – обивка для стульев выбрана фактурная, мягкая. Остальные поверхности гладкие, матовые.

Гостиная

Мебель в гостиной выполнена в нейтральном цвете, она простая и лаконичная, с четкими линиями и простыми формами. Фокусной точкой стал диван Виена от бренда divan.ru. Благодаря низкой спинке и округлым подлокотникам массивный диван не «утяжеляет» комнату.

➡️В кадре диван Виена Bucle Silver от бренда divan.ru >>

Так как в гостиной планируется принимать гостей, здесь предусмотрели обеденную зону. Она дублирует столовую группу, расположенную в кухне — у них одинаковая цветовая гамма.

Спальня

Комната имеет вытянутую форму, поэтому треть пространства спокойно «забрали» под гардероб. Его отделили перегородкой из гипсокартона, оставив свободный проход между функциональными зонами.

На фоне светлой отделки кровать Маркфул от divan.ru в изумрудном велюре работает как акцент. Вертикальная строчка обивки рифмуется с фрезеровкой на декоративном пьедестале около окна. «Прохладу» нейтральной отделки разбавили ярким текстилем и орнаментом на подушках.

➡️В кадре кровать Маркфул 140 Velvet Emerald от divan.ru >>

💥 Эту кровать сейчас можно купить со скидкой до 10 000₽.* Выбирайте мебель и интерьерные аксессуары по выгодным ценам на divan.ru >>

-11

Детская

По отделке и цветовому оформлению комната не отличается от остальных помещений. Здесь есть раскладной серый диван, шкаф с зеркальной дверью, рабочий стол и стул-кресло.

Рабочий стол с фрезеровкой, кресло и декоративная полка с ротанговой вставкой подчеркнули стилистику контемпорари, где приветствуется сочетание разных фактур.

Прихожая

В этой части квартиры много света и открытого пространства. Белая прихожая с контрастными деталями черных и коричневых тонов смотрится свежо и стильно. Здесь предусмотрели только самое необходимое — распашной шкаф и напольное зеркало.

В прихожей нашли место для постирочной — она соседствует с санузлом. Здесь установили стиральную машину и предусмотрели несколько полок для хранения под разные нужды.

Проект дизайнера Натальи Трифоновой, автор фото Мария Дмитриева
Проект дизайнера Натальи Трифоновой, автор фото Мария Дмитриева

Ванная и туалет

Ванную оформили фактурами дерева и мрамора. Душевую отделили с помощью стеклянной перегородки с графичным черным профилем. В туалете пол и нижнюю часть стен оформили одинаковым керамогранитом — так маленькое пространство кажется объемнее.

==========

Оцените интерьер в комментариях, а если материал понравился — не забудьте поставить лайк👍

🖤divan.ru — не только блог про интерьеры, но и производитель доступной дизайнерской мебели. Ищите новые идеи и переходите на сайт, чтобы воплотить их в жизнь.

*Цены актуальны на момент публикации статьи