Найти в Дзене

Бесщёточные синхронные генераторы: устройство и особенности эксплуатации

Бесщёточные синхронные генераторы широко применяются в энергетике, судовых установках, резервных электростанциях и других областях, где требуется высокая надёжность и минимальное обслуживание. Их ключевое преимущество – отсутствие щёточно-контактного узла, что повышает долговечность и снижает потери. В данной статье рассмотрены: Основные компоненты генератора (см. рис. 1.1): Ключевые особенности конструкции: ✔ Отсутствие щёток и контактных колец – ток возбуждения передаётся через вращающийся выпрямитель.
✔ Компактная компоновка – генератор, возбудитель и выпрямитель собраны в единый агрегат.
✔ Защитные элементы – сглаживающий конденсатор и разрядный резистор предотвращают пробой обмотки. ✅ Отсутствие износа щёток → меньше обслуживания.
✅ Высокий КПД благодаря минимизации потерь.
✅ Устойчивость к вибрациям и загрязнению. ⚠ Частота вращения – не должна опускаться ниже 50 Гц при полной нагрузке, иначе: Бесщёточные синхронные генераторы с возбуждением от обращённого возбудителя – надёжное
Оглавление

Бесщёточные синхронные генераторы широко применяются в энергетике, судовых установках, резервных электростанциях и других областях, где требуется высокая надёжность и минимальное обслуживание. Их ключевое преимущество – отсутствие щёточно-контактного узла, что повышает долговечность и снижает потери.

В данной статье рассмотрены:

  • устройство бесщёточного генератора;
  • принцип работы системы возбуждения;
  • особенности конструкции и эксплуатации.

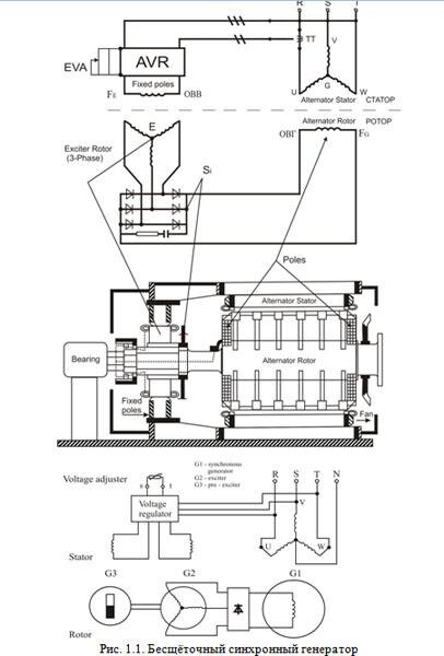
1. Устройство бесщёточного синхронного генератора

Основные компоненты генератора (см. рис. 1.1):

  • G – статорная обмотка (выходная, трёхфазная, соединённая "звездой");
  • FG – роторная обмотка возбуждения генератора;
  • Si – блок вращающихся кремниевых выпрямителей (трёхфазный мостовой схемы);
  • E – роторная обмотка возбудителя (трёхфазная, соединённая "звездой");
  • FE – статорная обмотка возбуждения возбудителя;
  • AVR – автоматический регулятор напряжения;
  • EVA – внешний реостат (опционально).

Ключевые особенности конструкции:

✔ Отсутствие щёток и контактных колец – ток возбуждения передаётся через вращающийся выпрямитель.
✔ Компактная компоновка – генератор, возбудитель и выпрямитель собраны в единый агрегат.
✔ Защитные элементы – сглаживающий конденсатор и разрядный резистор предотвращают пробой обмотки.

2. Принцип работы системы возбуждения

2.1. Формирование тока возбуждения

  1. AVR подаёт постоянный ток на FE (обмотку возбуждения возбудителя).
  2. При вращении ротора в E (трёхфазной обмотке возбудителя) индуцируется переменный ток.
  3. Si (вращающийся выпрямитель) преобразует переменный ток в постоянный и подаёт его на FG (обмотку возбуждения генератора).
  4. Магнитное поле ротора генератора наводит ЭДС в статорной обмотке G.

2.2. Роль автоматического регулятора напряжения (AVR)

  • Поддерживает стабильное выходное напряжение при изменении нагрузки.
  • Обеспечивает защиту от перегрузок и коротких замыканий.
  • В некоторых системах имеет двухсекционную обмотку (FE) для улучшения начального возбуждения.

3. Преимущества и эксплуатационные ограничения

3.1. Преимущества бесщёточной схемы

✅ Отсутствие износа щёток → меньше обслуживания.
✅ Высокий КПД благодаря минимизации потерь.
✅ Устойчивость к вибрациям и загрязнению.

3.2. Важные ограничения

Частота вращения – не должна опускаться ниже 50 Гц при полной нагрузке, иначе:

  • перегрев возбудителя и выпрямителя;
  • риск выхода из строя AVR.
    Охлаждение – вращающиеся диоды требуют хорошего воздушного обдува.

4. Заключение

Бесщёточные синхронные генераторы с возбуждением от обращённого возбудителя – надёжное решение для систем, где важна долговечность и минимальное обслуживание. Их работа основана на преобразовании энергии через вращающийся выпрямитель, а стабильность напряжения обеспечивается автоматическим регулятором.

Для корректной эксплуатации необходимо контролировать частоту вращения и температурный режим, особенно при высоких нагрузках.

Важно! Не пытайтесь ремонтировать генератор самостоятельно – это может привести к дальнейшим повреждениям. Доверьтесь профессионалам!