Добавить в корзинуПозвонить
Найти в Дзене

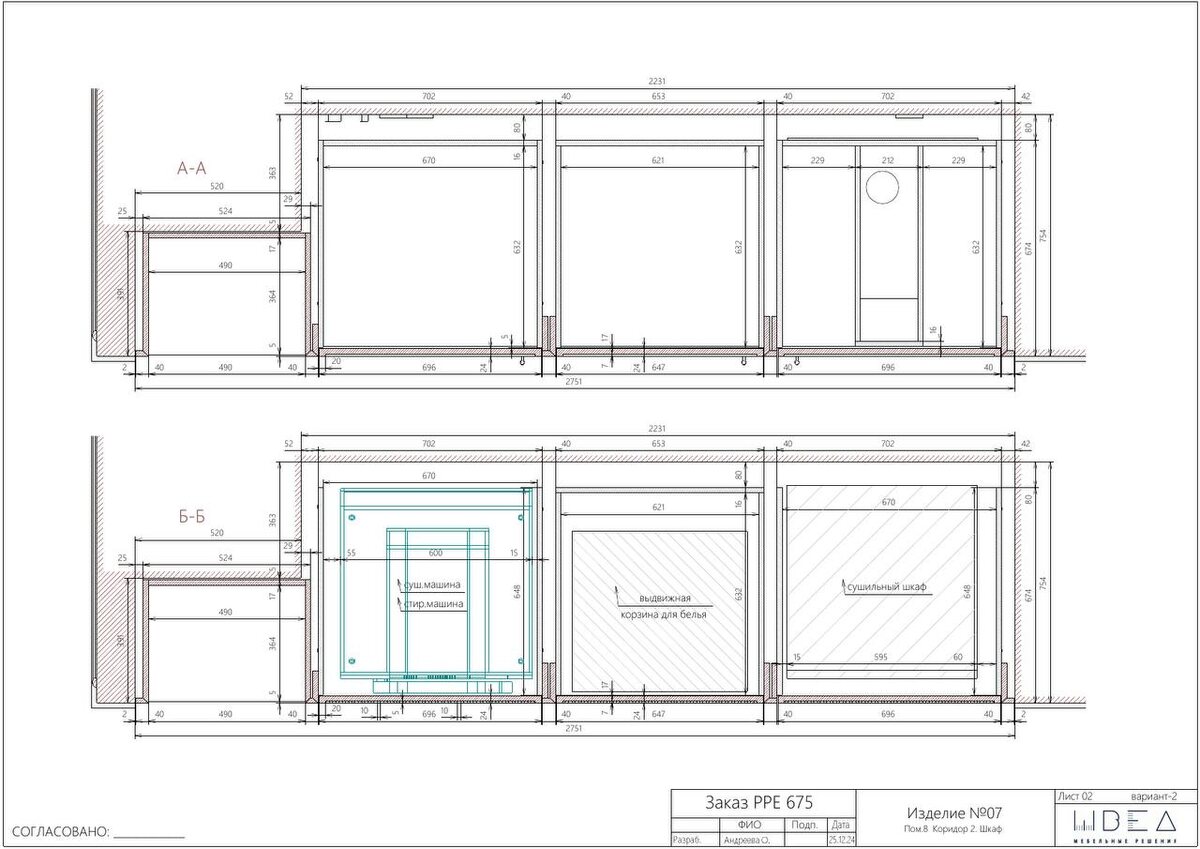
Комплект чертежей шкафа в прихожую с интегрированной постирочной

Комплект чертежей шкафа в прихожую с интегрированной постирочной ▫️Фасады из МДФ со штапиком, шпонированные изысканным шпоном дуба и покрытые морилкой, защищающей древесину и подчеркивающей ее натуральную текстуру. ▫️В шкафу мы предусмотрели открытые полки для удобного хранения небольших вещей. ▫️Одна из ключевых особенностей данного шкафа — встроенный сушильный шкаф с подключением к вытяжке. ▫️Внутри — полки для одежды и корзина для белья. ▫️Мы также создали внутри шкафа место под стиральную и сушильную машину. Этот проект — идеальный пример того, как продуманные инженерные решения могут сочетаться с элегантным дизайном, создавая пространство, где каждая деталь является воплощением комфорта и практичности.

Комплект чертежей шкафа в прихожую с интегрированной постирочной

▫️Фасады из МДФ со штапиком, шпонированные изысканным шпоном дуба и покрытые морилкой, защищающей древесину и подчеркивающей ее натуральную текстуру.

▫️В шкафу мы предусмотрели открытые полки для удобного хранения небольших вещей.

▫️Одна из ключевых особенностей данного шкафа — встроенный сушильный шкаф с подключением к вытяжке.

▫️Внутри — полки для одежды и корзина для белья.

▫️Мы также создали внутри шкафа место под стиральную и сушильную машину.

Этот проект — идеальный пример того, как продуманные инженерные решения могут сочетаться с элегантным дизайном, создавая пространство, где каждая деталь является воплощением комфорта и практичности.

-2
-3
-4
-5
-6
-7