Добавить в корзинуПозвонить
Найти в Дзене

Лучший одноэтажный дом для семьи в 2026 году ?

МИКЕЯ 5 Реплика - это современный проект одноэтажного дома с общей площадью 205м² из которых жилая площадь составляет 134м² давайте разберемся, благодаря чему этот дом идеален? Посмотреть проект на сайте Кухня-гостиная площадью 45 м² с вторым светом — сердце дома. Здесь легко представить семейный ужин под звуки мягкой музыки, детский смех или тёплый вечер с друзьями. Особенно приятно то, что из гостиной есть два выхода на террасу, и это по-настоящему удобно: летом — завтрак на свежем воздухе, зимой — быстрый доступ к мангальной зоне, не проходя через весь дом. А теперь представьте: на террасе мягкая мебель, теплое освещение, любимый мужчина готовит ароматный шашлык, а рядом — проектор, который вечером превращает вашу зону отдыха в настоящий open-air кинотеатр. В таком доме, мечты становятся реальностью. Рядом с кухней предусмотрен выход в кладовую, где можно установить большую морозильную камеру — идеально для тех, кто делает запасы, закупается впрок или хранит домашнюю консервацию. Пр
Оглавление

МИКЕЯ 5 Реплика - это современный проект одноэтажного дома с общей площадью 205м² из которых жилая площадь составляет 134м² давайте разберемся, благодаря чему этот дом идеален?

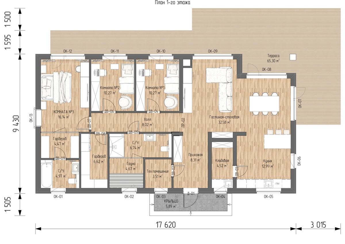
Проект одноэтажного дома МИКЕЯ 5 реплика
Проект одноэтажного дома МИКЕЯ 5 реплика

Посмотреть проект на сайте

Простор, свет и гармония

Кухня-гостиная площадью 45 м² с вторым светом — сердце дома. Здесь легко представить семейный ужин под звуки мягкой музыки, детский смех или тёплый вечер с друзьями. Особенно приятно то, что из гостиной есть два выхода на террасу, и это по-настоящему удобно: летом — завтрак на свежем воздухе, зимой — быстрый доступ к мангальной зоне, не проходя через весь дом.

А теперь представьте: на террасе мягкая мебель, теплое освещение, любимый мужчина готовит ароматный шашлык, а рядом — проектор, который вечером превращает вашу зону отдыха в настоящий open-air кинотеатр. В таком доме, мечты становятся реальностью.

Зона террасы
Зона террасы

Умный быт и комфорт

Рядом с кухней предусмотрен выход в кладовую, где можно установить большую морозильную камеру — идеально для тех, кто делает запасы, закупается впрок или хранит домашнюю консервацию. Продуманная система хранения избавит вас от беспорядка на кухне.

Два гардероба и кладовая позволят скрыть всё лишнее — от сезонной одежды до инструментов и бытовых мелочей.

-4

Посмотреть проект на сайте

Уют круглый год

Дом построен из газобетона, а это значит — он "дышит", сохраняет тепло зимой и даёт прохладу летом. А благодаря дополнительному утеплению вы сэкономите на отоплении и кондиционировании.

А если вы хотите максимум тишины и уединения — предусмотрена возможность усиленной шумоизоляции, например, в спальнях или в зоне домашнего кабинета.

-5

Сауна — как символ статуса и уюта

В доме предусмотрено место для сауны, и вы сами выбираете, будет ли она на дровах (для ценителей настоящего жара и аромата древесины) или электрическая — для тех, кто ценит комфорт и технологичность. Отдохнуть, восстановиться после работы или удивить гостей — всё это возможно, не выходя из дома.

-6

Продуман до мелочей

🛌 Три спальни

🛁 Два полноценных санузла

🛠️ Хозяйственные помещения

🌳 Терраса и мангальная зона

🎥 Нереальная домашняя атмосфера

Стоимость и комплектация

В Ленинградской области, на начало 2025 года, строительство такого дома компанией Строй Город в комплектации «Тёплый контур» обойдётся от 7,7 млн рублей.

В эту стоимость уже включены: фундамент, стены из газобетона, кровля, окна, входные двери.

Это надёжная база для дальнейшей отделки и реализации всех ваших интерьерных идей.

🎯 Получите подробную смету и бесплатную консультацию — просто оставьте заявку на нашем сайте. "Нажмите, чтобы перейти на сайт"

----------------------------------------------------------------------------------------------

📘 В следующих статьях мы расскажем:

  • Как контролировать стройку и не сойти с ума.
  • Почему газобетон — это надолго.
  • Какие ошибки чаще всего совершают при выборе проекта.
  • Как не переплатить за «индивидуальность», получив её в стандартном решении.

📩 Подписывайтесь, чтобы не пропустить — и сделайте шаг к своему дому, где всё на своих местах.