Найти в Дзене
GREY HOUSE

Приглашаем на просмотр дома 2 и 3 мая

Сдали каркасный дом по проекту Химос 2 с 3-мя спальнями. Строительство велось с привлечением льготной ипотеки по эскроу счету. Адрес: д. Новинское, Наро-Фоминский район, Московская обл. (Запись на просмотр обязательна) Размер: 8,5×15 м | Площадь теплоконтура: 84 м² | Высота потолков: 2,5–3,4 м Планировка дома изменена по желанию клиентов. Появилась дополнительная спальня. Владелец дома планирует отапливать дом электрическими конвекторами, технический шкаф будет располагаться за туалетом в маленьком с/у. Изменение планировки под себя - бесплатно! 1. Бригады: постоянные, история строительства (фотоотчеты), можно выбрать понравившуюся бригаду, можно посетить строящиеся объекты, почитать отзывы клиентов 2. Документация: детальная смета, чертежи дома в соответствии с нормами, разработанные конструктором 3. Премиальное качество и разумная цена Стоимость дома - https://grey-house.ru/object/novinskoe/ ***
Все новости читайте в нашем телеграм-канале Подписывайтесь на нашу группу Вконтакте И, к
Оглавление

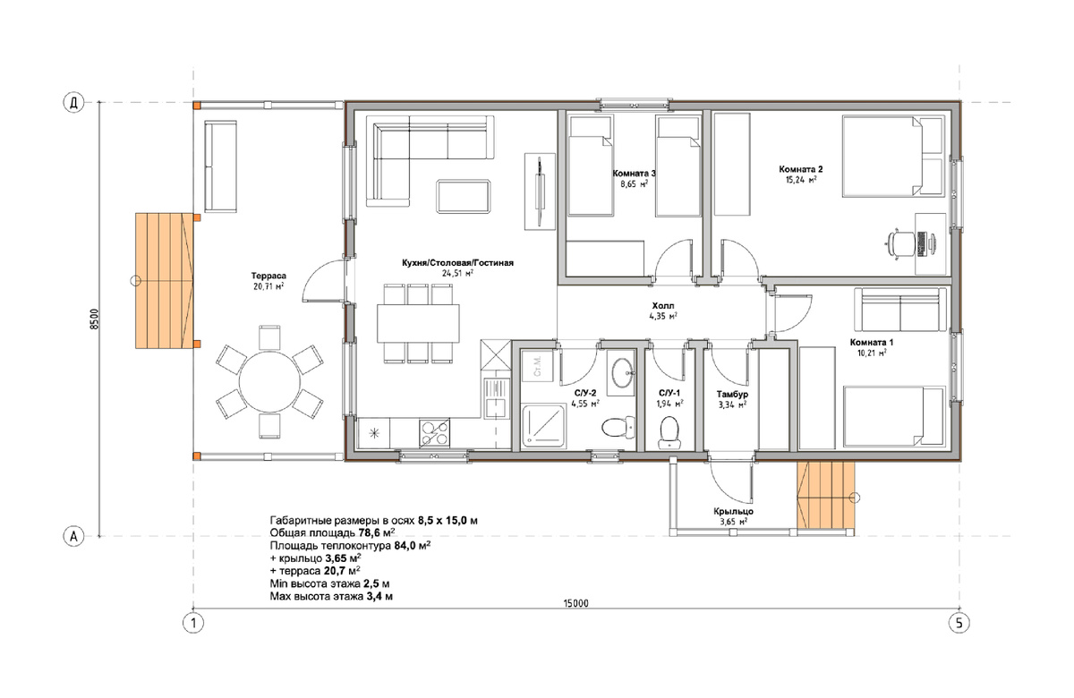
Сдали каркасный дом по проекту Химос 2 с 3-мя спальнями. Строительство велось с привлечением льготной ипотеки по эскроу счету.

Адрес: д. Новинское, Наро-Фоминский район, Московская обл. (Запись на просмотр обязательна)

Размер: 8,5×15 м | Площадь теплоконтура: 84 м² | Высота потолков: 2,5–3,4 м

Планировка дома

Планировка дома изменена по желанию клиентов. Появилась дополнительная спальня. Владелец дома планирует отапливать дом электрическими конвекторами, технический шкаф будет располагаться за туалетом в маленьком с/у. Изменение планировки под себя - бесплатно!

Планировка дома Химос 2 с 3-мя спальнями
Планировка дома Химос 2 с 3-мя спальнями

Визуализация дома

Фотографии готового дома

Каркасный дом Химос
Каркасный дом Химос
Каркасный дом Химос
Каркасный дом Химос
Каркасный дом Химос
Каркасный дом Химос
Каркасный дом Химос
Каркасный дом Химос
Каркасный дом Химос
Каркасный дом Химос
Каркасный дом Химос
Каркасный дом Химос
Каркасный дом Химос
Каркасный дом Химос
Каркасный дом Химос
Каркасный дом Химос
Каркасный дом Химос
Каркасный дом Химос
Каркасный дом Химос
Каркасный дом Химос
Каркасный дом Химос
Каркасный дом Химос
Каркасный дом Химос
Каркасный дом Химос

Комплектация дома:

  • Фундамент - Железобетонные сваи 150х150х4000мм
  • Защитная сетка от грызунов
  • Каркас дома сухой строганный 45х195мм
  • Ветрозащита JUTAVEK 115
  • Пароизоляция Ютафол Н110+скотч Delta
  • Кровля - металлочерепица GrandLine 0,45 мм PE
  • Отделка снаружи - скандинавския доска с заводской покраской
  • Утепление Технониколь Роклайт - пол и кровля и наружние стены - 200 мм, перегородки 100 мм
  • Внутренняя отделка: стены и потолок имитация бруса 16 мм «АБ», пол - ОСП 22 мм
  • Отделка пола на террасе лиственницей толщиной 28мм
  • Кровля - Металлочерепица толщиной 0,45мм
  • Окна и входная дверь ПВХ толщиной 70мм
  • Ступени с поручнем
  • Снегозадержатели
  • Водосточная система
  • Электрика скрытая проводка 80 точек
  • Вентиляционный выход на кровлю

Наши преимущества:

1. Бригады: постоянные, история строительства (фотоотчеты), можно выбрать понравившуюся бригаду, можно посетить строящиеся объекты, почитать отзывы клиентов

2. Документация: детальная смета, чертежи дома в соответствии с нормами, разработанные конструктором

3. Премиальное качество и разумная цена

Стоимость дома - https://grey-house.ru/object/novinskoe/

***
Все новости читайте в нашем телеграм-канале

Подписывайтесь на нашу группу Вконтакте

И, конечно же, подписывайтесь на нас в «Дзене»

Наши контакты:
Телефон:
8-495-504-71-33
mail@grey-house.ru
Сайт:
grey-house.ru