Добавить в корзинуПозвонить
Найти в Дзене

Топ 8 самых популярных проектов больших бань

Мы собрали 8 самых популярных проектов больших бань от нашей компании — их выбирают те, кто ценит простор, комфорт и возможность собираться в бане большой компанией или всей семьей. Такие бани подходят не только для отдыха, но и для приема гостей круглый год. Габариты: 7х7,5 м
Площадь: 48 м²
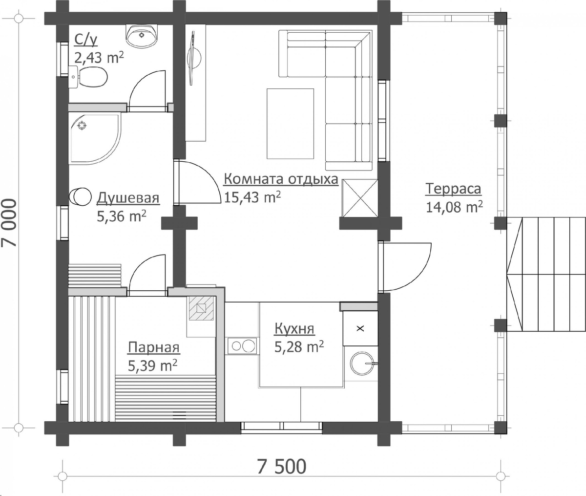
Ссылка на проект Эта уютная и функциональная баня из бруса площадью 7,5 на 7 метров создана для настоящего расслабления и уединения. Внутреннее пространство грамотно зонировано, а большая терраса станет дополнительным местом отдыха на свежем воздухе. Планировка: Преимущества проекта: Этот проект прекрасно подойдёт для загородного участка или дачи — и как баня, и как уютное место для вечеров в кругу семьи и друзей. Габариты: 6,5х9,5 м
Площадь: 57 м²
Ссылка на проект Эта баня из бруса — идеальное решение для тех, кто ценит комфорт, функциональность и уютную атмосферу. Просторная планировка площадью более 60 м² включает всё необходимое не только для банных процедур, но и для полноценного отдыха с семь
Оглавление

Мы собрали 8 самых популярных проектов больших бань от нашей компании — их выбирают те, кто ценит простор, комфорт и возможность собираться в бане большой компанией или всей семьей. Такие бани подходят не только для отдыха, но и для приема гостей круглый год.

Берендей

Габариты: 7х7,5 м
Площадь: 48 м²
Ссылка на проект

Проект бани "Берендей"
Проект бани "Берендей"
Планировка
Планировка

Эта уютная и функциональная баня из бруса площадью 7,5 на 7 метров создана для настоящего расслабления и уединения. Внутреннее пространство грамотно зонировано, а большая терраса станет дополнительным местом отдыха на свежем воздухе.

Планировка:

  • Терраса 14,08 м² — просторное открытое пространство у входа, идеально подходящее для летнего отдыха. Здесь можно поставить стол с креслами, шезлонги или подвесное кресло.
  • Комната отдыха 15,43 м² — сердце бани, просторное и светлое помещение с удобным диваном и столом. Отличное место для чаепитий, бесед с друзьями или тихого отдыха после парной.
  • Кухня 5,28 м² — компактная, но функциональная. Оснащена всем необходимым для приготовления еды и напитков.
  • Парная 5,39 м² — просторная и удобная. Позволяет с комфортом париться компании из 3–4 человек. Установлена печь, предусмотрена система вентиляции.
  • Душевая 5,36 м² — отдельное помещение с душевой кабиной и раковиной. Отлично подходит как для обливания после парной, так и для ежедневного пользования.
  • Санузел (с/у) 2,43 м² — отдельная комната с унитазом и раковиной.

Преимущества проекта:

  • Большая терраса для отдыха на открытом воздухе;
  • Большая комната отдыха;
  • Наличие кухни, что делает баню универсальной для длительного пребывания;
  • Полноценный санузел и душевая, позволяющие использовать баню как гостевой домик.

Этот проект прекрасно подойдёт для загородного участка или дачи — и как баня, и как уютное место для вечеров в кругу семьи и друзей.

Вереск

Габариты: 6,5х9,5 м
Площадь: 57 м²
Ссылка на проект

Проект бани "Вереск"
Проект бани "Вереск"
Планировка
Планировка

Эта баня из бруса — идеальное решение для тех, кто ценит комфорт, функциональность и уютную атмосферу. Просторная планировка площадью более 60 м² включает всё необходимое не только для банных процедур, но и для полноценного отдыха с семьей или друзьями.

Планировка:

  • Терраса 13,2 м² — просторная открытая площадка у входа — отличное место для летнего отдыха, чаепитий на свежем воздухе или размещения шезлонгов и садовой мебели.
  • Тамбур 5,3 м² — удобный тамбур защищает основное помещение от холода и грязи, особенно в межсезонье. Здесь можно установить вешалку или шкаф для хранения одежды и обуви.
  • Холл 3,7 м² — связывает основные помещения.
  • Санузел 3,0 м² — полноценное помещение с унитазом и раковиной для комфортного использования бани в любое время года.
  • Душевая 5,7 м² — просторная зона для водных процедур после парной. Возможно размещение душевой кабины или обливного ведра.
  • Парная 6,9 м² — Рассчитана на 3–4 человек.
  • Комната отдыха 19,2 м² — просторная и уютная гостиная с диваном, столом и кухонной зоной. Идеальное место для расслабления после парной или душа. При желании можно использовать как гостевую комнату.

Преимущества:

  • Удачное зонирование и продуманная эргономика;
  • Большая терраса и полноценная комната отдыха;
  • Отдельная душевая и санузел;

Такой проект идеально подойдет для загородного участка: как для отдыха выходного дня, так и для приёма гостей.

Полесье

Габариты: 7,7х10,2 м
Площадь: 68,6 м²
Ссылка на проект

Проект бани "Польесье"
Проект бани "Польесье"
Планировка
Планировка

Эта баня из бруса — настоящий мини-дом для отдыха на природе. Благодаря удачной планировке и просторным помещениям, она подойдёт как для приватного расслабления, так и для приёма гостей.

Планировка:

  • Терраса 21,2 м² — просторная открытая зона перед входом в баню — отличное место для отдыха летом. Здесь можно поставить шезлонги, садовую мебель, мангал или качели.
  • Комната отдыха 26,8 м² — сердце бани. Здесь легко размещается большой диван, кресла, стол — всё, что нужно для комфортного времяпрепровождения после парной. Можно использовать как полноценную гостиную.
  • Парная 8,2 м² — просторное помещение для настоящего банного ритуала. Возможность разместить широкие полки, печь и аксессуары для пара.
  • Душевая 8,6 м² — большая душевая комната, удобная для использования после парной. Много места для душевой кабины, скамьи, хранения принадлежностей.
  • Санузел 1,6 м² — удобный отдельный туалет, что особенно актуально при длительном пребывании.
  • Тамбур/прихожая 2,2 м² — компактное помещение при входе, защищает внутреннее пространство от холода и пыли. Идеально подойдет для размещения верхней одежды и обуви.

Преимущества:

  • Большая комната отдыха, подходящая для вечернего досуга или приёма гостей;
  • Просторная терраса с зоной отдыха;
  • Раздельные душ и туалет для удобства;
  • Эстетика и экологичность натурального бруса.

Этот проект станет отличным выбором для загородного участка, базы отдыха или гостевого комплекса. Баня сочетает в себе функциональность, комфорт и уют деревянного дома.

Ветлуга

Габариты: 8,2х8,2 м
Площадь: 67 м²
Ссылка на проект

Проект бани "Ветлуга"
Проект бани "Ветлуга"
Планировка
Планировка

Эта баня из бруса объединяет в себе комфорт полноценного загородного дома и функциональность классической парной. Проект идеально подойдет для семейного отдыха и приёма гостей.

Планировка:

  • Терраса 12,96 м² отличное пространство для летнего отдыха — разместите здесь зону барбекю, столик с креслами или шезлонги. Терраса защищает вход от осадков и создаёт уютную атмосферу.
  • Тамбур 2,73 м² компактная входная зона, которая защищает внутренние помещения от холода и грязи.
  • Комната отдыха 20,33 м² просторное помещение для расслабления после парной. Здесь поместится диван, стол, ТВ-зона — идеальное место для общения.
  • Кухня 5,91 м² удобная кухонная зона с рабочей поверхностью, мойкой и местом под плиту. Можно организовать как кухню-столовую.
  • Парная 9,92 м² просторная парилка, в которой комфортно разместятся лавки и банная печь.
  • Душевая 3,87 м² предусмотрена отдельная душевая зона — важный элемент функциональности бани.
  • Санузел 2,60 м² удобный отдельный туалет делает пребывание в бане максимально комфортным.

Преимущества:

  • Просторная комната отдыха с выходом на террасу
  • Полноценная кухня для удобства
  • Отдельные помещения: парная, душевая и санузел
  • Эргономичная и функциональная планировка

Этот проект подойдет как для семейного отдыха, так и для приёма гостей, создавая атмосферу уюта и расслабления круглый год.

Забвение

Габариты: 13х7 м
Площадь: 70 м²
Ссылка на проект

Проект бани "Забвение"
Проект бани "Забвение"
Планировка
Планировка

Эта баня из бруса площадью 12,95 × 7 м — идеальное решение для ценителей комфорта, уюта и настоящего банного отдыха. Продуманная планировка делает её подходящей как для семейного использования, так и для приёма гостей.

Планировка:

  • Тамбур 3,76 м² — удобная входная зона защищает от холода и осадков, здесь можно разместить вешалку или шкаф для сменной одежды.
  • Холл 7,09 м² — связывает все основные помещения и обеспечивает комфортный проход.
  • Комната отдыха 30,01 м² — просторная зона для расслабления после банных процедур. Здесь поместится большой диван, телевизор и обеденный стол — идеально для дружеских посиделок.
  • Кухонная зона — в комнате для отдыха
  • Парная 7,80 м² — классическая русская парилка с удобными полками — жар и аромат дерева гарантированы.
  • Душевая 7,76 м² — просторное помещение с раковиной и душевыми — комфортное пространство для водных процедур.
  • Санузел 2,16 м² — отдельный туалет с унитазом и умывальником — незаменим для длительного пребывания.
  • Купель 10,87 м² — настоящее украшение этой бани. Идеальна для контрастных процедур после парной.

Преимущества:

  • В наличии всё необходимое: парная, душевая, купель, туалет
  • Огромная комната отдыха — 30 м²
  • Функциональное зонирование, обеспечивающее удобство
  • Купель в отдельной комнате — редкость даже для просторных бань
  • Подходит для использования в любое время года

Эта баня сочетает в себе аутентичную атмосферу деревянного зодчества и современный комфорт. Подойдёт как для частного участка, так и для базы отдыха или гостевого комплекса.

Денница

Габариты: 8х11,2 м
Площадь: 90 м²
Ссылка на проект

Проект бани "Денница"
Проект бани "Денница"
Планировка
Планировка

Проект просторной бани размером 11,2 × 8 м сочетает в себе функциональность, комфорт и зону полноценного отдыха. Подходит как для семейных встреч, так и для приёма гостей в любое время года.

Планировка:

  • Тамбур 3,84 м² — Входная зона защищает от ветра и осадков, позволяет оставить уличную обувь и одежду.
  • С/у 6,89 м² — Просторный санузел с унитазом, раковиной и душевой кабиной — удобно и гигиенично.
  • Парная 6,96 м² — полноценная парилка с печью для настоящих банных процедур. Хватит места и для семьи, и для компании.
  • Бассейн 23,84 м² — центральный элемент бани. Купель больших размеров создает настоящий эффект спа-зоны — для охлаждения после парной или просто расслабляющего отдыха.
  • Комната отдыха 16,56 м² — уютная зона с мягкой мебелью и обеденным столом. Отличное место для чаепитий и общения.
  • Хозяйственный блок 17,32 м² — помещение с отдельным входом. Можно использовать как кладовую, помещение для хранения дров, оборудования, инвентаря или обустройства мастерской.
  • Терраса 14,03 м² — площадка для отдыха на свежем воздухе. Подходит для размещения шезлонгов, столика или мангала.

Преимущества:

  • Бассейн под крышей — полноценная зона отдыха и релакса
  • Отдельный хозблок — удобно для хранения и хозяйственных нужд
  • Терраса — для летнего отдыха и барбекю
  • Рациональная планировка
  • Отлично подойдёт для частного участка, базы отдыха или гостевого комплекса

Такая баня из бруса станет не просто местом для оздоровления, а настоящим центром притяжения для друзей и семьи.

Истопка

Габариты: 8,75х10,5 м
Площадь: 92 м²
Ссылка на проект

Проект бани "Истопка"
Проект бани "Истопка"
Планировка
Планировка

Планировка данной бани 10,5 × 8,75 м предлагает идеальное сочетание функциональности и комфорта. Такой проект подойдет как для дачного участка, так и для частного дома или базы отдыха.

Планировка:

  • Тамбур 4,16 м² — защищает внутренние помещения от холода и ветра. Удобно для хранения одежды и обуви.
  • Санузел 2,36 м² — компактное, но полноценное помещение с унитазом и раковиной.
  • Душевая 7,43 м² — просторная душевая зона, где можно освежиться перед или после посещения парной.
  • Парная 7,74 м² — классическая парилка с печью и лавками — сердце любой настоящей бани.
  • Комната отдыха 23,86 м² — просторное помещение с диваном, креслами и кухонной зоной. Отлично подходит для посиделок после парной, чаепитий или встреч с друзьями.
  • Терраса 37,86 м² — настоящая изюминка проекта. Огромная открытая терраса идеально подойдет для летнего отдыха, размещения стола для большой компании, шезлонгов или мангала.

Преимущества:

  • Четкое зонирование: парная, душевая и санузел — в одном блоке, комната отдыха — в центре внимания.
  • Большая терраса расширяет пространство в тёплое время года.
  • Функциональная кухня в составе бани.
  • Баня подходит как для семейного отдыха, так и для приёма гостей.

Этот проект бани из бруса создан для того, чтобы отдых был не только полезным, но и по-настоящему уютным.

Земфира

Габариты: 7х19 м
Площадь: 121 м²
Ссылка на проект

Проект бани "Земфира"
Проект бани "Земфира"
Планировка
Планировка

Этот проект — идеальное решение для тех, кто ценит не просто банные процедуры, а полноценный отдых в кругу семьи и друзей. Площадь помещений продумана до мелочей: здесь комфортно разместятся гости, и каждый найдет уголок по душе.

Планировка:

  • Тамбур 3,24 м² — уютный вход с защитой от холода и ветра. Отличное место для переобувания и хранения верхней одежды.
  • Санузел 2,34 м² — компактное, но полностью функциональное помещение с унитазом и раковиной.
  • Душевая 7,84 м² — просторное помещение с двумя душевыми зонами — удобно и для семьи, и для компании.
  • Парная 7,84 м² — традиционная парилка с деревянными лавками и печью. Идеальное место для релакса.
  • Комната отдыха 22,00 м² — просторная зона с диваном и ТВ-зоной. Здесь можно расслабиться после парной, перекусить или провести время с друзьями.
  • Котельная 3,24 м² — отдельное техническое помещение для отопительного оборудования.
  • Дровяная 10,79 м² — удобное место для хранения дров, доступ прямо со стороны котельной.
  • Бильярдная 43,70 м² — просторное помещение для игры и отдыха. Подходит для установки бильярдного стола, барной стойки и мягкой зоны.
  • Зона барбекю 35,78 м² — открытая терраса с возможностью установки мангала, большого стола и летней мебели. Идеальна для вечеринок и посиделок на свежем воздухе.

Преимущества:

  • Просторная и чётко зонированная планировка.
  • Отдельная бильярдная — редкость для банных комплексов.
  • Большая терраса с зоной барбекю.
  • Раздельные парная, душевая, комната отдыха и техпомещения — максимум удобства.

Эта баня из бруса — не просто место для парения, а полноценный комплекс для отдыха, встреч с друзьями и веселого времяпрепровождения в любое время года.