Найти в Дзене

Очень интересный проект евротрешки 76м² в новостройке ПИК (20+ фото)

Дизайн-проект евротрешки в новостройке ПИК для IT-специалиста в минималистичном стиле с природными мотивами с продуманной шумоизоляцией и "умными" функциями с прихожей, кухней-гостиной, спальней, кабинетом, ванной комнатой и санузлом. Адрес: ЖК Михайловский Парк Кол-во комнат: 2 Площадь: 76 м² Стиль: минимализм с эко-мотивами Этот проект — про человека, пространство и тишину. Наш заказчик — молодой IT-специалист, для которого дом — не просто место для отдыха, но и полноценная рабочая среда. Именно поэтому в центре внимания здесь не декоративность, а продуманный до мелочей функционал, уют и технологичность. Вот несколько умных фишек данной квартиры: Точную стоимость вашего ремонта, вы можете получить в калькуляторе ниже Изначально квартира была с чистовой отделкой от застройщика, но ни качество, ни внешний вид не соответствовали ожиданиям. Вместе с заказчиком мы приняли решение демонтировать всё до основания и выстроить интерьер с нуля. Планировку практически не трогали — лишь расшир
Оглавление

Дизайн-проект евротрешки в новостройке ПИК для IT-специалиста в минималистичном стиле с природными мотивами с продуманной шумоизоляцией и "умными" функциями с прихожей, кухней-гостиной, спальней, кабинетом, ванной комнатой и санузлом.

О проекте:

Адрес: ЖК Михайловский Парк
Кол-во комнат: 2
Площадь: 76 м²
Стиль: минимализм с эко-мотивами

Для кого

Этот проект — про человека, пространство и тишину. Наш заказчик — молодой IT-специалист, для которого дом — не просто место для отдыха, но и полноценная рабочая среда. Именно поэтому в центре внимания здесь не декоративность, а продуманный до мелочей функционал, уют и технологичность.

Вот несколько умных фишек данной квартиры:

  1. Шумоизоляция всей квартиры.
  2. Тёплые полы в зонах спальни, коридора и санузлов.
  3. Бризер в спальне.
  4. Электрокарниз с блэкаут-шторами, готовыми к автоматизации.

Планируете ремонт квартиры?👇

Точную стоимость вашего ремонта, вы можете получить в калькуляторе ниже

КАЛЬКУЛЯТОР

Изначально квартира была с чистовой отделкой от застройщика, но ни качество, ни внешний вид не соответствовали ожиданиям. Вместе с заказчиком мы приняли решение демонтировать всё до основания и выстроить интерьер с нуля.

Планировка

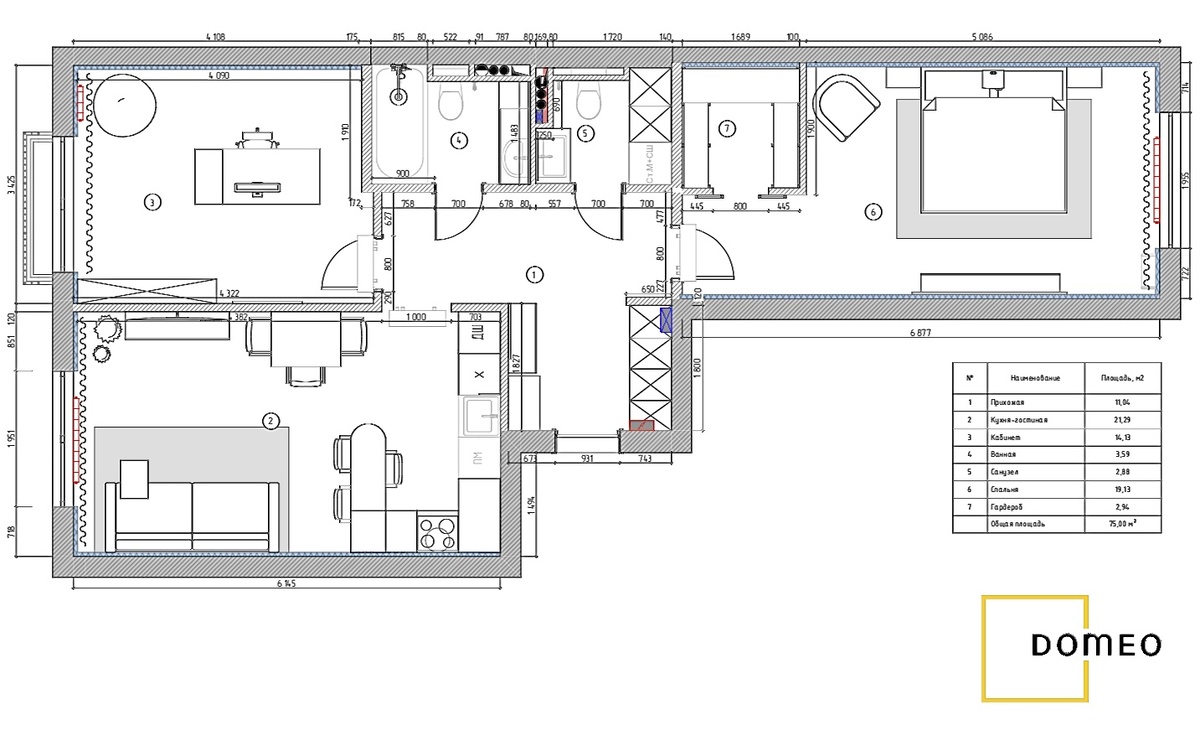
Планировку практически не трогали — лишь расширили гардеробную в спальне. Остальное — дело деталей, правильного света и грамотной архитектуры интерьера.

Планировка квартиры с планом расстановки мебели. 76 м²
Планировка квартиры с планом расстановки мебели. 76 м²

ПРИХОЖАЯ

Стены — под покраску, двери — в едином лаконичном цвете, без лишней фурнитуры. Светлый пол с текстурой натурального дерева создаёт ощущение простора и чистоты.

По утрам приятно ступать на тёплое покрытие — в прихожей, как и в спальне и ванной, работает система тёплого пола.

Зеркала в полный рост визуально расширяют пространство и добавляют света, а заодно прячут в себе встроенные системы хранения. Для верхней одежды предусмотрена функциональная зона с рейками и мягкой банкеткой.

-5

Здесь же — консольный столик, который служит местом для мелочей, ароматов и привычных ежедневных ритуалов. Внутри шкафа — ниша для робота-пылесоса, чтобы техника была под рукой, но не на виду.

КУХНЯ-ГОСТИНАЯ

Интерьер построен на сочетании мягких, натуральных оттенков и чистых линий.

Светлый деревянный пол объединяет зону кухни и гостиной в одно целое, создавая ощущение спокойствия и цельности. Стены — под покраску и под декоративную штукатурку, что добавляет пространству тактильности и глубины.

Фото проекта с ремонтом от DOMEO
Фото проекта с ремонтом от DOMEO

Кухонный блок выполнен в светло-серой гамме с тёплыми акцентами дерева. Встроенная техника, лаконичные фасады без ручек, подсветка по фартукам и подвесной светильник — всё говорит о продуманности и любви к простым, но эффектным решениям. Барная стойка выполняет роль быстрого завтрака и рабочей поверхности — особенно удобно для тех, кто работает из дома и ценит практичность.

Фото проекта с ремонтом от DOMEO
Фото проекта с ремонтом от DOMEO

Гостиная — это уютное продолжение кухни. Мягкий светло-серый диван на фоне светлой стены и деревянных панелей визуально «приглушает» ритм дня. Минималистичная подсветка и подвесной торшер добавляют акцентов, не перегружая пространство.

Вместо перегородок — свет, текстуры и мебельная композиция. Телевизор расположен на противоположной стене — рядом с ним аккуратно размещены аксессуары для гейминга.

Отдельного внимания заслуживает текстиль: плотные шторы в пол и лёгкий тюль создают гибкий сценарий освещения, от открытости к уединённости.

СПАЛЬНЯ

Центром композиции стала мягкая кровать с высоким изголовьем и текстилем в тёплой, природной гамме.

Позади неё — акцентная стена, отделанная вертикальными панелями с сочетанием дерева и матового покрытия под бетон. По обе стороны кровати — лаконичные подвесные светильники, создающие мягкий вечерний свет, и тумбы с минималистичным декором.

Предусмотрено удобное кресло с фактурной подушкой для чтения или утреннего кофе. А тёплый пол под ногами превращает каждое утро в маленький домашний ритуал.

Из «умных» решений — электрокарниз с блэкаут-шторами, который заказчик планирует автоматизировать. Уже сейчас штора надёжно блокирует свет, создавая идеальные условия для сна. Также в спальне предусмотрен бризер, обеспечивающий чистый воздух без необходимости открывать окна.

Для вечернего релакса — проектор и большой экран, идеально интегрированные в пространство. А для хранения — отдельная гардеробная с системой хранения из натурального дерева и стеклянными фасадами. Её немного расширили по сравнению с типовой планировкой — чтобы всё необходимое было под рукой, но не на виду.

Сколько стоит ремонт вашей квартиры в 2025 году?👇

Точную стоимость всего ремонта, вы можете получить в этом калькуляторе Domeo -> https://domeo.ru/remont

КАЛЬКУЛЯТОР

КАБИНЕТ

Этот кабинет задумывался как личное рабочее пространство для заказчика, который проводит большую часть времени за компьютером. Основной акцент — на функциональный, но эстетичный минимализм.

Пространство выстроено вокруг большого рабочего стола с чистыми геометричными линиями, за которым легко разместить не только ноутбук, но и несколько мониторов. Эргономичное кресло с мягкой обивкой поддерживает комфорт даже в течение длинного рабочего дня.

Встроенные полки на противоположной стене обеспечивают место для хранения книг, техники и личных предметов. Мы отказались от лишнего декора, чтобы ничто не отвлекало от задач, но добавили точечную подсветку и несколько арт-объектов — для визуального баланса и настроения.

Тёплая палитра в бежево-серых тонах, светлая древесина на полу, текстиль с плотной фактурой — всё это создаёт ощущение спокойствия и уюта. Окно с длинными шторами даёт максимум естественного света, а вечернее освещение выстроено по контуру потолка и включает направленные светильники и настольную лампу — удобно переключаться между разными сценариями дня.

И, конечно, в этом кабинете предусмотрена полная шумоизоляция — как и во всей квартире. Чтобы ничто не мешало сосредоточиться, даже если за стеной жизнь продолжается.

ВАННАЯ КОМНАТА

Посмотрите, как происходил ремонт ванной.

Процесс ремонта ванной. Проект Domeo
Процесс ремонта ванной. Проект Domeo
Процесс ремонта ванной. Проект Domeo
Процесс ремонта ванной. Проект Domeo

И ниже фото конечного результата.

Ключевой визуальный акцент — крупноформатный керамогранит с выразительным рисунком под натуральный мрамор. Он оформляет зону ванны и душа, визуально расширяет пространство и придаёт ему дорогой, но сдержанный вид.

Для контраста — матовая плитка теплого бежевого оттенка, которая обрамляет остальную часть комнаты и создаёт фон, на котором чётко читаются чёрные акценты сантехники. Подвесной унитаз с системой инсталляции не перегружает композицию. Рядом — душевая гигиеническая лейка в черном цвете, перекликающаяся с потолочным тропическим душем и смесителем.

Отдельного внимания заслуживает зона умывальника. Столешница — в тёмном исполнении, с черной раковиной-чашей, которая смотрится эффектно и современно.

Вся зона дополнена световым полотном под потолком с имитацией естественного дневного света — решение, которое помогает не только комфортно проснуться утром, но и обеспечивает равномерное освещение без теней на лице. Удобный ящик и открытые ниши под полотенца и принадлежности обеспечивают идеальный порядок.

САНУЗЕЛ

В этом пространстве объединились две важные функции — полноценный гостевой санузел и скрытая постирочная зона.

Фото проекта с ремонтом от DOMEO
Фото проекта с ремонтом от DOMEO

В основе — крупноформатный керамогранит с текстурой тёмного камня, который создаёт камерную атмосферу и подчёркивает графичность интерьера. Светлая плитка на полу добавляет контраста и визуального баланса. Черная сантехника — лаконичная и технологичная — органично вписывается в общее настроение.

Фото проекта с ремонтом от DOMEO.
Фото проекта с ремонтом от DOMEO.

Особое внимание уделили постирочной зоне: стиральная и сушильная машины расположены в единой нише и спрятаны в композицию встроенного шкафа с деревянными фасадами. Всё выглядит строго, симметрично и полностью встроено в интерьер — никакого ощущения «бытовухи» в зоне, где стиль важен не меньше, чем удобство. Подвесная тумба с черной раковиной-чашей и овальным зеркалом с подсветкой — ещё одно стильное решение.

-29

Domeo советует начать свой ремонт с 2-х простых шагов:

1. Заранее узнайте стоимость вашего ремонта в 3-х вариантах. Бесплатно рассчитайте тут: ✅ domeo.ru/remont
2. Выбрать подходящего дизайнера для визуализации своих идей! Бесплатно выберите своего дизайнера здесь: ✅ domeo.ru/design
-30

Не хотите высказать свое мнение по поводу этого проекта в комментариях? Интересно узнать, что выдумаете.👇

Подписывайтесь на наш канал! Мы регулярно показываем наши проекты, делаем разборы смет и даем реальные советы по дизайну и ремонту квартир.

Смотрите еще наши проекты:👇