Добавить в корзинуПозвонить
Найти в Дзене
ПСК "Градиент"

Комфорт круглый год: дачные дома для любого сезона

Мы подготовили подборку домов, которые отлично подойдут для комфортного дачного отдыха круглый год. Эти проекты объединяют удобство, функциональность и современный стиль, позволяя использовать их не только в теплое время, но и зимой. Первый вариант — проект GTT-20. Это компактный каркасный дом в стиле Cabin house площадью около 20 м². Внутри расположена небольшая жилая зона с кухонным уголком и санузлом. Особенность дома — просторная крытая терраса, которая позволяет наслаждаться природой в любую погоду, будь то ужин на свежем воздухе или прочтение интересной книги. Следующий проект — GTS-39, одноэтажный дом с двумя спальнями. Помимо них, в доме есть кухня-гостиная, санузел, котельная и небольшое крыльцо. Фасад выполнен из декоративной штукатурки, что придает дому современный и аккуратный внешний вид. В условиях ограниченного бюджета или пространства участка, прекрасно может подойти семье из 2-3 человек для постоянного проживания. Третий вариант — проект GTS-40. Здесь поместились кухня

Мы подготовили подборку домов, которые отлично подойдут для комфортного дачного отдыха круглый год. Эти проекты объединяют удобство, функциональность и современный стиль, позволяя использовать их не только в теплое время, но и зимой.

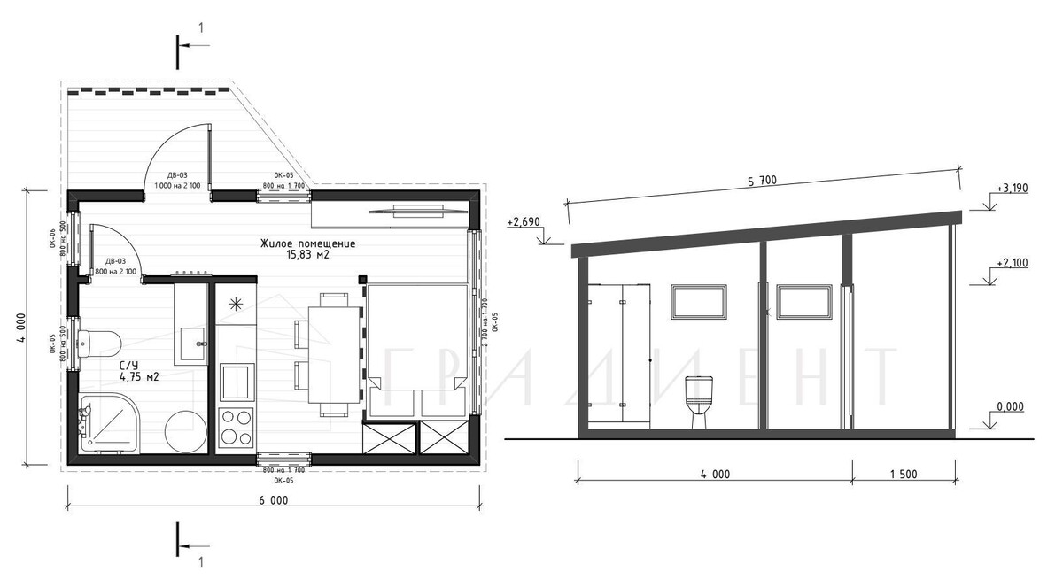
Первый вариант — проект GTT-20. Это компактный каркасный дом в стиле Cabin house площадью около 20 м². Внутри расположена небольшая жилая зона с кухонным уголком и санузлом. Особенность дома — просторная крытая терраса, которая позволяет наслаждаться природой в любую погоду, будь то ужин на свежем воздухе или прочтение интересной книги.

Планировка
Планировка

Следующий проект — GTS-39, одноэтажный дом с двумя спальнями. Помимо них, в доме есть кухня-гостиная, санузел, котельная и небольшое крыльцо. Фасад выполнен из декоративной штукатурки, что придает дому современный и аккуратный внешний вид. В условиях ограниченного бюджета или пространства участка, прекрасно может подойти семье из 2-3 человек для постоянного проживания.

Планировка
Планировка

Третий вариант — проект GTS-40. Здесь поместились кухня, в виде отдельной зоны для приготовления и приёма пищи, санузел, тамбур и гостиная, которую, при необходимости, можно использовать как спальню. Крытая терраса добавляет место для отдыха на свежем воздухе.

Планировка
Планировка

Последний проект в подборке — GTb-52. Дом оборудован кухней-гостиной, которая совмещает два пространства: отдыха и приготовления(приема) пищи. Далее расположены парная, с\у и душевая. Прекрасный вариант для любителей бани и отдыха на свежем воздухе.

Планировка
Планировка

Все эти дома предлагают сбалансированное сочетание площади, что позволяет комфортно жить вне зависимости от сезона. Выбирая один из таких проектов, вы получаете возможность сделать дачный дом по-настоящему универсальным и удобным жильем.
С остальными проектами, разработанными компанией
ПСК Градиент, вы можете ознакомиться здесь.